リビング&ダイニングは家の中で家族がもっとも長く過ごす場所。ぜひゆったりとくつろげて、楽しく食事ができるスペースづくりを目指したいですよね。
ところが、リビング&ダイニングには必要な家具が多く、実はレイアウトが難しいスペースでもあります。
そこで今回は、リビング&ダイニングの間取りプランのコツや、家具のレイアウト方法についてご紹介します。
面積によってどんなレイアウトのバリエーションがあるのか、畳数別の実例もぜひ参考にしてください!
畳数別レイアウトの考え方と実例が知りたい!
では、さっそくリビング&ダイニングの面積別の実例をご紹介しましょう。実際の家具のレイアウトを見てみると、なるほど! と納得できる工夫がいっぱいです。
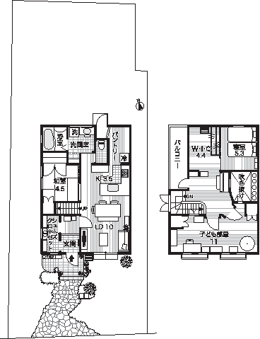
8 畳のLDのレイアウト実例

2 階にLDK を設けたT さんのお宅。いわゆる狭小住宅ですが、LDK にバルコニーと吹き抜けをつなげ、狭さ感を解消しています。

リビング&ダイニングは合わせて8 畳ですが、ソファに座ると窓からバルコニーへと視線が抜けるため、実際より広々と感じられます。

ダイニングテーブルはキッチンカウンターと一列につなげてレイアウト。カウンターとテーブルを平行に置くより省スペースですみます。

リビング&ダイニングに背の高い収納家具がないのも、狭さを感じさせない理由。ローボードだけを壁際に置いています。
10畳のLDのレイアウト実例

K さんのお宅。キッチンやパントリーなどの家事空間にたっぷりとスペースをとり、リビング&ダイニングは10畳の広さに。

コンパクトな2 人がけソファを選んで、壁際にレイアウト。ダイニングテーブルにいる家族と目を合わせやすく、コミュニケーションがスムーズになります。

リビング&ダイニングは対面式キッチンから見渡せるプラン。背もたれのないベンチは圧迫感がなく、広さの限られたLDにも向いています。
12畳のLDのレイアウト実例

1 階にLDK 、2 階に広々とした多目的室を設けたK さん。リビング&ダイニングには子どもたちが楽しく遊べる工夫も。

対面式キッチンとダイニングテーブルを平行に配置。テーブル横の壁に沿って浅いカウンターを造りつけて、子どもの作品などを飾っています。

こちらでもソファとダイニングテーブルの位置関係に注目。家族の一体感を感じやすいレイアウトです。

ソファの前が広くあいているので、子どもたちが床で伸び伸びと遊べます。テレビの下にはベンチのような低い収納を造りつけました。
14畳のLDのレイアウト実例

N さん宅では、リビング&ダイニングをL 型にプラン。丸テーブルやコーナーソファをとり入れているのにも注目を。

リビングとダイニングをそれぞれ独立させつつ、自然なつながり感を持たせた間取り。座面や背もたれが低めのコーナーソファは、座るスペースが広いわりにボリュームが出すぎず、コンパクトな印象になります。

丸テーブルは周囲を人が動きやすいのがメリット。座る人数が増えたときにも対応できます。

対面式キッチンの前にカウンターをつけて、スツールをプラス。おやつタイムなどに気軽に使えるレイアウトです。
20畳のLDのレイアウト実例

合わせて19畳のゆったりしたリビング&ダイニングを実現したT さん。ソファのほかに一人がけのアームチェアを置くゆとりも生まれました。

ソファをダイニング側に向けたことで視線が遮られず、LDがより広々とした印象に。細い脚のダイニングテーブルやベンチで、さらに軽快な空間づくりに成功しています。

くつろぎの場に圧迫感を与えないよう、背の低い収納家具をチョイス。ぴったりくっつけず、やや隙間をあけて並べることで、家具のデザインを楽しんでいます。
↓注文住宅で家を建てたSさんの体験談を見る↓
2019.07.20東京スカイツリーや東京タワー、天気の良い日には富士山まで見える最高のロケーションを持つ土地に居を構えられたSさん。家の前には、大きな河川敷があり、どこからともなく通行人の鼻歌が聞こえてくる。そんな気持ちを開放してくれる、心...続きを見る
2019.07.31スポーツやキャンプなどのアウトドアやDIYなど多くの趣味をお持ちのSさん。幼いころからご実家で鳥小屋や犬小屋を造られるなど、DIYの経験も豊富にお持ちで、今回の家づくりの際もDIYをする余白を設けたこだわり満載の住まいを叶...続きを見る
形状別レイアウトの考え方と実例が知りたい!
リビング&ダイニングは、間取りプランによって正方形になったり、細長くなったり、場合によっては三角形やL 型になったりすることも。このような形状に合わせて家具をレイアウトするときは、どんなコツがあるのでしょうか? 実際のお宅を例に取りながら考えてみましょう。
正方形のLDのレイアウト実例

LDK がほぼ正方形のK さん宅。スペースの中央が広くあいているので、玄関や階段への動線が遮られません。

アイランドカウンターから配膳・片づけがしやすい場所にダイニングテーブルを配置。キッチンと同じデザインの収納をダイニングにも造りつけました。

ソファはテレビのある壁面に向けてレイアウト。ダイニングに十分な収納があるため、テレビボードはコンパクトなタイプにして、圧迫感をなくしています。
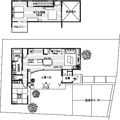
長方形のLDのレイアウト実例

K さん宅では1 階に広い土間をとり入れ、それに沿ってLDK を設けました。家具の配置には、開放感と落ちつき感を両立できる工夫も。


細長い空間に合わせて、キッチンカウンターとダイニングテーブルを一列にレイアウト。土間に面しているので、おおらかな開放感を味わいながら食事を楽しめます。

いっぽうのリビングは、壁に囲まれた落ちついた空間。ソファを壁際に配置することで、“ 守られている" ような安心感も生まれます。
角部屋(L型) のLDのレイアウト実例

2 階のバルコニーをはさんで、リビングとダイニングをL 型に配したK さん。どちらのスペースからもバルコニーが見えて、開放感は抜群です。

アイランドカウンターとダイニングテーブルをつなげるようにプラン。細長いスペースを途中で区切らず、壁面全体を見渡せるようにしたことで、空間の奥行き感がアップ。


ダイニングからリビングを見たところ。部屋同士はつながっているものの、それぞれのスペースには独立感もあります。ソファは最初から置く場所を決めておき、それに合わせて窓をプランしました。
三角形のLDのレイアウト実例

敷地形状に合わせて、三角形( 台形 )の家をプランしたS さん。2 階のLDK では、広いほうをキッチン、狭いほうをリビングにしたのがポイントです。

もっとも広い場所に家事をするキッチン、次に家族が集まるダイニング、三角形の先端にリビングを配置。このレイアウトが心地よさの秘密なのだそう。

リビングでは動き回ることが少なく、一か所に留まって過ごすため、スペース自体がコンパクトでも違和感がなく、かえって落ちついてくつろげます。テレビ側の壁が三角形の先端。幅2mほどですが、右側が大きな窓なので圧迫感はありません。

人が動き回るキッチンやダイニングには通路が必要なため、広いスペースを確保したのは正解。家事のストレスも軽減できます。

こまごまとした生活用品は、キッチンの収納スペースに集中させました。おかげでLDに大きな収納家具を置かなくてすみます。
おしゃれなリビングのレイアウトの考え方のコツとは?
おしゃれなリビング&ダイニングのレイアウトを考えるとき、大切なポイントになるのが「キッチンとの関係」です。こちらでは、リビング・ダイニング・キッチンのレイアウトについて詳しくご紹介。基本的な間取りプラン例から、採光・通風の考え方まで、おしゃれで心地よく過ごせるリビング&ダイニングのつくり方を解説しています。
2015.12.08生活の中心になるのがLDKですが、理想のカタチは家庭によってさまざまなはず。家族構成やふだんの過ごし方を思い起こしながら、プランを立てましょう。くつろぎの場にふさわしい開放的な雰囲気作りも大切です。このページでは、そんなL...続きを見る
狭いリビング&ダイニングのレイアウトの工夫とは?
狭いリビング&ダイニングでは、ソファやダイニングテーブルをどう配置すれば使いやすく、狭さを感じずに過ごせるのでしょうか? ここでは、空間全体のプランの考え方からスタートして、それぞれの家具に必要な面積や、家具を配置するときに気をつけたいポイントなどをご紹介します。
部屋の広さを決める際には、最初から「ダイニングは8畳、リビングは10畳」などと大ざっぱに考えないことが大切。家づくりのスタート時点から各部屋での生活を想定して、必要な家具がきちんと置けるかを考えてから、プランニングに進むのが正解です。
同じ間口と奥行きの部屋でも、窓の位置や高さ、ドアの位置などによって、あとあと思うように家具が置けないこともあります。また、家具の配置が決まっていれば、照明器具やコンセントなどの設置場所に迷うこともありません。
図面に家具を配置してみるときは、まず開口部の位置を確認しましょう。ドアを開けたときに家具がぶつからないか、家具が窓からの採光や風通しの妨げにならないかをチェック。ドアの位置を少しずらすだけで、キャビネットなどの収納家具が収まることもあります。
椅子やソファまわりのスペースを考える
リビング&ダイニングでは、家族全員が集まって、テレビを見たり食事したりとさまざまなアクションをします。そこで、家族が無理なく通れるスペースや、椅子やソファに座ったり立ったりしやすい空間が必要に。ここでは一般的な家具のサイズと、その周辺に必要なスペースの目安をご紹介します。
テーブルまわりに必要なスペース

立ったり座ったりするには約60cm、腰かけている人の後ろを通るには60cm以上必要です。動作のための最小限のスペースは必ず確保しましょう。
ダイニングセットに必要なスペース

標準的なソファのサイズ

ソファとテーブルの間に必要なスペース

上のイラストは、ゆったりしたカジュアルタイプのソファの場合。ソファとテーブルの間には、足を伸ばしたり、組んだりする空間が必要。
ソファのレイアウト

ソファの配列には、Ⅰ型、L型、対面型の3タイプがあります(上図ではL型と対面型のみ紹介しています)。
狭いリビングでなるべくたくさんの人が座るには、L型が最適。部屋のコーナーに配置すれば、空間が有効に使えて、ソファから部屋全体が見渡せるため開放感を味わえます。
ただし、ソファや収納家具を壁にぴったりつけて置くのはNG。壁と家具の間の風通しが悪くなり、カビが生えやすくなるからです。空気が通るように、家具と壁とは2~5cmくらい離すのがおすすめです。
通路スペースのとり方

視線計画もとり入れる
LDKでは「視線計画」もポイントに。視線計画とは「その場所から何が見えるか」をプランに盛り込むという考え方です。窓からの眺めには注意を払っても、部屋の中の視線計画は意外に忘れがち。この図では、ソファの向きによる視線計画の違いを解説しています。
ソファの向きによる視線の広がり方
ソファの配置にひと工夫すれば、同じ部屋でもソファに座ったときの見え方を大きく変えることができます。
たとえば小さい子どもがいるお宅では、調理しながらリビングで遊ぶ子どもに目が届くように、ソファをDKに向けて配置するのがおすすめ。来客が多いお宅なら、DKに背を向けるようにソファを置けば、DKに視線が届かず、リビングに独立性が生まれます。

レイアウトを考える時に注意すべきポイントとは?
リビング&ダイニングのレイアウトには、どんな注意点があるのでしょうか? こちらでは、家具をじょうずに配置するために必要な「動線計画」の考え方とコツを詳しく解説しています。家具を配置するときは人が通るスペースのほか、視線の向き、家具の色などもポイントになることがわかります。ぜひチェックしてみて!
2016.09.15家具の配置を工夫すれば、限られたスペースを機能的に広々と使えます。 家づくりの過程から人の動線や視線を意識し、家具のサイズ選びや配置を検討しましょう。 【Point.1】人がどう移動するか、「動線計画」を立てよう人が移動す...続きを見る
リビング&ダイニングの収納の考え方とコツが知りたい!
家族が集まるリビング&ダイニングには、生活用品も自然と集まってくるため、室内が雑然としやすいですよね。ものが散らかっていると掃除もしにくく、悩みの種がふえることに。やはり、快適なリビング&ダイニングには十分な収納スペースが必要です。
とはいえ、ソファに座って過ごすリビングに背の高い収納家具を置いてしまうと、落ちつき感が損なわれることも。そこでおすすめなのが、リビングではなく、ダイニングの収納を充実させるプランです。ダイニングでは人の目線の位置が高いため、背の高い家具があってもそれほど圧迫感を感じないはず。置き家具でもいいのですが、家づくりの際に壁面収納などを採り入れると、よりすっきりした空間をつくれます。
まとめ
心地いいリビング&ダイニングをつくるには、好みの家具を選ぶだけでなく、キッチンとの関係や家族の動線など、考えておきたいポイントがたくさんあります。家づくりの前に家具のレイアウトをしっかり考慮に入れて、プランに反映させるのがおすすめです。
↓注文住宅で家を建てたSさんの体験談を見る↓
2019.07.20東京スカイツリーや東京タワー、天気の良い日には富士山まで見える最高のロケーションを持つ土地に居を構えられたSさん。家の前には、大きな河川敷があり、どこからともなく通行人の鼻歌が聞こえてくる。そんな気持ちを開放してくれる、心...続きを見る
2019.07.31スポーツやキャンプなどのアウトドアやDIYなど多くの趣味をお持ちのSさん。幼いころからご実家で鳥小屋や犬小屋を造られるなど、DIYの経験も豊富にお持ちで、今回の家づくりの際もDIYをする余白を設けたこだわり満載の住まいを叶...続きを見る
★おしゃれな注文住宅を建てたい方はこちら

レイアウトに関するおすすめ記事
2016.07.29「とにかく友人がよく集まるので、みんなが集まって楽しくくつろげる家にしたかったんです」と話す旦那様と奥様。お二人は大学時代の同級生で共通の友人も多く、結婚以来、F家はいつもみんなのたまり場になっていたといいます。自分たちも...続きを見る
コメント
全て既読にする
コメントがあるとここに表示されます