【Tさん宅(神奈川県) 本体工事費 約2471万円 建築面積 約18坪】
オープンプランならではの広々空間。ハイサイドライトから空が見え、月や雲の動きを家族みんなで楽しんでいます。会社員のMさんと奥さまのCさん、長女ちゃん(2歳)、長男ちゃん(5カ月)の4人家族。Cさんの実家の隣に新築したので、忙しいときはサポートしてもらうそう。
Tさん宅のHAPPY POINT!
2F LDK
【コストダウンIDEA】右端のみ開閉式にし、残りはフィクス窓。

シンプル&ナチュラルデザインが人気の中村高淑さんに設計を依頼したTさんのお宅。中村さんとの出会いは、『1000万円台で建てたMY HAPPY HOME』(主婦の友社)という実例集でした。人一倍デザインにこだわっていたご夫妻の目に留まったのが中村さんの作品だったこと、計画予定地が設計事務所に近かったことが重なり、すぐに資料請求のメールを送ったそう。
「もちろん、わが家も1000万円台で建てられたらいいなと思っていたのですが、日本中で建築費が高騰し始めた時期で、それは難しいとわかり、予算は2000万円台半ばからのスタートでした」。けれど夢はふくらむ一方で、あれもこれもと希望を盛り込んでいくうちに、なんと900万円もオーバー。「予算内におさめるための作業は、それはそれは大変でした」。仕上げ材のランクを抑え、欲しい設備を省くなどで、なんとかコストダウンに成功。とはいえ、「収納や作業面からもキッチンは妥協したくなかったので、吊り戸棚以外はフルオーダーのアイランドキッチンにこだわりました。使いやすさはもちろん、シンク前に立つとどの窓からも周辺の緑が望めて、予算は厳しかったけれどあきらめなくてよかった」とCさん。お子さんが大きくなったら一緒にお菓子づくりを楽しみたいそうです。

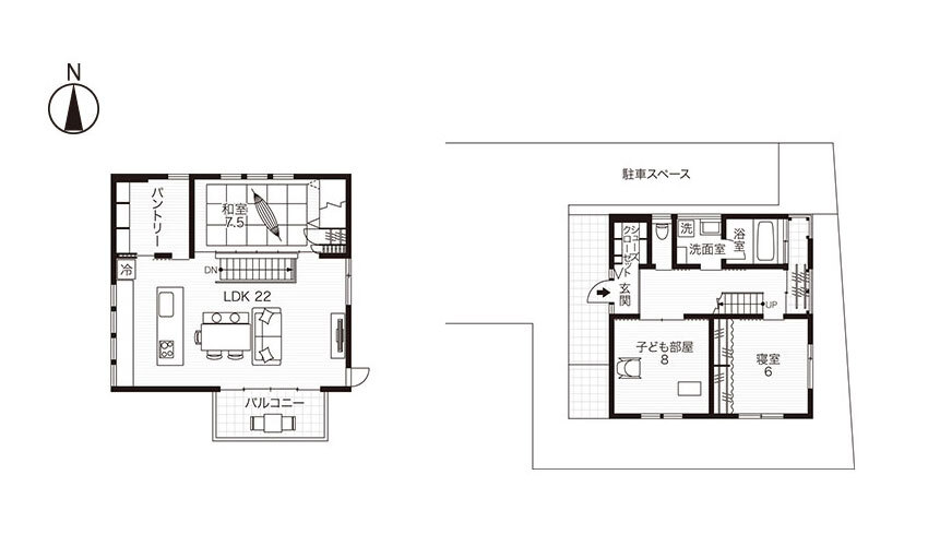
階段を中心にリビング、ダイニング、キッチン、和室を配置。行き止まりのない回遊動線は生活しやすく、お子さんも思いっきり走り回ることができます。
【コストダウンIDEA】家じゅうの床材をレベルを抑えたCランクに統一。

LDKを1階に計画していましたが、思ったほど日当たりが望めず、2階に変更。「広さも確保でき、なにより明るいのがいいですね」
2F バルコニー
【コストダウンIDEA】バルコニーは本体工事ではなく既製品を設置。床は安価な「イケア」のデッキパネルに。

リビングつながりのバルコニーは、お子さんの遊び場としても利用。夏はかき氷づくりやシャボン玉遊びを
楽しみました。
2F パントリー
【コストダウンIDEA】2階のトイレをとりやめ、あいたスペースをパントリーにとり込む。

キッチンつながりにパントリーをつくり、PCデスクも設置。当初は右扉の位置にトイレがありましたが、予算オーバーのためあきらめました。いずれトイレを復活させることも可能だそう。
2F 和室
【コストダウンIDEA】高価な琉球畳から低コストの「無印良品」の半畳に。

ゲスト用に用意した和室ですが、LDK横に配置したことで、ファミリースペースとしても大活躍。
【コストダウンIDEA】吊り押入れ下を地窓の予定から壁に変更。連窓は左端のひとつのみ開閉式に。

引き戸を閉めれば個室になり、お子さんが小さいので、今は家族の寝室として使っています。
1F バス & サニタリー
【コストダウンIDEA】ルーバーの材料は施主支給でそろえ、大工さんが製作。洗面台はメーカーの既製品、収納家具は通販で購入。

浴室、洗面室、トイレは同じフロアに並べて配置し、白を基調にクリーンなイメージで統一。フルオーダーの浴室は、ご主人の希望でエプロンスペースを広めにデザイン。
1F 玄関ホール

【写真左】玄関ドアの両サイドに窓を設け、ホール全体に光を導きます。右手奥にシューズクローゼットが。
【写真右】階段をスケルトンにしたことで、小さいスペースも広々と感じられます。 掃き出し窓の外は洗濯物干しに活用。
1F シューズクローゼット

ご夫婦ともに靴好きで、お子さんの分も含めると100足はあるそう。ミラーつきの折れ戸はフルオープンになり、出し入れがラク。
1F 子供部屋
【コストダウンIDEA】DKの入り口はドアをつけずアーチの開口に。窓下の古材は解体した元の家の木材を再利用。

【写真左】お子さんのお友達が遊びに来たとき、玄関ホールと一体で使えるように扉はフルオープンの引き戸に
しました。
【写真右】部屋の真ん中に壁を立て、将来2室に分割できるように下地を入れ、窓の位置も計算されています。
1F 寝室
【コストダウンIDEA】クローゼットの扉を節約してカーテンで代用。雑貨を飾れる出窓をあきらめて引き違い窓に。

お子さんの手が離れるまで2階の和室を寝室にしていますが、いずれはここにベッドを置いて寝室に。右手にクローゼットが。
外観

白い箱にこげ茶の箱を重ねたキュートな外観。

太陽光発電設備(屋根に太陽光パネルを設置)+オール電化住宅は、最初から希望。初期投資は厳しかったのですが、ランニングコストの節約になりました。
DATA. Tさん宅(神奈川県)

設計のPOINT
unit-H 中村高淑建築設計事務所
中村 高淑さん
Tさん宅は郊外の丘陵地帯にあり、建物の周囲は起伏が激しく、高い擁壁や中層の集合住宅、アパート、駐車場などに囲まれているため、光のとり入れ方やプライバシーと開放感のバランスに気をつかいました。敷地の1階部分は閉鎖的で日当たりが限られていたこと、さらに希望する部屋数を配置し、面積効率から2階にシンプルなLDKを提案しました。見積もり時に減額案を提示し、納得しながら要望に優先順位をつけつつ、こだわりの部分は残して実現しました。
【Profile】
1968年生まれ。浜松市出身。多摩美術大学建築科卒業。設計事務所を経て99年に現事務所を設立。著書(共著)に『最高の二世帯住宅をデザインする方法』(エクスナレッジ)など。日本建築家協会正会員。
| 家族構成 |
夫婦+子ども2人 |
| 敷地面積 |
232.01㎡(70.18坪) |
| 建築面積 |
59.62㎡(18.04坪) |
| 延べ床面積 |
112.61㎡(34.06坪) 1F 52.99㎡ + 2F 59.62㎡ |
| 構造・工法 |
木造2階建て(軸組み工法) |
| 工期 |
2013年6月〜2014年1月 |
| 本体工事費 |
約2471万円(太陽光発電設備約239万円含む) |
| 3.3㎡単価 |
約73万円 |
| 設計 |
unit-H ㈱中村高淑建築設計事務所(中村高淑) TEL: 045-978-4335 一級建築士事務所艸の枕(只石快歩) TEL:03-6914-3484 |
| 施工 |
三昭建設㈱ TEL:042-665-5170 |
| 構造設計 |
㈲吉田一成構造設計室 TEL:03-5775-6052 |
★おしゃれな注文住宅を建てたい方はこちら
★注文住宅のカタログを取り寄せたい方はこちら
おすすめ記事
2017.07.19【Kさん宅(埼玉県)】の間取り実例貸マンションにお住まいだったときに2人目のお子さんが生まれ、家づくりをスタートさせた加藤さん。「せっかく建てるなら、変わった楽しい家がいいなと思いました」。設計事務所はネットで探し、創意工...続きを見る
コメント
全て既読にする
コメントがあるとここに表示されます