【 渡邉さん宅(愛知県)】
ナラ材の床に杉材の天井、壁は塩害にも強い砂しっくい。
「自然素材に囲まれ、心地よく過ごせます」
大きな開口部に広がる一面の海。波の音が心地よく響く渡邉さんのお宅は、まるでリゾート地にあるコテージのようです。以前の住まいは、この場所からほど近い賃貸コーポでした。出産を機に新築を考えたときも、この海の風景や生活環境が気に入っていたため、ほかの土地に移る気はありませんでした。
「ほしいのは、海が一望できる開放的な大きな窓。海に沈む夕日や、海に浮かぶ月光の道を眺めながら、おいしいビールが飲みたい!」それが、渡邉さん夫妻のいちばんの夢でした。このあたりは海が西側に位置するため、以前の住まいは西日対策の小さな窓のおかげで、せっかくの海が楽しめなかったそう。数年間この土地で暮らしたお二人は、「強風や塩害の苦労をさし引いても、この海の眺めを手に入れたかった」と言います。
ご主人は近隣をバイクで走り回り、候補地を探し出すと同時に、同僚から紹介された「悠らり建築事務所」の家づくり講座に参加。「設計の安藤さんにこの土地のことを話したら、おもしろがってくれて」とご主人。当の安藤さんはすぐに現地へ向かい、どうすれば全室から海が見える間取りになるのか、一日じゅう歩き回って考え続けたそう。
「想像以上に強い風や海との近さも体感し、『がんばって克服しましょう』と渡邉さんと話しました」
【難条件】軟弱地盤&塩害&強風!

海岸から眺めた渡邉さん宅。焦げ茶色の平屋建てで、違和感なく周囲にとけ込んでいます。海岸線まではわずか50mという近さ。目の前に広がる海はプライベートビーチ感覚で、子どもたちは水着のまま海に泳ぎに行くそう。
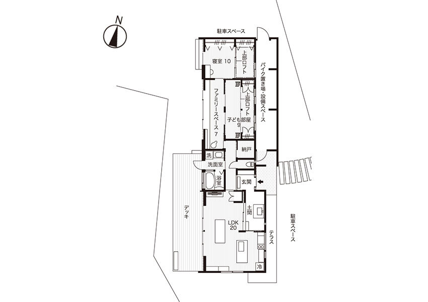
LDK

リビングからデッキ、海へとつながる開放的な眺め。強い西日に負けないよう、デッキには堅牢で耐久性のあるイタウバ材を使用、窓には断熱効果の高い桐材のブラインドを。

土間の引き戸を閉め、梁につけたロールカーテンを下ろせば、来客用の寝室に。

リビング脇の土間。「強風で雨戸を閉めてしまう冬は、海のかわりに火を楽しもうと薪ストーブを入れました」
キッチン

ご主人主導で設計したキッチンは、ステンレスの作業台が主役。収納もでき、中には日常使いの食器や炊飯器など家電が。「海を眺めながらの作業は最高の気分です!」
自然素材に包まれた空間で 表情豊かな海を楽しむ至福のとき
ファミリースペース

廊下を兼ねたファミリースペースには、机やベンチになるカウンターと本棚を設置。外のドラム缶は、ご主人手作りの五右衛門風呂!
子ども部屋

引き戸をあけるとファミリースペースと一体化する子ども部屋。ロフトも設け、限られたスペースを有効に。仕切りをつくれば、2部屋にすることもできます。
寝室

仕事の関係で就寝時間が異なるご夫妻。左手に見える引き戸で仕切れば、別々の寝室になります。子ども部屋と同様にロフトがあり、ご主人の隠れ家になっています。
洗面室 & 浴室

【写真左】「INAX」の白い洗面台に、「VASE」のオーダーメイドの素焼きタイルがあたたかみを添えています。海辺の家らしく、照明にはマリンランプを使って。
【写真右】「INAX」のシンプルなユニットバス。窓からの絶景が魅力の浴室です。「電気を消して入ると、海の向こうに見える空港の明かりに癒されます」
玄関

奥さまの実家からゆずり受けた靴箱を再利用。玄関を上がり、左手にLDK、右手に寝室などを配置。L字形の廊下で、プライベートスペースが見えないようになっています。
「軟弱地盤&塩害&強風」に負けない3つのコツ
海辺だけに、地盤に対する懸念もありました。実際に地質調査をすると、やはり結果は砂地の軟弱地盤。奥さまは不安を感じたようですが、安藤さんからこの土地に最も適した地盤改良法を提案され、徐々に安心感が。もともと平屋建てが希望でしたが、2階建てより地震の揺れが少ないということも安心材料になりました。
塩害対策とコストダウンを両立させるため、海側の外壁は塩害に強いレッドシダーの板張りにしましたが、反対側は安価なガルバリウム鋼板に。サッシも海側は高価な木製でも、ほかはアルミ製と使い分けました。
「外壁や敷居についた塩を水で洗い流したり、定期的なメンテナンスの手間はありますが、この景色にはかえがたいもの。海をひとり占めしている気分です。家にいるのが大好きになり、私も妻もビールの量がふえました(笑)」
地盤改良

軟弱で液状化の可能性も高い埋め立て地。掘削した縦穴に天然の砕石を詰め、地盤を締め固める「砕石パイル工法」で改良しました。従来の一体型杭工法と異なり、複数の砕石がかみ合って形成されているので、地震によって折れることもなく、液状化による水圧もすき間から逃がすことができ、地盤の不安定化を回避します。
塩害に強い素材を徹底

海側の外壁は塩害対策のため、耐久性のある厚さ18㎜のレッドシダー材を張り、さらに紫外線にも強い自然塗料で着色。窓周辺もさびに弱い金属素材を避け、サッシは木製、敷居にはみかげ石を使用しています。ほかにも、エアコン室外機やヒートポンプ給湯器など、海浜地域向けの耐塩害仕様製品を採用。
強風をかわす工夫を

海風が強く、特に冬は強風が吹くため、家のフォルムにも工夫が。海側を低く、反対側を高くした片流れ屋根で、自然に海からの風を逃がしています。洗濯物も外干しが難しい日は、ファミリースペースに設置した昇降式の物干しポールを利用。また、窓ガラスを風から守るため、雨戸も設けています。
DIY

リビングのコーナーに、ご主人が廃材で身長計を手作り。子どもたちの身長を記して思い出に。窓の下のすき間を利用した収納スペースや、奥さまのソファベッドを解体してつくった薪小屋も、ご主人自慢の作品です。
DATA. 渡邉さん宅(愛知都)

Profile.

渡邉さん(愛知県)
ご夫妻と5歳になる双子の息子さんの4人暮らし。売地ではなかった海辺の土地を、不動産業者を通じて地道な交渉の末に入手。「DIYでこの家をいじるのが趣味。機能重視なので、妻の許可を得る約束になっています」
設計のPOINT

悠らり建築事務所
安藤 亨英さん 安藤 節子さん
海という自然との共存を心がけ、まず全室から絶景が眺められる角度で家を配置しました。外観も塩害や強風から家を守るだけでなく、風景のじゃまにならないよう、自然になじむ色や素材を使っています。間取りは廊下を広げて多目的に使えるファミリースペースを設けるほか、玄関から土間を通って台所に荷物を運べるようにするなど、育児中の奥さまの家事動線を工夫しました。脱衣所を兼ねた洗面室の床には水に強い竹材を使うなど、こまかな部分にも配慮しています。
【Profile】
亨英さん(1973年生まれ)は名古屋市の設計事務所を経て、節子さん(72年生まれ)は輸入住宅・リフォーム会社を経て、2007年に夫婦共同で事務所を設立。男女両目線を生かした設計が得意。
| 家族構成 |
夫婦+子ども2人 |
| 敷地面積 |
840.76㎡(254.33坪) |
| 建築面積 |
113.35㎡(34.29坪) |
| 延べ床面積 |
101.86㎡(30.81坪) |
| 構造・工法 |
木造平屋建て(軸組み工法) |
| 工期 |
2010年9月〜2011年3月 |
| 本体工事費 |
約2150万円 |
| 3.3㎡単価 |
約70万円 |
| 設計 |
悠らり建築事務所 TEL: 052-871-5689 |
| 施工 |
㈲藤里建築工房 TEL: 052-805-7662 |
★おしゃれな注文住宅を建てたい方はこちら
★注文住宅のカタログを取り寄せたい方はこちら
コメント
全て既読にする
コメントがあるとここに表示されます