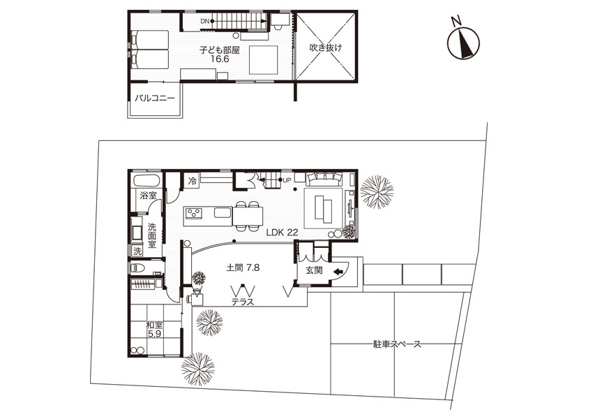
【加藤さん宅(茨城県) 本体工事費約1990万円 建築面積約23坪】
ご夫婦ともに茨城県出身。新居は奥さまの実家の近くに建てました。「住宅メーカーの展示場も見に行きましたが、やっぱり一生住む家は自由に建てたいねと話し合って、地元を拠点にしている建築家を探しました」 加藤さんの新居でまず目を引くのは、玄関ホールを兼ねた広い土間スペース。大きなアイランドカウンターを備えたキッチン&ダイニングにも、ちょっと奥まったリビングにも、この土間が心地いい開放感をもたらします。
「特にキッチンにつなげたのは大成功!調理中はどうしても床が汚れますが、ゴミをざっと土間に掃き出せるので、掃除が苦にならないんです。おかげで趣味のお菓子づくりも気軽にできるようになりました」と、意外なメリットを実感している奥さま。もちろん、やんちゃ盛りの子どもたちのプレイスペースとしても大活躍です。
できるだけオープンなプランを希望して、1階、2階とも間仕切りは最小限に。水回りと2つの個室以外は扉をつけず、のびのびとした空間を楽しんでいるそう。じつはこれがコストダウンにも大きく貢献。間仕切り壁や扉にかかるコストを抑えられた分、こだわりたかった内装に予算を割くことができました。
「壁はしっくい、LDKの床は無垢のナラ材で仕上げました。わが家は普段からみんな裸足なので、質感のいい素材を使ってよかったです」。1階の床のワックスがけや和室の壁面のペイントなどのDIYや、部材の施主支給にも積極的にチャレンジ。建築家の亀谷光弘さんにアドバイスを仰ぎつつ、楽しみながらマイホームを完成させました。
「予算内」達成のコツ3カ条 by 加藤さん
-
1階、2階とも間仕切りを最小限にして壁や建具のコストをカット
-
収納スペースはつくり込まず手頃な既製品を上手に活用
-
DIYや施主支給など、自分たちでできるコストダウンにチャレンジ
1F 土間 & 玄関
【コストダウンIDEA】土間はタイルなどで仕上げず、モルタル打ち放しのままに。

玄関のたたきがそのまま土間スペースへとつながるプラン。右手の壁面には大容量のシューズクローゼットを造りつけました。 折り戸を開け放すと、庭、土間、LDKがひと続きに。「子どもたちは、外みたいで中みたいな空間が大好き。遊び場として最適です」
土間には、子どもたちが自由にお絵かきできるよう、壁の一部を黒板塗料でペイント。素朴なチョークのタッチが空間の楽しいアクセントに。
開放的なダイニングと落ち着けるリビング。 このメリハリが効果的
「依頼先選びの決め手になったのは、亀谷さんが手がけたお宅を実際に見せてもらえたこと。建築中の現場のほかに、ご自身が設計したご自宅にもおじゃましたのですが、わが家と同年代のお子さんがいて、奥さまのお話も聞けて、家づくりがすごくリアルに感じられたのです」。
建築家と会うのはもちろんはじめてだった加藤さん夫妻にとって、家族ぐるみで住まいや暮らしについて話せたのは大きな契機になったよう。 「亀谷さんのご自宅も間仕切りの少ない開放的なプランで、こんな家にしたい!と具体的なイメージがわきました」 新居に対する譲れない要望と、プロからの的確なアドバイス。その両方を絶妙なバランスでとり入れたことが、はじめての家づくりを成功に導きました。
1F LDK

どこにいても家族の気配を感じられるよう、1階と2階を吹き抜けでつなぎ、1階の和室も土間越しに見通せるレイアウトに。

寒さ対策用のカーテンが下げられるよう、土間部分の天井にカーテンレールを。「ちょっとした工夫ですが、体感温度が違います」 リビングはあえて壁がちの空間に。「開放的な明るい場所だけでなく、ちょっと奥まった感じの落ち着けるスペースも欲しくて」
【コストダウンIDEA】オープンなつくりにして施工費をカット。
シンク側は収納をつくり込まず、オープンのままに。奥行きのあるアイランドカウンターは収納もたっぷり。土間側には食器のほか、LDで使うこまごました日用品もしまっています。

1F DK
【コストダウンIDEA】床の蜜ろうワックスはDIYで。布でのばすだけだから簡単!

土間に面したテーブルがだんらんの中心。お菓子づくりを楽しめるよう、キッチンの天板はステンレスに。ご主人はここでそば打ちも。
2F 子ども部屋

小学生の長男のスペース。デスクはご主人のおじいさまのお手製とか。家族の愛用品が世代を超えて使い継がれています。
【コストダウンIDEA】2階の床は1階より安価なスギの無垢材に。

【コストダウンIDEA】間仕切りにも使えるメリットに注目して手頃な収納家具を採用。
造りつけの収納はやめて、「イケア」の置き家具を採用。部屋の中心に移動させれば、間仕切りとしても使えます。

1F 浴室・洗面室・トイレ
【コストダウンIDEA】浴室を在来工法より施工費の安いシステムバスを採用し、デザインにはこだわりました。トイレは1カ所だけにし、設備費と配管のコストをカット。
「洗面室側をガラスにしたくて、それがOKだった『TOTO』のシステムバスを選びました」。浴室の窓からの光が洗面室まで届きます。浴室のアクセントウォールと似たブルーを洗面室にも採用し、白いタイルや実験用シンクなどシンプルなアイテムが引き立ちます。「マンションならトイレは1つが普通。わが家も1つにしましたが、不便はありません」。コストを抑えられた分、タンクレスに。
1F 和室
【コストダウンIDEA】壁と天井は好みの色をDIYでペイント。縁なし畳は安価なものを探して施主支給 。クローゼットは扉や仕切り壁を省略し、市販のユニットを駆使。
「布団派なので、寝室は畳敷きに。寝るだけだから明るさはいらないと考えて、フロアライトだけにしました」
スペースだけ設けておき、「イケア」の収納ユニットを配したオープンクローゼット。

外観
【コストダウンIDEA】希望していた左官仕上げを吹きつけに変更。


「外観は白か黒かで迷って、汚れの目立ちにくい黒を選びました」。玄関まわりのみ、アクセントとしてレッドシダーの縦板張りに。
周囲は歴史ある建物の多い地域。軒を深く出すなど、外観デザインにさりげなく和の趣を生かし、街並みになじむよう配慮しました。
設計のPOINT

FCD一級建築士事務所 亀谷光弘さん
生活に必要な水回りなどの機能をすべて1階に集中させ、平屋の上に子ども部屋を乗せたようなプランに。高齢になったときはワンフロアだけで暮らすこともできます。このようなプランは建築面積が大きくなる分、総2階と比べてコスト高になりがちですが、外壁の仕上げを左官から安価な吹きつけにするなどしてバランスをとりました。また建築コストを抑えるためには、施工会社選びも重要な要素。見積もりをこまかく提示でき、施工技術も高い会社を選ぶことが大切です。
【Profile】
1972年千葉県生まれ。武蔵野美術大学造形学部建築学科卒業。都内の設計事務所に勤務後、2001年に現事務所を設立。2003年に筑波大学大学院芸術研究科建築デザインコース修士課程修了。
DATA. 加藤さん宅(茨城県)

| 家族構成 |
夫婦+子ども2人 |
| 敷地面積 |
46.54㎡(74.58坪) |
| 建築面積 |
76.80㎡(23.23坪) |
| 延べ床面積 |
108.26㎡(32.75坪) 1F76.80㎡+2F31.46㎡ |
| 構造・工法 |
木造2階建て(軸組み工法) |
| 工期 |
2013年9月~2014年7月 |
| 本体工事費 |
約1990万円 |
| 3.3㎡単価 |
約61万円 |
| 設計 |
FCD一級建築士事務所(亀谷光弘) TEL 029-869-9975 |
| 設計 |
篠屋木材工業(鬼澤善則) TEL:029-864-2881 |
★おしゃれな注文住宅を建てたい方はこちら
★注文住宅のカタログを取り寄せたい方はこちら
おすすめ記事
2016.08.23【Yさん宅(東京都)】家じゅうのいろいろな場所で、元気にのびのび遊び回るY家の子どもたち。「家事を楽しんだり、友達やご近所と集まったり、剣道や音楽の趣味に没頭できるような、そんな家をイメージしてつくったら、自然と子どもたち...続きを見る
2016.01.17半戸外の心地よさが人気の "土間スペース" 暮らしや趣味の 幅が広がる おすすめスペース屋内と屋外をゆるやかにつなぐ半戸外スペースを「中間領域」といいます。屋根つきデッキや縁側のほか、家の中にある土間や...続きを見る
2018.07.19こだわりの家を建てたいけれど、予算があまりなくて…。と理想の家づくりをあきらめている人はいませんか?大丈夫、建てられます!!建主の思いと設計者の知恵とアイディアがたっぷり詰まった素敵な事例を紹介します。続きを見る
コメント
全て既読にする
コメントがあるとここに表示されます