【Yさん宅(東京都)】
家じゅうのいろいろな場所で、元気にのびのび遊び回るY家の子どもたち。「家事を楽しんだり、友達やご近所と集まったり、剣道や音楽の趣味に没頭できるような、そんな家をイメージしてつくったら、自然と子どもたちにとっても楽しい家になりました」
長女の小学校入学に合わせて家づくりを計画したYさん。閑静な住宅街の袋小路にある、路地裏には豊かな緑が茂るこの敷地にひと目惚れしたそう。「ハッとするような木々の美しさや、路地から吹くしっとりとした風。そんな自然の機微を感じられる環境で子どもに育ってほしいと思い、周囲の自然をできるだけとり込むプランにしてもらいました」
1階は、のびのび遊べて外につながるプレイルーム。「昔でいう寺子屋みたいな、地域に開けた場所にしたいという思いもありました」と、Yさん。ご近所の子どもたちや友人を集めて英語教室をしたり、味噌づくりのワークショップを開く予定もあるそうです。
Yさん宅のびのびPoint
- 好きなところで遊んで食べて、家じゅう好きなところを自分の居場所に
- 五角形の空間をぐるぐる回りながら家族や屋外とつながる楽しさ
1F プレイルーム

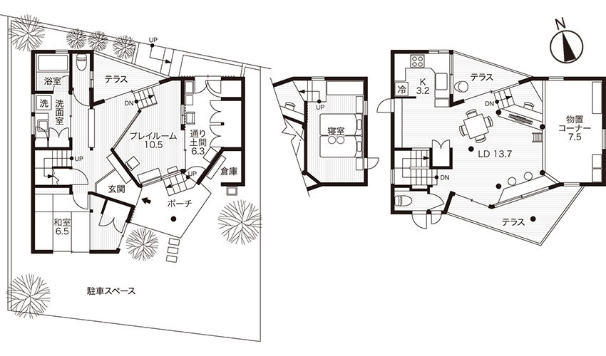
高低差があり北側が1.5m低い敷地。プレイルームの天井を高くとることで、段差のある南と北をつなぎました。玄関ポーチ、通り土間、テラス、廊下などさまざまな場所からプレイルームをのぞくことができます。

【写真左】会社の剣道部にも所属するお父さんたっての希望は、「竹刀が振れる、天井の高いスペース」。
念願がかなったプレイルームです。
【写真右】玄関からプレイルームに続く廊下のブックコーナー。別名「家族の図書館」。
庭から直接プレイルームに入れて、広くて天井が高いから、体育館みたいに思いきり遊べる!

【写真左】外から通り土間を通って直接プレイルームに行けるので、なにかと便利。ワークショップや英語教室の開催時にもスムーズです。
【写真右】通り土間に面した引き戸を全開にすると、さらにのびのび。床材は、やわらかい杉のフローリング。基礎蓄熱の床下温風ダクト暖房で、冬はぽかぽか。
1F 通り土間
通り土間を抜ける 風や光が大好き! いつも自然と一緒

【写真左】プレイルームの脇を通って、南の庭から北の裏庭&路地に抜ける通り土間。アウトドア用品やガーデニング用品の大型収納も完備。
【写真右】南側の庭から、北の裏庭に抜ける通り土間。傾斜地を生かした段差や、外のような中のような場所が、子どもたちは大好き!
2F リビング

【写真左】リビングの一角の、箱と板でつくった机コーナー。「大きくなったら大工さんになりたい!」という工作好きのFちゃん。ここはもっぱらFちゃんの「手づくり工房」。右半分は電車が大好きなHくんの「駅長室」。窓の外は南に面したテラス。
【写真右】ご近所の庭でとれた柿。
2階は大きな五角形のワンルームのLDK。食べたり勉強したり遊んだりする、暮らしの中心です。Y家は、この五角形を中心に玄関ポーチやテラスをとり込みながら、屋内から屋外へつながるつくり。敷地の高低差を利用した段差や高い天井、こもった空間がそれぞれの“居心地”をつくっています。LDK、プレイルーム、ブックコーナー、和室、そして、玄関ポーチや通り土間、南北のテラス。家じゅうが自分のコーナーになり自分の居場所になるから、好きな場所を見つけて、好きに遊んで宿題をして、のびのびと過ごします。
広々しているからリビングでだって素振りができちゃう

工作をしていたかと思えば、今度は自作のバットで素振りを開始!
2F 物置コーナー

天井の低い物置スペース。子どものおもちゃを置いていたら、いつの間にか子どもたちのスペースになっていました
2F LD
LDKが一体だから家事をするお母さんのそばで宿題ができる

食卓で宿題中のFちゃん。「宿題をする時間は私がキッチンにいることが多いので、今のところ、だいたいここでしていますね」
家じゅうのあちこちに居心地のいい場所があるから、自分の居場所は自分で探す
2F テラス

LD北側のテラス。「路地をはさんだ向かいの団地に大きな木がたくさんあるので借景も楽しめる、気持ちのいいスペースです」
2F キッチン

【写真左】コンロは子どもたちが近づきにくい奥のほうに配置しました。
【写真右】「キッチンには絶対、窓がほしかったんです」と、奥さま。
遊ぶ場所のそばにキッチンがあるからお手伝いもしやすい

においや油飛び、衛生的なことを考慮して、LDとゆるやかにつながりながらある程度独立させたプランに。
1F 和室

天然の素材と畳が気持ちいい和室。「今は家族みんなの寝室になっています」。天井を低めに、間口も低くしつらえ、落ち着きのある空間に。
「和室は必ずほしかったんです。子どもたちには日本人として畳の文化を知ってほしかったし、茶の間にも客間にも使えて効率的」とご夫妻。現在は家族の寝室として活躍しています。また、子どものためにも自分たちのためにも、ビニールクロスや合板ではなく、天然の木の床、左官の壁、和紙の障子など、本物の素材がゆずれなかったといいます。
家の中と外が自然とつながる、居心地がよくてのびのび楽しいY家です。
1F 玄関

【写真左】玄関の壁は、すさと骨材を混ぜた石膏塗り。玄関ポーチから土間を敷き込み、外とのつながりを
もたせました。
【写真右】玄関を入って右手の廊下はブックコーナーとプレイルームへ。階段を上がった2階がLDK。
みんなが通る場所は 水はけがいい コンクリート

玄関ポーチは広々と。通り土間のほうまで敷き込みました。
1F サニタリー

【写真1】壁と天井に杉材を使った浴室。紺色のモザイクタイルとのコントラストで落ち着きのある空間に。しっかり換気できるよう、風が抜けやすい位置に窓を設けました。
【写真2】トイレはシンプルに。
【写真3】洗面室の床と壁にも杉材を使って。「じつは“山小屋風”が隠しテーマなんです(笑)」と、奥さま。
外観

「五角形」を内包した空間がよくわかる外観。緑の屋根は甲羅を思わせ、家全体が亀のように見えてきます。設計を依頼した「かめ設計室」のねらいどおり!?

庭で読書をするのが好きなお父さん。お父さんのいる週末は、庭で遊ぶ子どももどこかうれしそう。
バックヤード
お父さんが見ていてくれるから安心

【写真左】プレイルーム&脇のテラスとちょうどいい位置関係。“場所”がつながる楽しさがいたるところに。
【写真右】通り土間を抜けると、この裏庭(バックヤード)に出てきます。路地に面したほんの小さなスペースですが、車の通らない道なので、子どもの遊び場にはもってこい。
DATA. Yさん宅(東京都)

設計のPOINT
大切にしたのは、建主さんの希望、あの場所、あの土地です。敷地周辺の道路や緑地帯、高低差などの特徴を生かすように「五角形」を内包させ、大きさの異なる2つの「五角形」をずらすことで、空間の余白や高低差、屋外とのつながりをもたせ、いろいろな居心地の場所をつくりました。子ども部屋という決まった場所はあえてつくらず、子どもが小さい頃は好きな場所で、成長して部屋が必要になったら、どこかを囲って部屋にできるようなフレキシブルさをもたせました。
一級建築士事務所 かめ設計室

羽渕 雅己さん
1994年三重大学大学院修了。1994~2002年象設計集団に在籍、2002年から早稲田大学後藤春彦研究室で個人助手を務め、2005年かめ設計室を設立。
Y 晶子さん
1993年多摩美術大学卒業。1994〜2004年象設計集団に在籍、2005年に羽渕氏とともにかめ設計室を設立。
| 家族構成 |
夫婦+子ども2人 |
| 敷地面積 |
146.27㎡(44.25坪) |
| 建築面積 |
66.44㎡(20.10坪) |
| 延べ床面積 |
108.89㎡(32.94坪) 1F 57.67㎡ + 2F 51.22㎡ |
| 構造・工法 |
木造2階建て(軸組み工法) |
| 工期 |
2012年8月〜2013年3月 |
| 本体工事費 |
約3020万円 |
| 3.3㎡単価 |
約92万円 |
| 設計 |
かめ設計室 |
| 施工 |
㈲原島建築 |
★おしゃれな注文住宅を建てたい方はこちら
★注文住宅のカタログを取り寄せたい方はこちら
コメント
全て既読にする
コメントがあるとここに表示されます