設計図面には、普段使わないような専門用語や記号が多数記載されており、はじめて見る人にとっては難解な部分もあるでしょう。
このページでは特に目を通したほうがいい設計図面をご紹介します。わからないところは設計者に質問し、図面を見ながら完成した家をイメージするなど、建主としても家づくりに積極的にか関わっていきましょう。
「家づくりにおける設計図書の種類と内容」もぜひ参考にしてください。
配置図

敷地に対して、建物がどのように配置されるかを、敷地の真上から見た状態で示したものが「配置図」。この図面から門や建物、車庫、庭の位置、建物のアウトライン、道路や隣地境界線までの距離、方位、排水ルートなどを読みとることができます。
道路→門→建物のアプローチはスムーズか、車庫や勝手口は使いやすい場所に設置されているかなど、動線をチェック。狭小地では隣家との距離が最小限しかとられないことが多いもの。こちらの家を建てることで、隣家のプライバシーや日照に問題が起こらないかも考えてください。
配置図の確認ポイント
- 建物や庭、車庫の配置や広さはよいか。図面上だけでなく、建設地でも確認するとよい。
- 道路から車庫や門、玄関までのアプローチはスムーズか。勝手口は便利な場所か。
- 各部屋の日当たりはよいか、方位を確認する。
- 隣地や道路境界線と建物の間隔はどうか。日当たりや騒音、視線など、隣家との関係はどうか。互いの窓が向き合わないように注意。
- 水道や電気のメーターの位置は、検針の際に不便はないか。
立面図

建物の外観を東西南北の4面から見たのが「立体図」で、完成のイメージをつかみやすいのがこの図面のです。建物を外から見たときの玄関扉や窓、バルコニー、フェンスの位置などがわかるほか、屋根の勾配や素材、外壁にはどんな素材を使うのかも記されています。
特に、家の顔ともいえる玄関まわりがどんなデザインになるのかをしっかりチェック。また、見落としがちな庇やといの有無も、この図面で確認しておきましょう。
さらに、北側斜線制限や道路斜線制限など(「購入する前に知っておきたい土地の法規制」を参考に)についても記入されていますので、周囲との関連も確認しておきます。
立面図の確認ポイント
- 建物全体のバランスや高さはよいか。
- 屋根や軒の形、勾配はどうか。軒の出寸法は適当か。
- 窓は各方位の諸条件(日照や通風、隣地や道路が迫っているなど)に配慮がなされている。サイズやバランスがよいか。
平面図

「平面図」とは、いわゆる間取り図のことで、各階ごとに建物を水平に切り、真上から見た状態で示されます。この図面を見れば、部屋の広さや配置、壁や窓、ドア、造作収納の位置などがわかります。
広さを確認するには、図面の周囲に記された数字を確認。ただしこの寸法には、一方の壁厚の中心からもう一方の壁厚の中心までの“心々(しんしん)寸法”と、対面する壁と壁の内側を測った“有効寸法”の2種類があります。
部屋や階段、廊下などの間口や奥行きは、主に心々寸法で描かれているので注意してください。なお、建築図面では、寸法の単位はmmを使用します。
快適な暮らしには、部屋から部屋への移動やさまざまな行為が効率良くできることが重要です。平面図を見るときは、実際に暮らしているつもりで、玄関→廊下→LDなどの動線を指先や鉛筆でたどってみます。
家具が必要なLDや寝室などは、置きたい家具の寸法を設計者に伝え、記入してもらいます。動線は単純で短いほうが無駄な動きがなく、暮らしやすいものです。
採光と通風も重要なチェック項目なので、部屋の方位や外部の視線も考えながら確認しましょう。
平面図の表示記号例

平面図の確認ポイント
- 部屋数の広さ、配置は、家族構成や暮らし方に合っているか。LDや寝室、子ども部屋などは、置きたい家具をあらかじめ記入してもらうとよい。
- 動線はスムーズか。階段や廊下、ドアの幅はよいか。有効寸法は実施設計図で確認する。
- 上下階の部屋の位置関係はよいか。水回りは上下階でそろえると、コストの無駄がない。
- ドアを開閉するときに、ほかの部屋のドアや歩いている人にぶつからないか。
- 窓の配置は、採光や通風、プライバシー保護に配慮されているか。家全体の風通しはよいか。
- 納戸や造り付け収納は、必要な面積が確保されているか。
-
↓注文住宅で家を建てたSさんの体験談を見る↓
2019.07.20東京スカイツリーや東京タワー、天気の良い日には富士山まで見える最高のロケーションを持つ土地に居を構えられたSさん。家の前には、大きな河川敷があり、どこからともなく通行人の鼻歌が聞こえてくる。そんな気持ちを開放してくれる、心...続きを見る
2019.07.31スポーツやキャンプなどのアウトドアやDIYなど多くの趣味をお持ちのSさん。幼いころからご実家で鳥小屋や犬小屋を造られるなど、DIYの経験も豊富にお持ちで、今回の家づくりの際もDIYをする余白を設けたこだわり満載の住まいを叶...続きを見る
展開図

部屋の真ん中から4面の壁を1面ずつ見た状態を示したのが「展開図」。
たとえば、窓の場合は、平面図を見れば、位置や間口、開閉の仕方はわかりますが、床から何cmのところに、どのくらいの窓がついているかを読みとることはできません。こうした高さ方向のチェックができるのが展開図です。
平面図と照らし合わせながら、窓やドアなどの間口部分の位置や高さ、階段の手すりの高さなどをひとつひとつ確認してください。
腰窓に沿ってローボードやデスクを置きたい場合は、窓の高さは適切かをチェック。キッチンや造作収納の吊り戸棚は、出し入れしやすい高さかも調べましょう。
また、4面の壁の大部分を窓やドア、クローゼットが占めていると、壁として生かせる面積が少なくなります。そのため、収納家具が窓をふさぐようにしか置けないことがあるので要注意です。
展開図の確認ポイント
- 天井や窓の高さはよいか。デスクやローボードを並べても窓をふさがないか。
- ドアの位置や高さはよいか。ドアや収納扉、窓の上端がそろっていないと、すっきり見えない。
- キッチンや洗面台のカウンター、造り付けのテーブルなどの高さは適当か。
- 押入れの天袋やキッチンの吊り戸棚は使いやすい高さか。奥行きは平面図で確認する。
- 壁とドア、収納扉の面積比のバランスは良いか、色彩計画は、展開図を見ながら行うと、イメージがつかみやすい。
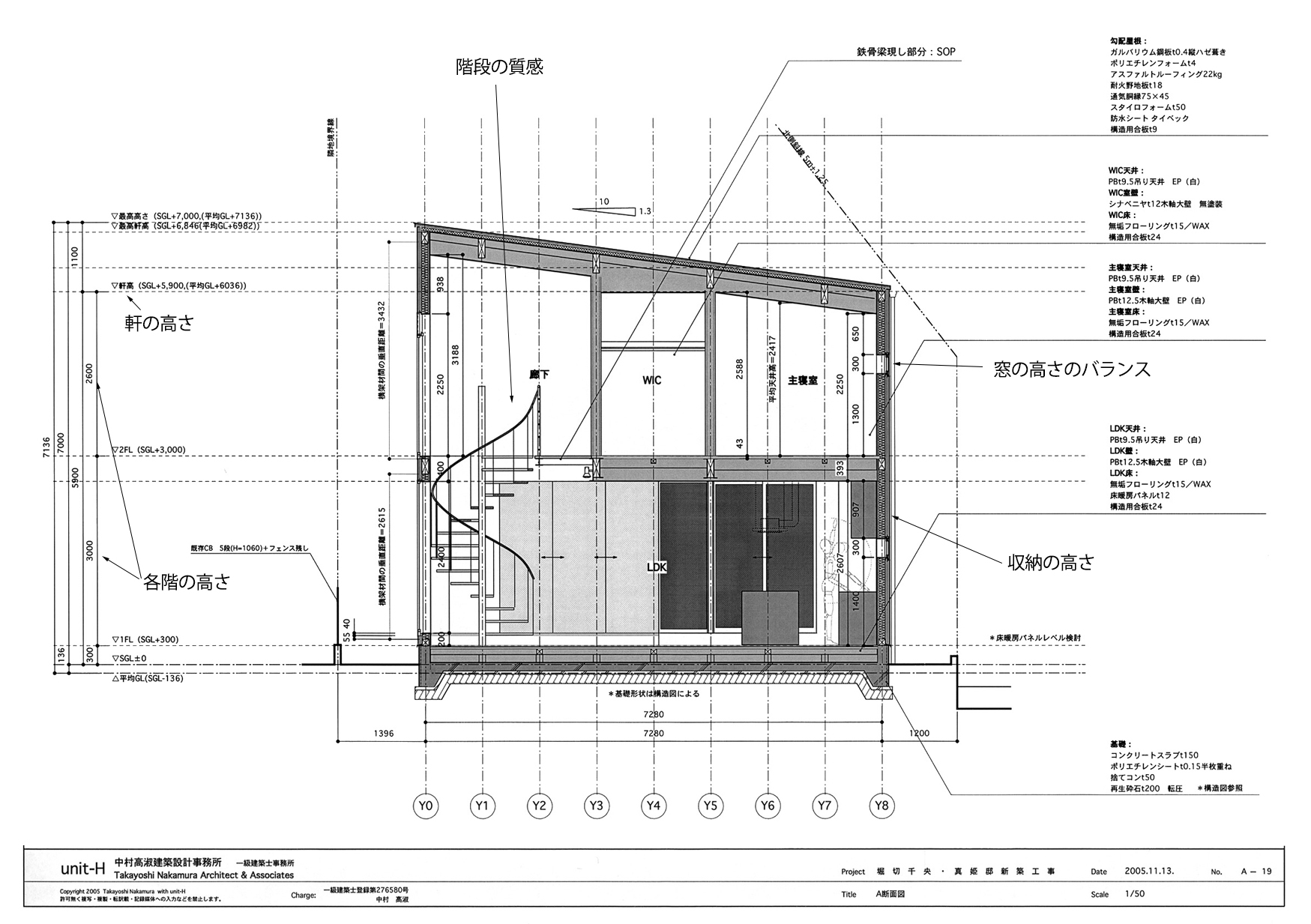
断面図

建物を垂直に切りとり、各部屋の床の高さ、1階、2階などの各階の高さ、軒の高さなど、建物の高さを表したのが「断面図」です。部屋ごとの高さを表している展開図に似ていますが、こちらは建物全体の断面を見たもので、窓やドアなどの高さのバランスが把握できます。
また、スキップフロアをとり入れたプランなどは、断面図を見ると上下階のつながりがわかりやすいので、しっかり見ておきましょう。
断面図で使われる略字記号の例

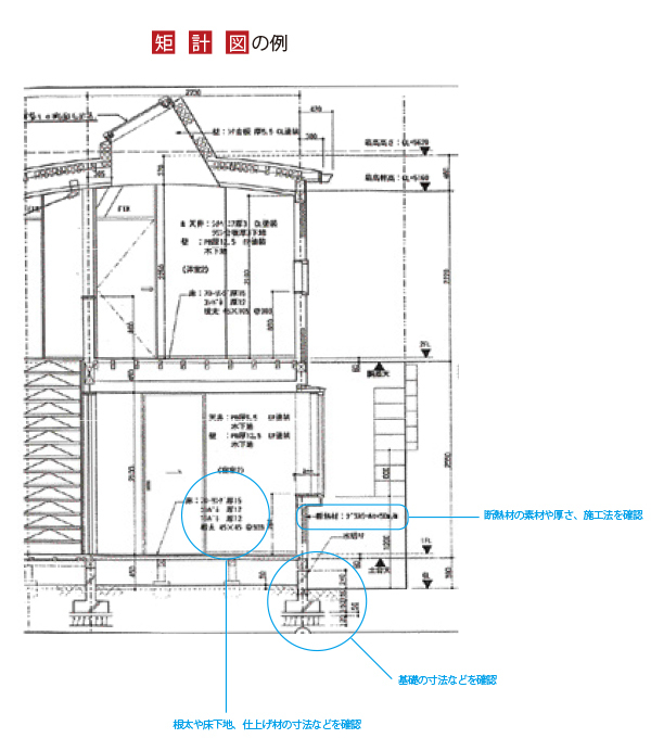
矩計図(かなばかりず)

断面図の一種で、より詳しくあらわされたのが「矩計図(かなばかりず)」です。基礎の高さや構造、床下の防湿処理、根太(ねだ)や床材の寸法、壁の断面、屋根の勾配や天井裏の部材寸法などが示されています。
建物が完成すると、壁や床の内部など目に見えない部分の構造がどうなっているのかは、全くわかりません。矩計図は複雑な図面ですが、建主が建物の内部構造を理解するうえでも役立つので、しっかり目を通したいものです。
建物の耐久性を左右する基礎まわりは、基礎伏図(基礎を真上から見た図)と照らし合わせながら確認するといいでしょう。ちなみに基礎伏図からは、床下換気口やアンカーボルトの位置などがわかります。
住み心地ばかりか、省エネ性にも関わるのが断熱材です(「省エネに必要不可欠!住宅の断熱性を高める方法」を参考に)。
壁や床下、天井裏などにどんな素材の断熱材が入っているか、厚みはどのくらいかなど確認してみましょう。
矩計図の確認ポイント
- 基礎高、土台や根太など、建物で重要な部分の強度は十分か。地盤面や床下の防湿・防虫・防腐処理などの対策がなされているか。
- 断熱材は、どこにどのように施行されるか。材料や厚みも確認。
- 天井やドアの高さはよいか。2階の腰窓などは、危険のない高さかを確認する。
設備図

「設備図」とは、平面図に各種設備の系統、機器の品番、取り付け位置を示したもので、電気設備図、空調換気設備図、給排水設備図、ガス設備図などがあります。設備に不具合があると、入居してすぐに生活に支障をきたします。
特に入念にチェックして欲しいのが、「電気設備図」です。家電を多く使うリビングやキッチン、書斎では、コンセントの数や位置、高さを確認しましょう。消費電力の大きな電子レンジや食洗機、冷蔵庫などは専用の回路にして、アース付きにする必要があります。
また、収納家具を置くと隠れてしまう位置にコンセントをつけると、ホコリが原因の発火事故のおそれがあるので注意してください。LDでは、家具の配置換えに備え、テレビ端子を2カ所にしておくと便利です。
照明器具のスイッチがどこにあるかは、図面に示された線をたどればわかります。スイッチはドアの近くにつけるのが一般的ですが、ドアを開けたいときや収納家具を置いたときに隠れてしまわないかをチェック。
階段や廊下、寝室は、2カ所でオン・オフできる3路スイッチにしておくと便利です。インターネット用の配線なども確認してください。
設備図の確認ポイント
- 照明器具やスイッチの位置は良いか。コンセントやテレビ、電話の端子などの位置は、家具の配置換えをしても対応できるか。廊下や階段、寝室などは、照明が2カ所でオン・オフできる3路スイッチにすると便利。外まわりのコンセントや照明器具の位置も確認する。
- 水回り設備機器の種類や位置はよいか。外部の水栓の位置も確認する。
電気設備図の表示記号例

↓注文住宅で家を建てたSさんの体験談を見る↓
2019.07.20東京スカイツリーや東京タワー、天気の良い日には富士山まで見える最高のロケーションを持つ土地に居を構えられたSさん。家の前には、大きな河川敷があり、どこからともなく通行人の鼻歌が聞こえてくる。そんな気持ちを開放してくれる、心...続きを見る
2019.07.31スポーツやキャンプなどのアウトドアやDIYなど多くの趣味をお持ちのSさん。幼いころからご実家で鳥小屋や犬小屋を造られるなど、DIYの経験も豊富にお持ちで、今回の家づくりの際もDIYをする余白を設けたこだわり満載の住まいを叶...続きを見る
コメント
全て既読にする
コメントがあるとここに表示されます