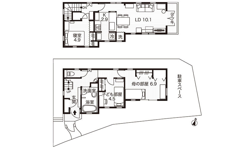
【Uさん宅(神奈川県)】
同居を機に、お母さまがずっと住みたいと言っていた鎌倉に家を建てたUさん。1階にお母さまの居住スペースを備えた二世帯住宅。ご夫妻、18歳のお嬢さん、お母さまの4人暮らし。
「子どもの頃、海外ドラマシリーズの『大草原の小さな家』が大好きで、お洋服をまねてみたり、ペチコートを自分でつくったり。いつかあんな暮らしがしたい!と思っていました」と奥さま。あこがれの暮らしやインテリアに近づきたくて、雑誌で研究したりインテリアショップを訪ね歩いて出会ったのがアンティーク。実家暮らしの頃から少しずつ買い集め、結婚後にご主人と暮らした家もアンティークの家具でコーディネートしていました。「だから、家を建てるときは絶対にアンティークが似合う家と決めていました」 時を重ねた風合いやアンティークならではのデザインが映えるように、壁にはしっくいを塗り、床は幅広のパイン材のフローリングに。ドアや収納の扉、照明にもできる限りアンティークの部材を使い、子どもの頃からあこがれたイメージどおりの家を完成させました。
ぽってりとしたしっくいの壁にアンティークの家具と雑貨が映えるLD。「家族が長く過ごす場ですし、アンティークの見せ場でもあるので、天井もしっくいで仕上げました」
年間3万人が手に取るおしゃれなデザイン住宅の無料作品集をもらう
ヨーロッパのカントリーハウスのような住まい
靴のまま室内に入る外国の家にあこがれて(笑)」、たたきのない土間玄関に。玄関ポーチと同じ石を使って、屋外につながる心地よさを演出。廊下の先の水回り(トイレ、浴室・洗面室)まで石の床が続きます。

【写真1】外構にはレンガを敷き詰めて。ところどころにアンティークのレンガをちりばめて、
味わいをプラスしています。
【写真2】外壁もしっくい仕上げ。鎌倉の街並みになじむように、落ち着きのあるアイボリーを選びました。
【写真3】古い枕木を使った門柱。
お気に入りのアンティークに囲まれて 家事動線や暮らし心地も◎!
Uさんが家づくりのパートナーに選んだのは、アンティークを生かした家づくりに定評のある「サラズ」。10年以上前にインテリア雑誌で知ってからは、「サラズで建てないなら家はいらない」というほど惚れ込んだといいます。
奥さまのアンティーク好きを理解し応援しているご主人は、「古いものは落ち着きますし、しっくいの壁や本物の素材もとても心地いいです。でも、なにより妻が幸せそうなのがいちばん(笑)」。
パーツとして使った扉や照明などのアンティーク部材は、すべて自分たちの目と足で探し出したもの。「ネットショップやアンティークショップで買ったものを自宅(前の家)に配送してもらい、とりつけのタイミングに合わせて車で運んできました」。ドア、ステンドグラス、アイアンのフェンス、照明など、その数は20点以上。
好きなものに徹底的にこだわって情熱と思いを込めてカタチにした、世界にひとつだけの家ができ上がりました。

アンティークのカップボードが主役のキッチン。LDとの仕切りにはゆるやかなカーブを描くたれ壁をつけて、空間にやわらかさを。LD側から目隠しになる壁の奥にパントリーを設け、ストック食材や雑然としがちなものを収納。「出しておきたいもの以外はすべて隠せるので、インテリア性も使い勝手も抜群!」

【写真左】DKの一角に設けた洗濯機置き場。「料理やほかの家事をしながらお洗濯もできて、とても家事ラクです」
【写真右】カウンター下は使い勝手や通気性を考慮してオープンスタイルに。

【写真左】窓の外の緑を背景にしたリビングのディスプレイコーナー。ファクシミリやリビングのこまごまとした実用品を収納しながら、ガラスケースにはお気に入りのアンティーク雑貨を飾って。甘さを抑えたスチールフレームのガラスケースは「シェテラ」で購入。
【写真右】アンティークのドアや窓が映える、奥さまの大好きなシーン。

ファイヤーキングのカップでコーヒータイム。「前の家では飾っていたのですが、この家では暮らしになじむので、
普段から使うようになりました」
年間3万人が手に取るおしゃれなデザイン住宅の無料作品集をもらう
土間スタイルの玄関や置き床バスタブで “外国の家”の雰囲気に

階段下のトイレ。扉にはアンティークを使いました。

【写真左】まるで外国の家のようなバスルーム! ご主人の希望でお風呂は広々と。「本当は海外の猫脚のバスタブにしたかったのですが、やはり日本人の体形や入浴スタイルに合わないので、日本製のものにしました」。バスタブは「TOTO」。その分、洗面台は思いきり外国っぽく、「コーラー」のペデスタルタイプに。
【写真右】寝室に置いたアンティークキャビネットはご主人からのプレゼント。ディスプレイしたグリーンのスケールは奥さまのファーストアンティーク雑貨だそう。

【写真左】階段ホールに設けた収納の扉にもアンティークを使いました。
【写真右】お嬢さんの部屋は白を基調にシンプルに。ビーチテイストの白い板壁は、ハワイ好きのお嬢さんに大好評。
こだわりのアンティーク部材&仕上げ
LDKからガラス越しに見える景色が大好き

階段ホールの窓にとりつけたアンティークのアイアンフェンス。「サイズも考慮しながらなので、血まなこで探しました(笑)」。照明はフェンスに合わせて選んだ、サラズのオリジナル。

1階の廊下に設けた手洗いコーナーも、アンティークの家具&外国の家をイメージ。「パープルのモザイクタイルをアクセントにして、ちょっとパリテイストを意識しました」

昔のカントリーハウスのように、壁に埋め込んでとりつけた窓。「費用がかさむので、リビングの1カ所だけこのスタイルにしたのですが、雰囲気がぐっとよくなりました」

収納の扉を含め、10枚以上使ったというアンティークドア。中でもいちばんのお気に入りは、LDKの入り口に使ったガラス入り。フランス語で「待合室」と書かれたデザインがポイント。
「私のファーストアンティーク家具です!」

キッチンの収納は、以前から持っていたアンティークのカップボードを生かして。「はじめて買った思い入れのあるアンティーク家具なんです」。「ノーザンライツ」で購入したもの。
DATA. Uさん宅(神奈川県)

設計のPoint
Sala’s(サラズ)
企画・設計/ 伊賀 千恵さん
何年も前からサラズで建てたいと願ってくださっていた思いを大切に、Uさんが長年かけて集めたアンティークの家具やパーツが映えるようにデザインしました。敷地が小さめで横長、さらには風致地区ということもあり制限が多かったのですが、木々の緑や小川の流れもある素敵な環境でしたので、どの部屋にいても日当たりがよく、また周囲の自然をとり込んだ空間になるように、間取りや窓の位置を工夫しました。リビングからつながるデッキも設けて、空間に広がりを与えながら周囲の環境を満喫できるようにしました。
【Profile】
フランスやイギリスのカントリースタイルをモチーフに、質感とディテールにこだわった家を提案。デザイン性はもちろん、高断熱・高気密で耐震性にもすぐれた自然素材の家が人気。
| 家族構成 |
夫婦+子ども1人+母親 |
| 敷地面積 |
103.73㎡(31.38坪) |
| 建築面積 |
41.26㎡(12.48坪) |
| 延べ床面積 |
82.04㎡(24.82坪)1F 40.78㎡ + 2F 41.26㎡ |
| 構造・工法 |
木造2階建て(枠組み壁工法) |
| 工期 |
2013年1月〜6月 |
| 設計・施工監理 |
㈱Sala’s(サラズ) TEL:086-250-3800 |
★おしゃれな注文住宅を建てたい方はこちら
★注文住宅のカタログを取り寄せたい方はこちら
こちらの記事もおすすめ!
2016.04.13【Mさん・Aさん宅(東京都)】光と風が気持ちいい対面式のDKに集合してふれあいを楽しんで子世帯のMさん夫妻とその奥様のご両親のAさん夫妻。スタイル抜群のMさんは元CA。「竣工後にわかったのですが、設計をお願いした大塚泰子さ...続きを見る
2017.10.30こだわりの家を建てたいけれど、予算があまりなくて…。と理想の家づくりをあきらめている人はいませんか?大丈夫、建てられます!!建主の思いと設計者の知恵とアイディアがたっぷり詰まった素敵な事例を紹介します。続きを見る
2018.01.15「都市部のエリアで便利な場所に住みたい!」と思う人が直面しやすいのが、「土地が狭い」という問題ですよね。そこで注目されているのが、「賢い狭小住宅のつくり方」です。ここでは、狭小住宅についての基礎知識から、暮らしやすい狭小住...続きを見る
コメント
全て既読にする
コメントがあるとここに表示されます