【Iさん宅(埼玉県) 本体工事費 約2150万円 建築面積16坪】
会計事務所にお勤めのDさん(ご主人)と、販売のお仕事をしているRさん(奥さま)。地元が同じで同い年のお二人。共通の友達も多く、新居に友人が集まってワイワイ過ごすことも多いそう!
「予算内」達成のコツ3カ条 by Iさん夫妻
- 南向きでない割安の土地を購入して開口のとり方を工夫
- 空間を“小分け”にしないことで建材費を抑えつつ開放感を実現
- 「どんな暮らしがしたいか」を伝え、あとはプロにまかせる
1F リビング
大きな窓からやわらかな光が入るリビング。
【コストダウンIDEA】壁のほとんどはDIYでしっくい仕上げに。


「東からの光は夏も暑くなりすぎず、大きな窓から風が抜けて快適です!」
隣家と密接している南側にはスリット窓を設け、視線を遮りながら光と風をとり込んで。テレビボードは「アクタス」で購入。
1F リビング&テラス
【コストダウンIDEA】天井を張らずに高さを出しながら建材費をカット。視線が入らないのでカーテン入らず!圧迫感がないのも◎

玄関のアプローチも兼ねたインナーテラスは、自転車の整備にもってこい。「友人が集まるときはバーベキューもできるし、子どもができたらプール遊びをしたり、いろいろ夢が広がりますね!」 窓を閉めても十分な開放感!
フルオープンになるLDKの窓からやわらかな光が注ぐ、開放的でのびやかなIさん夫妻のお宅。ともにインテリアや住宅が好きで、日頃から夢の間取りについて話していたとか。
「じつは僕は大学が建築学科だったのですが、授業での知識しかないので、窓は南側でキッチンは北側と、固定観念のかたまり。こんなにコンパクトなのに開放的で、南に窓がないのに明るく快適なプランは、まったく想像できませんでした(笑)」とDさん。
土地探しも当初は固定観念にしばられていたお二人。駅近&南側道路を条件にしていたら、あっという間に予算オーバー。「建物も住宅展示場でさまざま見ましたが、自分たちが住みたい素材や間取りにするとやっぱり予算オーバーで」 暗礁に乗り上げた頃、イメージにぴったり、かつローコストの家を住宅雑誌で発見!
さっそくモデルハウスへ出かけました。「担当のかたと雑談をしていたら、その会話から私たちがどんな家でどんなふうに暮らしたいのかを読みとってくれて、目からウロコの提案をたくさんしてくれたんです」とRさん。 提案のひとつは「南向きでなくても塀で囲って大きな窓を設ければ、明るく快適に過ごせる」というもの。それに合わせて土地の条件を“緩和”したところ、予算がぐっと抑えられ、理想の家が一歩近づきました。
“つくり込まない”と“兼用させる”が理想の住まい実現のコツ
1F キッチン
【コストダウンIDEA】キッチンカウンターはダイニングテーブルと兼用

モデルハウスで見て「そっくりそのまま欲しい」と思ったコの字型キッチン。二人で調理がしやすく、「友達が集まったときもみんなで作業できます」。吊り戸棚も含めて、すべてオリジナルで造作したキッチン。 カウンター下は市販の棚やDIYでカスタマイズ。「扉がないほうが使い勝手も◎」。隠したいところだけカフェカーテンをつけました。
【コストダウンIDEA】扉や引き出しをつけずオープンに
カウンター下は市販の棚やDIYでカスタマイズ。「扉がないほうが使い勝手も◎」。隠したいところだけカフェカーテンをつけました。

外部空間をLDKにとり込むほかにも、ダイニングテーブル兼用のキッチンカウンターをつくったり、個室をつくらず棚やデスクでゾーニングするなど、コストを抑えつつ空間をのびのび有効に使うアイディアを提案してもらいました。
「僕自身の発想では、将来は子どもが2人くらい欲しいから、子ども部屋は2つだな、という感じ。でも提案されたプランは、とりあえず大きなフリースペースにしておいて、必要になったら仕切ればいいという発想。そのまま広々と使うのもありだし、壁で仕切らず家具で仕切ってもいい」。 コストが抑えられたうえに、ワクワクする家になったといいます。
友人たちが集まることが多いIさん家。ダイニング兼用のキッチンカウンターや、テラスをとり込んだLDKは、みんなでワイワイ過ごすのにも、もってこいです。
2F フリールーム

2Fへ上がると、広々としたフリールームがあらわれます。左手にはDさんの書斎、右手にはRさんのまんがコーナーが。床の一部をルーバー状にして、上下階で家族の気配を感じられるつくりに。空気を循環させる効果もあります。
【コストダウンIDEA】壁のないオープンなプランにしておいて間仕切りはいずれ検討。
将来、子ども部屋にする予定の部屋。「子どもが2人以上で個室が必要になったら仕切ればいい、という提案に感動しました」

1F 階段

階段の上り口はLDK内部にプラン。踊り場にも大きな窓があるので、採光にも一役買っています。
開口部の工夫で採光と通風を確保。 家じゅうを快適空間に
2F 寝室
【コストダウンIDEA】2階の壁もDIYでしっくい壁に

床とバルコニーの素材感を合わせて、視覚的に空間の広がりをもたせた提案。1階のリビングと同様、南面にはスリット窓を採用して。
2F W・I・C
【コストダウンIDEA】出入り口をオープンにして扉のコストをカット

寝室内に設けたウォークインクローゼット。「扉がなくても、通気性がよく、出し入れもしやすくて使い勝手がいいですよ。気になるようになったらカーテンをつけようと思います」
1F トイレ・洗面室・浴室

【トイレ】階段下のスペースを利用して配置したトイレ。「LIXIL」のタンクレストイレ「サティス」を採用しました。
【洗面室】憧れていたスクエアタイプのベッセルシンク。「朝、ここでシャンプーもするので、もう少し深さがあるほうがよかったかな」
【浴室】システムバスは「LIXIL」。窓を設けて採光と通風を確保しました。「じめじめせず、すぐに乾いて気持ちいいです。お掃除もラク!」
外観
「スクエアな外観にこだわりました!」
塀とルーバーでプライバシーを確保して、室内に光と風をたっぷりとり込んで。

左官仕上げの外壁。やぼったくならない程度にコテ跡をつけて味わいを添えました。シマトネリコの緑が白壁に映えます。

塀と建物の間のインナーテラスが効果的に作用。道路からの視線を遮りながら、室内に光と風をとり込み、開放感をもたらしています。
1F 玄関
【コストダウンIDEA】造作の靴箱はオープン棚が基本のシンプルなデザインに。土間玄関はシンプルなモルタル仕上げに。

自転車やベビーカーが置けるように広さを確保。造りつけの靴箱は荷物置きにもなるように、あえて低めにしました。
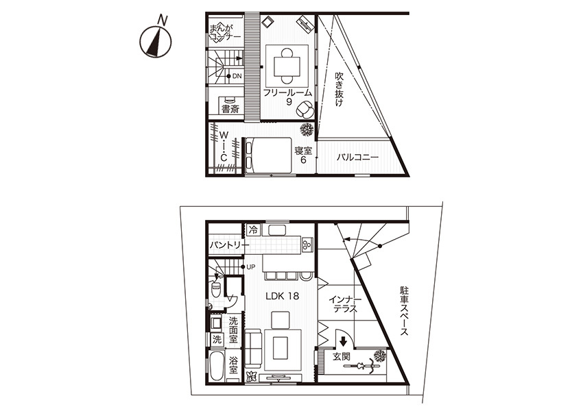
DATA. Iさん宅(埼玉県)の間取り図

設計士プロフィール

ソラマド埼玉(オガワホーム) 鈴木 剛さん
雑談からお二人が「家族が自然とLDKに集まる暮らし」「開放的なLDK」「どこにいても家族の気配を感じたい」ということを求めているのがわかったので、空間を仕切らず、塀で囲いながら屋外空間を室内にとり込んで広がりを出すプランを提案しました。 「どう暮らしたいか」がわかると、見合った土地も見えてくるので、一般的に条件がいいとされている土地でなくてもOKなのです。東向きの土地にした分、費用が抑えられ、予算内におさめることができました。
ご家庭プロフィール
Iさんをはじめ、“卒業生”の施主ファミリーから「兄貴のような存在」と慕われる、人柄抜群の鈴木さん。施主の望むライフスタイルを的確に見抜く力に定評あり。
| 家族構成 |
夫婦 |
| 敷地面積 |
120.11㎡(36.33坪) |
| 建築面積 |
52.26㎡(15.81坪) |
| 延べ床面積 |
96.97㎡(29.33坪) 1F52.26㎡+2F44.71㎡ |
| 構造・工法 |
木造 2階建て(軸組み工法) |
| 工期 |
2012年5月~8月 |
| 本体工事費 |
約2150万円 |
| 3.3㎡単価 |
約73万円 |
| 設計 |
アトリエSORA(soramado) TEL:03-6435-4517 |
| 施工 |
オガワホーム㈱ TEL:048-927-7775 |
★おしゃれな注文住宅を建てたい方はこちら
★注文住宅のカタログを取り寄せたい方はこちら
あわせて読みたい記事はこちら
2016.11.15【Oさん宅(神奈川県 )】ご夫妻と5歳の長女、2歳の長男の4人家族。以前は都内の賃貸アパートに住んでいたものの、長男が生まれて手狭になったため、家づくりを決意。「子どもたちも今は、家じゅうをのびのび走り回っています」豊かな...続きを見る
コメント
全て既読にする
コメントがあるとここに表示されます