牧田さん宅(静岡県)
静岡で生まれ育ち、幼い頃から自然が大好きだった幸二さん。川辺でキャンプをしたり、家でパンやピザを焼いたりと、アウトドアと料理に親しんできました。お子さんを授かり、賃貸マンションが手狭になってきたため、ご両親から茶畑をゆずり受けて一角に家を建てることに。「エムエースタイル建築計画」にオーダーしたのは、“室内にいるのに外、外なのに室内にいる感覚になれる家”でした。
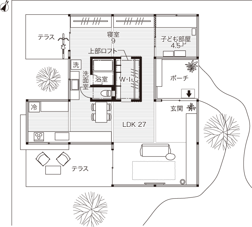
公園の“あずまや”のようにシンプルな建物をイメージしてつくられた牧田さん宅。基礎部分のコンクリートを腰高に立ち上げ、上部は窓にして武骨な味わいと自然の開放感を得られるようにしています。大きな軒を備えたくつろぎのテラスとキッチンを向かい合わせに配置して一体化。キッチンの窓から、できたての料理や冷たいビールをすぐに手渡せるため、外での食事を一段と楽しめるように。玄関、リビング、テラスを同じコンクリートの土間にして、外と中の境目をつけずに過ごせるようにも工夫。さらに寝室横には洗濯物が干せるテラスを、玄関前にはちょっと立ち寄っておしゃべりできるベンチつきのポーチを配置。家じゅうでアウトドアを満喫できる仕掛けを施しています。将来はカフェを営む構想もある牧田さん。工夫がいっぱいの住まいを使いこなし、ますます暮らしを充実させていくことでしょう。
テラス


キッチンの向かいにテラスを設置。リビング側に引き戸を設け、気軽に行き来できるように。(上)窓辺のカウンターに鍋や食器を並べて。「お店で買ってきたものも、ここで食べています」と幸二さん。会社の同僚や友人とバーベキューをすることもしばしば。(下)軒があるため、雨の日でも安心です。
LDK

自然をたっぷり感じられるLDK。明るいので早起きになったそう。合板の天井、コンクリートの床、腰壁と構造をそのまま見せて、素朴な味わいにしています。
玄関とリビングはコンクリートの土間にしてアウトドア感を

コンクリートにして外と一体感を出した玄関とリビングの床。土足でそのままテラスに抜けることもできます。キッチンと同じ扉つき収納を採用し、シンプルに見せて。棚上には吟味したお気に入りの生活雑貨を並べています。
キッチン
のびのび動けて使いやすい横幅のあるカフェ風キッチン

料理好きの幸二さん。キッチンは、調理中に食材やフライパンなどを余裕で置けるよう幅広に設計。シンクも使い勝手を考え、深く広めのものを選びました。理世ちゃんが自然な感覚を身につけ、“火育”にもなるようガスコンロに。


パントリーがない分、キッチンの収納に工夫。上部にぐるりとオープン棚、キャビネットを造作し、雑多な印象を与えずに生活用品をしまえるようにしました。(上)家全体になじむよう、扉は壁や天井と同じ合板を使用。(下)キッチン背面。コンクリートの天板が木の素材感を引き立たせます
サニタリー


キッチンと寝室の間の通路に水回りをまとめて配置。トイレのドアにも合板を使い、壁の一部のようにすっきり見せています。洗面台に立ったときの景色を考えて、窓の向かいに植栽を。鏡を兼ねた可動式の扉をとりつけ、身支度のとき必要に応じて使えるようにしました。
浴室

ガラスのドアで開放感を出しつつ、“シンプル イズ ベスト”の考えで無駄を省いた、簡素な浴室。コンクリートは手入れがしやすい点も◎。
トイレ

背面の壁にトイレットペーパーの収納場所をつくったユニークなトイレ。全面を合板にしたことで、ぬくもりが感じられる空間に。
子ども部屋

理世ちゃんの部屋には引き戸を配し、個室になるように。大きな家具は置かず、コンクリートのカウンターを勉強机にしています。
隣家の垣根を借景にして子ども部屋に緑のさわやかさを

すぐ隣に住宅が立っているものの、垣根で視線が遮られるためLDKと同様に大きな窓を設置。机に向かっている間じゅう、緑のみずみずしさを感じられます。
寝室&テラス

寝室横のテラスは洗濯物や布団を干す格好のスペース。よりプライベートな感覚で使っています。

向かいの茶畑がのどかな雰囲気をかもし出す、テラスつきの寝室。天井のへこみ部分を活用してアイアンのパーツを配し、“見せる収納”を楽しめるように。

直線で構成された美しい外観。窓に入った筋かいがアクセントに。腰高まであるコンクリートの外壁は、家の基礎部分を立ち上げたもの。余計な装飾はせず、“素”の状態を大切にしています。
玄関
軒先で少し会話を楽しみたいときに大活躍するベンチつきポーチ

ポーチは、ご両親やご近所さんが立ち寄ったときの憩いの場。「室内に上がらずとも少しおしゃべりしたいときによく使っています」と知里さん。
プロフィール
地元の会社に勤める幸二さんと奥さまの知里さん、3歳になる理世(りせ)ちゃんの3人家族。夫婦ともにインテリア好きで、気になるお店を見つけては見て回ることが多いそう。

DATA
| 家族構成 |
夫婦+子ども1人 |
| 敷地面積 |
297.53㎡(90.00坪) |
| 建築面積 |
95.68㎡(28.94坪) |
| 延べ床面積 |
81.98㎡(24.80坪) |
| 構造・工法 |
木造平屋(軸組み工法) |
| 工期 |
2015年2月~7月 |
| 設計 |
エムエースタイル建築計画 ☎0548-23-0970 |
| 施工 |
桑髙建設 ☎0547-38-1244 |
設計のポイント
エムエースタイル建築計画
川本敦史さん、川本まゆみさん
敦史さんは1977年、まゆみさんは75年生まれ。ともに静岡県出身。2004年、現事務所を共同設立。住み手と建物、環境が調和する、長く暮らせる家を提案する。
ご両親からゆずり受けた茶畑のよさを残しながら、庭も住空間ととらえて室内外を自由に行き来し、アウトドアや料理を楽しめる家を望んでいた牧田さん。私たちは公園の“あずまや”をイメージし、「架構と開口」という簡素な形式で空間をつくることにしました。人の意識や活動によって多様な場をつくり出しながら、建物のボリュームや構造、素材感を考えたことで、お互いの領域性を保ち、周辺になじむ住まいにしています。
★おしゃれな注文住宅を建てたい方はこちら
★注文住宅のカタログを取り寄せたい方はこちら
おすすめ記事
2016.01.17半戸外の心地よさが人気の "土間スペース" 暮らしや趣味の 幅が広がる おすすめスペース屋内と屋外をゆるやかにつなぐ半戸外スペースを「中間領域」といいます。屋根つきデッキや縁側のほか、家の中にある土間や...続きを見る
コメント
全て既読にする
コメントがあるとここに表示されます