【加藤さん宅(東京都)本体工事費 約 2200万円 建築面積 約 16坪】
以前はマンションのルーフバルコニーでバーベキューを楽しんでいたという加藤さん。家を建てる際も、アウトドア空間は必須だったとか。依頼したのは、テレビや雑誌で目にした明るい家が印象的だった「ノアノア空間工房」の大塚泰子さんです。「建ぺい率の関係で1階にテラスを設けることにしましたが、敷地が東西に長く、南側には隣家が迫っているので、開放的にするために、いくつかプランを練りました」と大塚さん。 その結果、南側に配置したテラスをハイウォールで囲んで視線をカットし、LDと大きな窓でつないで部屋の“細長さ”を感じさせないプランに。テラスは耐久性の高いタイル敷きにしました。ところが、最初に出た見積もりは、予算を500万円近くもオーバー! そこで、タイル敷きのテラスやフルオープンサッシといった、こだわりの部分はそのままに、削れるところは少しずつコストダウン。あとから仕切れる部分は壁や扉を省略し、設備機器は施主支給に……など、プランをくまなく検討した結果、2200万円まで抑えることができました。「部屋からテラスを眺めると、本当に気持ちがよくて」と奥さま。友人家族と20人ほどでパーティを楽しんだり、デッキチェアを出して流れる雲を眺めたり。あきらめずに挑戦した家づくりが、豊かな時間をもたらしてくれました。
予算内で実現! 加藤さん宅の “心地よさ”のポイント
- 室内と一体化する “ダイニングテラス” を実現
- コストダウンのための仕切りの少なさが開放的で快適
- 適材適所の収納で人を呼ぶのが苦にならない家に
1F キッチン
【コストダウンIDEA】工務店経由で 安く入手できた 御影石を天板に採用。ガスコンロ、 オーブン、食洗機は 施主支給に。面材は安価でも 木目の質感がいい ポリ合板製。

【写真左】ダイニング側から手伝いやすいフラットなカウンター。背面側の壁は最後まで悩んで、コストはかかってもおしゃれなタイル貼りに。
【写真右】鍵状の変形地を生かしたミニパントリー。扉なしでもゴミ箱などがLD側から見えなくて便利!
1F DK

窓をフルオープンにすれば、大人数で集えます。テラスのテーブルは伸長式。外は子どもたち、室内は大人などと振り分けることも。
1F LDK

「玄関を入ってここまで案内すると、みなさん、開放的でびっくりするんですよ」と奥さま。床は無垢のナラ材で、床暖房も採用。天井に施主支給の「BOSE」のスピーカーを埋め込み、カフェ気分を満喫。コストは思ったほどかからなかったとか。
家のあちらこちらに 暮らしやすい 工夫がいっぱい
1F テラス

【写真左】光や風、緑を満喫できるティータイム。シンボルツリーにヤマボウシを植えました。
【写真右】ご主人の提案で、階段下の収納の半分をテラス側から使えるつくりに。椅子や道具類をラクに出せるので、大勢の友人を招くバーベキューなども、おっくうになりません。
1F 洗濯機スペース

サニタリーと階段の間に洗濯機スペースを。2階に物干し用のバルコニーがあるので、洗濯動線もスムーズです。
1F サニタリー

トイレも一体にして広々と。ガラスの仕切り壁が開放感を損ないません。浴室の床はヒヤリとしない「LIXIL」の「サーモタイル」。
階段

【写真左】踊り場には、天井まである窓を設置。光を導き入れるとともに、テラスの緑や月が望め、心にうるおいを与えてくれる場所に。
【写真右】階段の壁に設けたニッチに、写真や思い出のおもちゃをディスプレイ。複数設けるとコストがかかるので、1カ所だけにしぼりました。
1F 玄関ホール

手前の畳スペースは今は兄妹の勉強コーナー。玄関との間仕切りはいずれ設ける予定です。左手の壁面収納にはルーターやファクスなどもおさめて。
1F 納戸
【コストダウンIDEA】出入り口の扉はなしにしてカーテンに

靴のまま入れる納戸には、アウトドア用品などを収納。ドアよりカーテンのほうが子どもも出入りしやすく、かえって便利とか。
2F ワークスペース
【コストダウンIDEA】ペイント仕上げの 1階に対して 2階は安価なクロスに

必ず欲しかったワークスペースは、吹き抜けに面した階段ホールに。ご主人がパソコンを使っていても、家族の気配が感じられます。
2F 階段ホール

階段の吹き抜けに面した子ども部屋の壁に室内窓を。ワークスペースや階下にいる家族と会話ができ、夏は心地よい風がとり込めます。
2F 子供部屋
【コストダウンIDEA】ロフトは あとから設置予定。 今は軸組みだけに。間仕切り壁をなくして初期費用を節約。

将来、仕切ることを想定して窓などを配置。現在はトイレが部屋内にあるレイアウトですが、子どもが小さいうちはかえって便利とか。
外観
【コストダウンIDEA】建物も屋根の形も極力シンプルに。外構工事は最小限に。 自分たちで芝植えや塀のペイントにトライ。玄関ドアは一枚板風の既製品を採用。

ガラスブロックが印象的な外観。外壁の仕上げは、正面は吹きつけ塗装ですが、見えない部分は塗装ずみのサイディングでコストダウン。
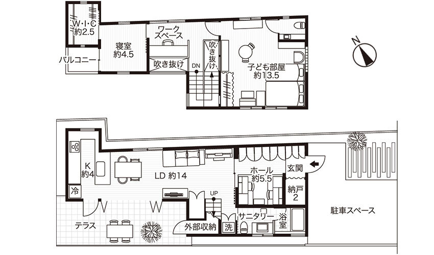
DATA. 加藤さん宅(東京都)

設計のPoint
ノアノア空間工房 大塚 泰子さん
敷地が東西に細長く、南側には隣家が迫っているので、リビングとテラスの位置と広さを綿密に計算しました。LDと一体化する“ダイニングテラス”を南に設けることで、細長さを感じさせない、明るく開放的なスペースに。ご夫妻は、自分たちに必要なもの、不要なものがはっきりしていたので、快適さを損なうことなくコストダウンに成功。ホームパーティを開くことが多いライフスタイルにぴったりの、暮らしを楽しめる家になりました。
賢く家を建てるために… 「コストダウンの心得」
暮らしは必ず変化するので、最初から完璧をめざさず、あとからつくれるものはあとで、と割りきるのが◎。間仕切りを減らすことも有効で、お子さんが小さいうちは広々とした空間で子育てを楽しめる利点も。ただし、こだわり部分にはコストをかけることも必要です。
【Profile】
1971年生まれ。日本大学大学院生産工学部建築工学修士課程修了。㈱アーツ&クラフツ建築研究所入社。2003年、㈲ノアノア空間工房設立。「amicafe」で釧路市景観賞奨励賞受賞。
Profile.

ご夫妻、小学4年生の長男、1年生の長女の4人家族。以前のマンションが手狭になり、家づくりを決意。「仕切りの少ないわが家は格好の遊び場で、子どものお友達にも大人気なんですよ(笑)」
| 家族構成 |
夫婦+子ども2人 |
| 敷地面積 |
121.60㎡(36.78坪) |
| 建築面積 |
53.96㎡(16.32坪) |
| 延べ床面積 |
101.58㎡(30.73坪) 1F 53.96㎡ + 2F 47.62㎡ |
| 構造・工法 |
木造2階建て(軸組み工法) |
| 工期 |
2010年6月〜12月 |
| 本体工事費 |
約2200万円 |
| 3.3㎡単価 |
約72万円 |
| 設計 |
㈲ノアノア空間工房(大塚泰子) TEL:03-5969-8800 |
| 施工 |
吉野建設 TEL:042-485-1514 |
★おしゃれな注文住宅を建てたい方はこちら
★注文住宅のカタログを取り寄せたい方はこちら
おすすめ記事
2018.08.23こだわりの家を建てたいけれど、予算があまりなくて。と理想の家づくりをあきらめている人はいませんか?大丈夫、建てられます!!建主の思いと設計者の知恵とアイディアがたっぷり詰まった素敵な事例を紹介します。続きを見る
2016.12.14【Yさん宅(神奈川県)】Yさんが家づくりをしたのは、奥さまが生まれ育った湘南エリア。海に近く、自然の影響を受けやすい環境をどう生かすのか──この土地をよく知る細田さんが手腕を発揮し、テラスにつながるリビング&ダイニ...続きを見る
2016.10.11【永田さん宅(熊本県)】 ご夫妻と7歳のシオン君、4歳のリノンちゃんの4人家族。夏はマリンスポーツ、冬はスノーボードとアウトドアレジャー好きのファミリーらしく、「家でも屋外の心地よさを感じられるのは素敵なことですね!」玄関...続きを見る
コメント
全て既読にする
コメントがあるとここに表示されます