【Yさん宅(神奈川県)】
Yさんが家づくりをしたのは、奥さまが生まれ育った湘南エリア。海に近く、自然の影響を受けやすい環境をどう生かすのか──この土地をよく知る細田さんが手腕を発揮し、テラスにつながるリビング&ダイニングを計画しました。パブリックスペースはまるごとパーティ会場としても活躍。おおらかな暮らしぶりが魅力の家です。
『私が設計しました』
ダイニングプラス建築設計事務所
細田 淳之介さん
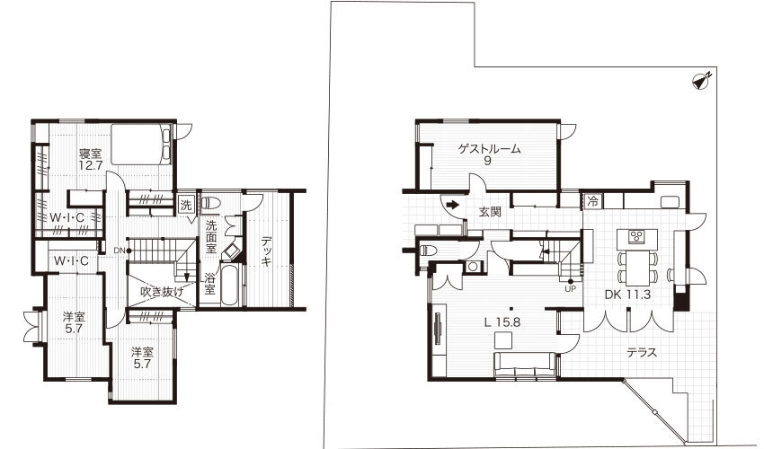
1F テラス

テラスをはさんでリビングとDKをL字形に配置。サッシをオープンにすると、2つのスペースとテラスがひとつづきに。
外観

外壁はモルタルにガルバリウム鋼板を組み合わせたツートンカラー。敷地を囲む塀も素材を揃え、外観に統一感を生み出しています。
1F 玄関

【写真左】ベンチは玄関ホールにも。リビングの入り口の手前に小さなシンクがあり、帰宅後の手洗いに活躍しています。右奥はトイレ。
【写真右】玄関ポーチには、水に強く手入れのいらないイペ材のベンチが。「荷物を置いたり、子どもを座らせたりするのに重宝です」
1F DK

床をテラスや玄関と同じタイルで仕上げ、室内と外のつながり感を高めました。アイランドカウンターはパーティにも大活躍
1F キッチン

【写真左】キッチンに立つと、目の前のテラスから戸外の開放感が伝わってきます。
【写真右】キッチンは「ライムス」にオーダー。左右のカウンターの高さを変えるなど、こまかな工夫を凝らしました。面材はウォールナット。
1F 廊下

玄関ホールとキッチンは直結。買い物から帰ってきたとき、LDを回り込まずにすむのでラクだそう。廊下の左右には大容量の収納が。
1F ワークスペース

「リビングは落ち着ける雰囲気にしたいから」と、パソコンはダイニングに。将来は、お子さんの宿題を見るスペースにもなる予定。
1F リビング
オープンでありながら落ち着けるリビング空間

東側には大開口のテラスドアが。一方で南側の窓は抑えめにして、くつろぎ感を高めつつ強風や塩害に備えています。天井の米杉材も落ち着いた雰囲気づくりに貢献。

リビングとダイニングの間を階段ホールでエリア分け。床に段差をつけたり、床材を変えたりしたことで、よりはっきりとゾーニングでき、行き来するたびに気分が変わります。
2F 寝室

ベッドだけが置かれたシンプルな寝室。室内にはクローゼットが3つあり、「お互い衣装持ち」という夫妻の衣類をすっきりと収納しています。
階段ホール

ちょうど家の中心にあたる、おおらかな吹き抜けの階段ホール。トップライトから光が降り注ぐ、心地のいい空間です。「娘も私もここを見上げるのが大好き! よく床に寝ころんで、日ざしの移り変わりを眺めています」
2F ホール

吹き抜けの天井もリビングと同じ米杉材。白い壁とのコントラストがやさしい印象を与えます。手すりに張った落下防止のネットは、お子さんが成長したらはずす予定。
2F 洗面室&浴室

【写真左】1階をパブリック、2階をプライベート空間と位置づけて、水回りも寝室と同じ2階にプラン。洗面台を斜めに配置したことで、スペースにゆとりが生まれました。
【写真右】トイレも洗面室内にとり込んで、広々と。

浴槽に入ったときの目の高さに窓をつけ、外を眺めながら入浴。フェンスで囲んだので、周囲からの視線は気になりません。
DATA. Yさん宅 (神奈川県)

Profile.
Yさん
Mさん、Yさんご夫妻と、1才8カ月のRちゃんの3人家族。夫婦共通のダイビングのほか、ご主人は水泳、奥さまはダンスと、アクティブな趣味を満喫しているそうです。
| 家族構成 |
夫婦+子ども1人 |
| 敷地面積 |
244.82㎡(74.06坪) |
| 建築面積 |
77.84㎡(23.55坪) |
| 延べ床面積 |
138.50㎡(41.90坪) 1F75.56㎡+2F62.94㎡ |
| 構造・工法 |
木造2階建て(軸組み工法) |
| 工期 |
2010年11月~2011年5月 |
| 施工 |
Zen建築事務所 TEL: 0466-88-7074 |
【インタビュー】私たちが「ダイニングプラス建築設計事務所」を選んだわけ

当時の資料を見ながら。「初期プランからほぼこの形でしたね」「希望をほとんど入れてくださったので、こまかい修正だけでした」
お互いの考えを率直に伝え合いながらプランニング
ーー細田さんを選ばれたきっかけは?
Yさん この敷地のすぐ裏に、兄夫婦がひと足先に細田さんの設計で家を建てていたんです。インテリアの雰囲気も素敵だし、家族の関係性もよくご存じだと思ったので、同じかたにお願いしようと迷わず決めました。
細田さん 隣家が他人ならプライバシーだけ気にすればいいのですが、家族の場合はプライバシーとつながり感のバランスが必要。やっぱり「つかず離れず」がベストですよね。視線はぶつからないけれど行き来はしやすい、そんなプランを考えました。
Yさん 窓の配置や敷地の仕切り方に工夫してくださって。キッチンの窓から兄の家が見えるのですが、木々の緑や枕木のフェンス越しにやんわりと見える感じ。甥や姪が庭で遊んでいるとひと目でわかるので、うちの子も一緒に遊んでもらったりしています。
ーー細田さんに会ったときの印象は?
Yさん とにかくやさしくて話しやすいかた。それだけにたくさんリクエストを出してしまいましたが(笑)。でも、一方ではご自身の考えもきちんと話してくださり、お互いのこだわりを出し合いながら進められました。
細田さん ご夫婦二人とも前向きに参加してくださったので、打ち合わせはとてもスムーズでした。設計者にとって大切なのは、住むかたが何を求めているかをくみとること。それさえわかれば、プランやデザインはあとからついてくるんですよ。
デザインと居住性、譲れない 2つの条件をどちらも実現
ーー具体的にリクエストしたことは?
Yさん まっ先にお願いしたのはテラス。友達とバーベキューをしたり、ダイビングの道具を洗ったりできる場所がほしくて。プランを提案されたときはリビングにもダイニングにもテラスがつながっていて、理想がそのまま形になった!とびっくり。朝ごはんのときなどはテラス越しに朝日が入ってきて、とにかく気持ちがいいんですよ。
細田さん このあたりは海風が南から吹くので、南向きにテラスや掃き出し窓をつくってしまうと台風のときに大変なんです。そこでテラスは東側にして、そこを中心にリビングとダイニングを配置しました。室内から戸外へ自然につながるようにしたので、無理なく出入りできると思いますよ。
Yさん ご想像どおり、家の中から外まで使ってバーベキューパーティをしています。LDKにもテラスにも居場所がたくさんあるので、お客さまも気兼ねなくくつろげるみたいですね。
ーー家づくりを経験してみて、最も印象に残ったことは?
Yさん じつは細田さんにお会いするまで、デザインと住み心地は両立できないと思い込んでいたんです。見た目のカッコいい家は住みにくそうだし、住み心地のいい家はやぼったくなりそう……というように。ところが、私たちの求めていたシンプルであたたかみのある雰囲気と、日常の暮らしやすさがどちらも手に入りました。それが驚きでもあり、この家を建てて得たいちばんの収穫だったと思います。
次ページにて
「ダイニングプラス建築設計事務所」を詳しく紹介!
ダイニングプラス建築設計事務所
細田 淳之介さん
『話を聞くのは 得意分野。何でも 話してください!』
湘南を拠点にシンプルで心地よい住まいづくりをつづける細田淳之介さん。「話下手なので……」としきりにおっしゃるシャイなお人柄ながらも、自然と仲よく暮らすことの大切さ、街並みとの調和など、住宅設計に対する思いを真摯に語ってくださいました。
事務所名の由来は?の質問には、「住まいで大切なのはやっぱりダイニング。そこを中心に暮らし心地がよくなる“プラスアルファ”の提案ができれば、という思いを込めました」
| 生年月日 |
1965年8月24日 |
| 出身地 |
神奈川県横浜市 |
経歴 (卒業校、勤務先など) |
東京工業大学付属専攻科建築学科卒業後、2社の設計施工会社勤務を経て、2007年に現事務所を設立。 |
| 趣味 |
サーフィン、落とし込み黒鯛釣り、自転車。 |
| 好きな本 |
自分の年代に近い作家を中心にジャンルは問わず。同世代の作者の考え方にふれることで自分の状況を確かめられる。 |
| 好きな音楽 |
Smooth Jazz |
| 好きな街 |
「視線が抜ける」感じのある街。春先の緑を楽しませてくれる街。 |
| 自分について |
とにかく「設計」という仕事が好きです。常々感じているのは、「家を建てたい」と声をかけていただくときは、お客さまにとって前向きで夢多き時間だということ。そのタイミングで仕事として携われることがとても幸せです。話術や人なつこさなどは、正直なところ得意分野ではありませんが、何がお客さまにとっての「いい家」かをまじめに考える自信はあります。 |
【写真左】1階にある「木工倶楽部」の作業場では、仕事仲間でもある職人さんたちと意見交換することも。
【写真右】細田さんの事務所は、じつは工務店の2階部分。他業種のかたとシェアしています。
施工現場でざっとラフスケッチを描き、それを見せながら建主さんや大工さんに説明することも。
【インタビュー】自然との距離感を重視した開放的なプランが身上
ーー湘南でお仕事を始められた経緯は?
細田さん 20年ほど前に藤沢の設計施工会社に入ったのがきっかけです。当時は横浜に住んでいたのですが、海辺の街の魅力にひかれて、5年くらいして移り住みました。独立後もずっと湘南がベース。今は片道8㎞の道のりを自転車で通勤しています。車移動と違って、街並みや建物を観察できたり、季節感を肌で感じられるのが気に入っています。
ーーここを拠点にしているメリットは?
細田さん 神奈川に限らず、東京や千葉などでも仕事をいただいていますが、どの土地に行っても気候風土を判断する能力が身につきました。風がどちらから吹くのか、台風の被害は出やすいか、寒暖の差は激しいか……特に海沿いの土地では、海風の吹いてくる方向を考えて開口部を設けたり、塩害に強い外壁材を選んだりしなければなりません。そうした自然のルールに従いつつ、効果的に光や風をとり込むことが、心地よい家づくりには不可欠だと思っています。
ーー細田さんの手がけられる家は自然との一体感が魅力ですが、プランニングにはそんな秘密があったのですね。
細田さん できるだけ設備機器に頼らずに暮らせる家をつくりたいんです。風通しがいいから真夏以外はエアコンがいらないとか、窓から十分に光が入るから昼間は照明がいらないとか……。何でもないことのようですが、僕がいちばん大切にしているのは、この“自然に逆らうことなく、自然のメリットを生かす”こと。そのヒントとして役立っているのが、日本の古い建築です。茶室などが公開されるとよく見に行きますが、光のとり入れ方や木の使い方など、どこをとっても日本の風土に根ざした素晴らしい知恵が詰まっていて、とても参考になります。
ーー細田さんのデザインも、日本人の感性に合うシンプルなものですね。
細田さん 僕はどちらかというと、デザインよりも“たたずまい”を重視しています。どうしたらそのご家族やその土地の街並みにしっくりくるたたずまいを表現できるか……。それでなるべくニュートラルに、デザインをつくり込みすぎないように心がけています。住まいは何十年と使うものですから、その間に暮らし方も、ものの見方も変わってくるはず。一時の設計者のエゴで「作品」みたいなものをつくってしまうと、どんどん住む人の価値観とズレていってしまいますよね。「○○風」「○○スタイル」と打ち出すことは、仕事としてはやりやすいかもしれませんが、建築はもっと長いスパンでとらえるべきだと思っています。
ーー今後はどんな家づくりをめざしていきたいですか?
細田さん いましめではありませんが、何十軒の家を手がけても、それはたった一個人の経験値でしかないんですよね。住まいにはまずそこに暮らす人がいて、そのかたの依頼があってはじめて自分が手を動かせる。それから建ててくれる大工さんや職人さんがいて、植木屋さんや外まわりの設計者さん、キッチンメーカーさんなどなど、いろいろな人の経験に基づくいろいろな要素が合わさって、やっと一軒の家ができるわけです。この仕事をすればするほど、そのたくさんの要素のひとつひとつの大切さがわかってきました。ですからおごることなく、謙虚さをもって家づくりにかかわりたい。それから、木造にはずっとこだわっていきたいですね。木は常に生きているので、建物として構成する難しさがあり、やみくもに使うと必ず裏目に出ます。木の性質をもっと知って、どこにどう使えばデザイン面や性能面に効果があるか、維持がしやすいかなどを見きわめていきたいと思っています。
実績紹介
Mさん宅(千葉県)

素材や設備選びに工夫を凝らしたことで、2000万円以内という予算もクリア!スキップフロアを設け、各スペースの独立性を高めました。

生活にメリハリをつけたいから」と、リビングとダイニングを分離。さらに床材を変え、各スペースの独立性を高めました。リビングにはワイドなバルコニーを接続。家の内外が自然につながり、室内からも開放感を味わえます。
| 家族構成 |
夫婦+子ども1人 |
| 敷地面積 |
167.57㎡(50.69坪) |
| 建築面積 |
59.20㎡(17.91坪) |
| 延べ床面積 |
110.34㎡(33.38坪) 1F 56.93㎡ + 2F 53.41㎡ |
| 構造・工法 |
木造2階建て(2×4工法) |
| 工期 |
2007年11月~2008年4月 |
Nさん宅(神奈川県)
趣味のサーフィンを楽しむため、海のそばに土地を求めて家づくりをしたNさん。光や風をとり込みやすく、天井も高くとれる2階にLDKを配しました。
しっくいの壁にパイン材の床、杉材の天井と、インテリアには念願だった自然素材をたっぷりと採用。「しっくいは梅雨どきでもカラッとして快適。光が当たったときのやわらかな表情もお気に入りです」
| 家族構成 |
夫婦+子ども1人 |
| 敷地面積 |
121.58㎡(36.78坪) |
| 建築面積 |
54.74㎡(16.56坪) |
| 延べ床面積 |
96.81㎡(29.29坪) 1F 46.93㎡ + 2F 49.88㎡ |
| 構造・工法 |
木造2階建て(2×4工法) |
| 工期 |
2007年11月~2008年5月 |
会社情報
| 事務所名 |
ダイニングプラス建築設計事務所 |
| 住所 |
神奈川県藤沢市石川5-9-8-2F |
| TEL |
0466-47-6820 |
| FAX |
0466-47-6820 |
| E-MAIL |
nrd41468@nifty.com |
| 交通アクセス |
小田急江ノ島線湘南台駅から徒歩15分 |
| 営業時間 |
9:00~20:00 |
| 定休日 |
日曜 |
| スタッフ構成 |
二級建築士1名 |
| 相談料 |
無料 |
| 設計料 |
新築の場合、総工事費の10% |
|
最近3年間に手がけた個人住宅の数
2016 4月現在
|
1000万円台 8件 2000万円台 9件 3000万円台 4件 4000万円以上 1件 リフォーム 3件 |
★おしゃれな注文住宅を建てたい方はこちら
★注文住宅のカタログを取り寄せたい方はこちら
コメント
全て既読にする
コメントがあるとここに表示されます