【荒木さん宅(東京都)】
都内の閑静な住宅地に一戸建てを新築した荒木さん。条件のいい2階にLDKを配し、のびのびとしたデッキをつなげたプランを採用しました。デッキを高さのある壁で囲んだことで、周囲の家からの視線が気にならず、ゆったりとくつろげるプライベート空間が完成。おおらかな吹き抜けのリビングダイニングに、さらなる開放感を与えています。
グリーンを育てるのが大好きというお二人は、デッキを空中庭園として活用しているそう。「レモンやブルーベリー、さくらんぼなど、食べられる植物を中心に(笑)鉢植えしています。地植えより虫がつきにくく、日当たりに恵まれているおかげか、育ちもいいみたい」。緑に囲まれてお茶や外ごはんをするのも楽しみとか。都心とは思えないのんびりとした時間の流れが感じられます。
デッキに面してバス&サニタリーを設けたのも、このプランの特徴。「小さくてもいいから浴室に坪庭がほしいとリクエストし、水回りもデッキに接続しては?という案が出て。坪庭のために面積を割かなくてすむので省スペースですし、コストもカットできて一石二鳥。グリーンを眺めながらお風呂に入りたい!という望みがかないました」。浴室前のデッキは物干し場も兼ねているため、家事面でも大きなメリットが生まれたといいます。
明るく広々としたリビングダイニングのほかに、荒木さん宅にはロフトや和室、ご主人の趣味室、奥さまのユーティリティコーナーなど、それぞれ違う雰囲気をもったスペースが充実しています。「どれも小さな空間ですが、家の中にくつろげる場所がいくつもあるのがお気に入り。本を読んだりお酒を飲んだり、好きな場所で好きなときに、思い思いの過ごし方をしています」。開放的なパブリックスペースと、ほどよくこもれるプライベートスペース。この空間のバランスのよさが、住まいの心地よさを高めているよう。幅広い趣味をもつご夫妻のユニークな暮らしぶりも伝わってきます。
豊かなグリーンが室内にもゆとりを生んで

大きな掃き出し窓でデッキにつながるダイニング。窓ぎわにレイアウトしたテーブルで、外の緑とたっぷりの日ざしを楽しめます。家具や照明器具はシンプルな北欧モダンスタイルで統一。
目隠しの壁を立てて視線をカット

向かいの家から見えないように、浴室の前にも壁を設置。壁の内側は物干し場も兼ねています。「キッチンに置いた洗濯機からの動線が短く、洗濯物がまる見えにならないのもいいですね」
庭がわりのデッキでガーデニングを満喫!

撮影時は冬だったので緑が少ないですが、春夏には小さな植物園のようになるそう。左端にはメダカの泳ぐガラス鉢もあります。デッキの素材は水に強いセランガンバツ。
2F バス&サニタリー

デッキから光が入るバス&サニタリー。設備もデザインにこだわって、「Tフォルム」の脚つきバスタブ、「TOTO」の角型ボウルをセレクトしました。壁の丸タイルがレトロな印象。
2F ダイニング

オープンな対面キッチンの上はロフト。床をすのこ状にして、トップライトからの光を導いています。勾配天井は構造材をあらわにして仕上げ、シンプルモダンな中に和のエッセンスを。
2F リビング

LDの壁の幅いっぱいに造りつけた棚には、和のアンティークやご主人がつくった模型などのコレクションがずらり。ソファはH・J・ウェグナー デザインの「デイベッド」。
2F ユーティリティ

キッチンの奥に設けた家事コーナー。カウンターデスクはご主人がDIYでつくったもの。チェブラーシカグッズからサルノコシカケ(!)まで、奥さまの好きなものが集められています。
2F キッチン

広いカウンターキッチンは奥さまのこだわり。システムキッチンは「INAX」、背面収納は「イケア」。キッチンに洗濯機も設置して、家事をスムーズに。
1F トイレ

階段下のデッドスペースを有効活用してつくったトイレは、階段の形をそのままデザインに生かしました。床は廊下からそのまま続く大谷石。1階、2階ともトイレは「TOTO」をセレクト。
1F 和室

泊まり客のために用意した和室。目を引くカラーの壁紙で仕上げたことで、小さくても存在感のある空間になりました。「ここでお茶やお酒を飲むと、ちょっとした旅行気分を味わえます」
1F ギャラリー

外の玄関アプローチから1階の廊下まで、床に大谷石を採用。ここにも和の趣が感じられます。右側の壁面はすべて本棚。階段に腰かけて本を読んだりと、空間の雰囲気を満喫しているそう。
1F 寝室

「森の中で眠りにつくイメージで、寝室の内装はグリーンと決めていました」。壁はお二人でペイント。ベッドはツガ材を使って大工工事でつくったもの。下が収納になっています。
外観

日本の蔵をイメージしたという、切り妻屋根のシンプルな外観デザイン。黒いガルバリウムの外壁に、四角い出窓をシンボリックにあしらいました。デッキの下はカーポートとして活用。
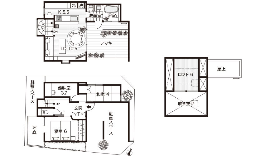
DATA. 荒木さん宅(東京都)の間取り図

設計士プロフィール
都市部でのアウトドア空間はプライバシーが重要なポイントに

設計工房/Arch-Planning Atelier 久保 宗一さん
住宅地でデッキや庭を計画する場合、近隣の視線を上手に遮ることが、くつろぎ感を大きく左右します。荒木さんのお宅では、デッキをルーバー状の壁で囲んで視線をカット。さらに浴室の前にも壁を立て、プライバシーを守りながら開放感を味わえるように配慮しました。デッキや庭などの外空間に視線が抜けると、室内にも広がりが感じられるもの。小さな家でもデッキをつくり、空が見える暮らしを楽しんでみては。
1962年茨城県生まれ。国士舘大学工学部建築学科卒業後、建築設計事務所勤務を経て、93年に現事務所を共同設立。狭小住宅やローコスト住宅の施工例が豊富。
ご家庭プロフィール
荒木さん夫妻
智さんと美香さんご夫妻。日本の古いものが好きというお二人は、休暇を使ってお城や蔵などを見て回っているそう。智さんは家電製品のデザイナーですが、模型製作の腕もプロ級です。
| 家族構成 |
夫婦 |
| 敷地面積 |
90.54㎡(27.39坪) |
| 建築面積 |
43.20㎡(13.07坪) |
| 延べ床面積 |
72.36㎡(21.89坪) 1F 36.18㎡ + 2F 36.18㎡ |
| 構造・工法 |
木造2階建て(軸組み工法) |
| 工期 |
2009年1月~5月 |
| 設計 |
設計工房/Arch-Planning Atelier(久保 宗一) TEL: 03-3440-2526 |
| 施工 |
匠恵塾 TEL: 03-5746-0463 |
★おしゃれな注文住宅を建てたい方はこちら
★注文住宅のカタログを取り寄せたい方はこちら
あわせて読みたい記事はこちら
2017.07.18 キリン食生活文化研究所では、プレミアムフライデーがスタートするにあたって、今年の2月に「自由時間の過ごし方」調査を行なったそう。(男女20~69歳、計19224名を対象)「Q最近、平日の自由時間にしたことは?」は「自宅で...続きを見る
2016.11.15【Oさん宅(神奈川県 )】ご夫妻と5歳の長女、2歳の長男の4人家族。以前は都内の賃貸アパートに住んでいたものの、長男が生まれて手狭になったため、家づくりを決意。「子どもたちも今は、家じゅうをのびのび走り回っています」豊かな...続きを見る
2016.10.13【 Iさん宅(神奈川県)】開放感あふれる気持ちのいいデッキを2階の東側にプランしたIさんのお宅。間仕切りのない広々としたワンルームに一歩入ると、視線は自然と大きな窓に向かい、深い緑とさわやかな空が見える風景に目を奪われます...続きを見る
コメント
全て既読にする
コメントがあるとここに表示されます