【阿知波さん宅 (三重県) 本体工事費 約1917万円 建築面積 約17坪】
窓を開け放すと、庭とひと続きに。スイスの「トーンヴェルク・ラウゼン」の高蓄熱型薪ストーブは、マットな黒が
空間の引き締め役に。
「気に入っていた古い和風の家でしたが、とにかく暗いし、土地自体も湿気が多くて……」。以前は中古の一軒家にお住まいだった阿知波さん夫妻。家への不満があふれ出した頃に偶然「リビングデザインビューロ」を知り、すぐに展示場に向かったそう。「自然素材で海外っぽいシンプルなデザイン。好みのテイストで、建てるならここしかない!」とひと目惚れ。新しい土地も提案してもらい、お子さんの幼稚園入園というタイミングで家づくりを決心しました。
阿知波さんの要望は、土間風のリビングと薪ストーブ。庭とダイレクトにつながる空間で、当時飼っていた愛犬や、お子さんがのびのびと遊ぶ姿を思い描いたそう。窓を開け放すと、気持ちのよい風が通り、ゆるやかに一体化する屋外と屋内。昔の縁側のように、訪問客はこの窓から声をかけ、息子さんのお友達もここから入ってくるそうです。「靴は、はいたままでも脱いでもOK。靴を脱ぐ場所も自由(笑)」というラフさも魅力。ソファに座ってテレビを見たり、段差に腰かけてダイニングにいる人と話したり、思い思いのスタイルでくつろげます。
冬は、ここに薪ストーブが加わって、あたたかな火を眺めながら過ごす楽しみも。そして、この自然に人が集まる阿知波さん宅のハッピーポイントは、コストダウンのポイントでもありました。
阿知波さんのHAPPY POINT !
- 外と中があいまいで常にウエルカム状態の土間風リビング
- ニッチに積み上げた薪もインテリアの一部。存在感ある薪ストーブ
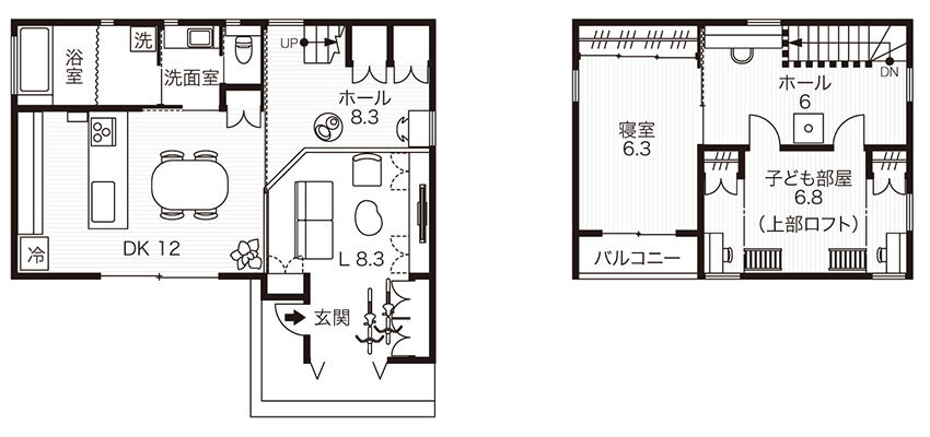
1F リビング

1段上がってDKに。ソファは「ウェグナー」デザイン、テーブルとチェアはデンマークのヴィンテージ。
【コストダウンIDEA】2階ホールのスギ材の床板がそのままリビングの天井に

【写真左】モルタルの床で、土間のようなリビング。「ミニカーがよく走るし、雨の日にも遊べるので、息子たちも大好きなスペースです」
【写真右】部分的に天井板を張らず、梁と2階の床板をアクセントにしつつ高低差で広がりを演出。
1F 玄関ホール

「リビングデザインビューロ」オリジナルのレッドシダー材のドア。青い布製の郵便受けに青いフック、ビタミンカラーのカーテンなど明るい色合わせが東欧風です。
1F DK
コンパクトな空間とシンプルな間取りで家族間のコミュニケーションも家事動線もスムーズ
「じつは、意図したコストダウンではないんです(笑)」。念願の土間風リビングをはじめ、同じくモルタルで仕上げた浴室などの水回りとポーチ。壁面や天井、収納扉に使った、明るい色合いのシナ合板。シンプルな造作キッチンや洗面台。そして、廊下をなくした間取りと、凹凸のないすっきりとしたデザイン。阿知波さんの好きなテイストが、そのままコストダウンにつながり、無理なく予算内におさまったといいます。
手を動かすことが好きなご主人は、ガス管を利用して薪小屋をDIY。庭も、これからご夫妻で好きなように仕上げていく予定で、このあたりもコストダウンに役立っているのかもしれません。「庭も家と同じくナチュラルにしたい。木陰ができるような、大きな木を一本育てたいです」

シンプルな空間に60年代のデンマーク家具が似合います。無垢スギ材の床は、「夏はサラッとして冬はあたたかで、靴下もいりません」。

リビングとDKの間には大きな引き戸が。閉めきると、冷暖房効率がよくなる以外に、間仕切り壁風になって雰囲気を変えることもできます。
1F キッチン

調理も配膳もしやすい、大きな作業台のオリジナルキッチン。マガジンラックには絵になる雑誌をディスプレイ。
【コストダウンIDEA】システムキッチンではなく 設計・施工会社の工房に オリジナルをオーダー

熱いものも直置きできるタイルトップ。「リビングや庭まで見渡せるので、子どもを見守りながら作業できます」
【コストダウンIDEA】扉や引き出しを なくして 家事の手間もカット

【写真左】レンジなどの家電はバックカウンターに配置。床下収納も設けたので、収納は問題なし。
【写真右】LDから見えないシンク下はオープンなつくり。スチールラックを棚がわりにしています。「必要なものがすぐとり出せて便利」

引き出しは造作せず、かわりにかごを利用。ストック食材や食器を収納しています。
1F ホール
家族とともに年を重ね味わい深くなっていく自然素材の家
【コストダウンIDEA】天井や壁面は 材質を変えずに シナ合板で統一

天井、壁面だけでなく、階段下に設置した収納スペースの扉もすべてシナ合板でそろえ、壁のようにすっきりと見せています。

家族で使えるホール。階段の明かりとりも担うスギ材の柱の脇に、ご主人のPCコーナーを設けて。

「薪ストーブの煙突のおかげで2階まであたたかく、ここに干すと洗濯物もよく乾きます」
2F 子ども部屋

勾配天井とロフトで広さを確保。スギとシナ合板の濃淡で、シンプルながら表情豊かです。いずれ2部屋にできるよう、ドアは2カ所に。
2F 寝室

右手の引き戸をすべて開けるとホールとひと続きになり、広く開放的なL字形の空間に。
正面は家族のクローゼットです。
1F トイレ

白でまとめたシンプルなトイレ。モルタル仕上げの床は、トイレ〜洗面室〜浴室とつながっています。
1F 洗面室&浴室
【コストダウンIDEA】シャワーカーテンで 浴室の壁とドアを省略。壁面は船底などにも使用するFRP塗装に。
浴室の床もタイルは貼らずにモルタル仕上げ。

グレーのモルタルの床に白い壁。「この組み合わせの浴室を展示場で見て、ひと目惚れでした」
【コストダウンIDEA】既製の洗面化粧台を選ばずカウンターと収納棚をオリジナルで造作
洗面台はマツ材、壁面のオープン棚はスギ材でシンプルな洗面台に。収納や扉のない足元は風通しがよく、掃除もラク。

外観
【コストダウンIDEA】コンパクトでシンプルな構造に

バルコニーの雨どいを埋設するなど、シンプルデザインを徹底させています。一部に使ったレッドシダー材が外観のアクセントに。
【コストダウンIDEA】タイルや石で飾らずモルタル仕上げにした玄関ポーチ

「季節のいいときは、ほとんど開けています」というリビングの窓。宅配便の人も、左手の玄関ではなく、この窓から顔を出すそう。
DATA. 阿知波さん宅 (三重県)

Profile.
阿知波さん 一家
5歳と2歳の息子さんと暮らす、阿知波さん夫妻。休日は近所のカフェでお茶をしたり、公園で自転車の練習をしたり、家族で過ごすことが多いそう。ドライブを兼ね、県外の動物園や水族館までの遠出も楽しんでいます。
設計のポイント
家族全員が自由に使えるファミリーホールとして、また中と外をつなぐ開放的なスペースとして、リビングを土間風に設計しました。視線が届くよう、リビングからキッチンまでを直線上に配し、安心して子育てができる間取りを心がけました。「リビングデザインビューロ」の家は、住む人がご自分の個性を楽しめるよう、余白を残しながら設計しています。材質の素地感など、あえて「仕上げていない感覚」を意識し、阿知波さんらしい快適な暮らしにつながるようデザインしました。
【Profile】リビングデザインビューロ
2000年創業。住む人が気持ちよく、かつ刺激的に暮らせる設計を意識し、三重、愛知を中心に約400棟の実績をもつ。ヨーロッパ雑貨の販売やカフェ運営なども行い、総合的に自社のデザインコンセプトを発信中。
| 家族構成 |
夫婦+子ども2人 |
| 敷地面積 |
232.03㎡(70.19坪) |
| 建築面積 |
56.31㎡(17.03坪) |
| 延べ床面積 |
92.32㎡(27.93坪) 1F 55.06㎡ + 2F 37.26㎡ |
| 構造・工法 |
木造2階建て(軸組み工法) |
| 工期 |
2012年10月~2013年2月 |
| 本体工事費 |
約1917万円 |
| 3.3㎡単価 |
約69万円 |
| 設計・施工 |
㈱LIVING Design Büro TEL: 059-394-2811 |
★おしゃれな注文住宅を建てたい方はこちら
★注文住宅のカタログを取り寄せたい方はこちら
こちらの記事もおすすめ!
2016.03.10【静岡県・江草さん宅】 プランにも内装にも ”和の知恵” をとり入れて「じつは、自分たちは和風住宅とは思っていなくて(笑)。理想の暮らし方を実践できる家を建てたら、自然と和の要素が多くなったという感じです」。たとえばLDK...続きを見る
コメント
全て既読にする
コメントがあるとここに表示されます