【Mさん宅(滋賀県 )】
「こんな家にしたいんです」とはじめての打ち合わせに持参したのが、家具ショップ「TRUCK」のカタログ一冊だったというMさん。シンプルだけれど味があり、気取りがなくてカッコいい。そんなイメージは当初からMさん夫妻の中にあり、最後まで貫き通した家づくりでした。
そもそも依頼先のアトリエイハウズは、「TRUCKの家具が似合う家」という記事で見つけたビルダーなので、要望はストンと通じるし、提案されるものも「そうそう、こんなのがほしかった」というものばかりだったそう。床は幅広のオーク材、手すりや窓枠に使ったのは溶接跡を残した黒皮鉄、勝手口のドアは粗削りのオーク材でつくったオーダーメイド。素材の風合いを生かした内装が家具にベストマッチしています。
「絶対置きたい」と思っていた引き出しチェストをはじめ、家具は家の設計と同時進行でオーダー。置き場所がピタリと決まり、家具の費用を工事費に組み込んで考えたため、予算調整しやすかったのもよかったとのこと。「ただ人気ショップだから待ちが長くて。12月に入居したけれど、家具が揃ったのは2月末でした(笑)」
モノはあまりふやさないようにしているけれど、気に入ったショップには少し遠くても足を運ぶというお二人。そこで出会った雑貨をひとつ、またひとつと空間にプラスし、ますます自分たちらしくなっていく家を楽しんでいます。
Dining

黒板塗料+マグネット塗料で仕上げた壁は、お絵描きしたり、ピンナップしたり。ざらっとした素材感も素敵です。キッチンは造作のカウンターでほどよく目隠し。
【照明】 芦屋の照明ショップ「フレイム」のペンダント
【テーブル】京都の工房併設家具店「フィンガーマークス」のもの
【椅子】徳島の家具工房「宮崎椅子製作所」の製品
Living

リビングとダイニングキッチンを変形敷地に沿って配置。空間がゆるやかに分かれていて快適です。床は幅広のオーク材を自然塗料仕上げに。
【キャビネット】「TRUCK」にオーダーした 引き出しチェスト
【ソファ】コーデュロイのソファは「TRUCK」の製品

引き出しチェストは5列のものを特注。「子どもは3人ほしいので、1人1列の予定で」。設計段階からここに置くことを決めていました。
【時計】神戸の「マルニ」で買った作家ものの時計

アトリエイハウズのオフィスに設置されているのを見て、「うちにも!」と希望。黒皮鉄の表情も滑り出しの構造もカッコいい。
【窓】ビルダー併設のショップ「カンプ」でオーダーメイド

【写真左】トイレ前のアルコーブは窓の下に棚を設け、雑貨を飾って目の安らぎコーナーに。インド製のブルーのホウロウバケツやグリーンを並べています。
【写真右】リビングと玄関の間の壁に鉄枠の室内窓を設置。玄関を明るくし、インテリアのアクセントにも。ガラス入りのリビングドアもオーダーメイド。
【テレビボード】「TRUCK」のローボードをテレビ台に
【キャビネット】ビルダー併設のショップ 「カンプ」のオリジナル
Kitchen

黒板塗料仕上げの壁でお絵描きも楽しい。テーブル&チェアは以前から使っていたもの。カウンターのダイニング側には日用品を収納しています。
【カウンター】ビルダー併設のショップ 「カンプ」でオーダーメイド

キッチンに立つとリビングまで見渡せて気持ちいい。デッキに面した大きな窓から光がたっぷり入り、ダイニングの小窓からもデッキが見えます。

【写真左】粗削りのオーク材でつくったドアは、節や割れを生かす「TRUCK」の家具にも通じるテイスト。風合いのあるガラスやノブにもこだわって。
【写真右】キッチンの奥に設けたパントリーは、可動棚で使い勝手よく。扉がないので出し入れしやすく、コストダウンにもつながっています。
【ドア】ビルダー併設のショップ「カンプ」でオーダーメイド

ダイニングから見える壁面は、オープン棚にして軽やかに。ふだん使いのシンプルな器を並べ、色のきれいなマグカップを差し色にしています。
【マグ】「イッタラ」のマグを差し色に

システムキッチンと造作のカウンターを組み合わせました。カウンター下の収納は手持ちの食器棚をリユース。冷蔵庫も見えない位置に配置。
【システムキッチン】シンプルな「TOTO」の システムキッチン

「毎日、目にする場所だから好きなものを」と、たくさんのサンプルから選んだボーダータイルを貼りました。ワークトップは人造大理石。
【レンジフード】「TOTO」のシンプルなレンジフード
【タイル】白のボーダータイルは「名古屋モザイク」のもの
Sanitary

【写真左】トイレの壁の一部と床は、モルタルをクリア仕上げに。硬質な素材感と木製カウンターとの対比が印象的です。ストックのペーパー入れも壁に造作。
【ミラー】ビルダー併設のショップ 「カンプ」でオーダーメイド
【ウォッシュボウル】陶器の手洗いボウルは 「ティーフォルム」の製品
【写真右】洗面カウンターは木とモザイクタイルでフルオーダー。大きなミラーや壁の収納が便利です。オープン棚は置くものを想定して高さを決定。
【ウォッシュボウル】洗面ボウルは 「TOTO」の病院用シンク
Japanese room

縁なし畳のシンプルなしつらえと地窓からの光で広がりを感じさせる和室。収納上部の木製ルーバーの奥にはエアコンが。
Work space

2階ホールに本棚とデスクを造りつけ、ワークスペースに。たっぷり光の入る心地よい空間です。本棚はスペースに合わせて微妙に奥行きを変えて。
【本棚】ビルダー併設のショップ「カンプ」でオーダーメイド
【照明】フェルト素材の ランプは 「イデー」の商品

ご主人が使うことの多いワークスペースですが、お子さんたちがパソコンをすることも。窓の景色を眺めながら快適に作業できます。
【椅子】座り心地もいい 「イームズ」のチェア
Kid's room

子ども部屋もシンプルさと素材感にこだわり、オーク材の床に。ドアを2つ設けて、今は広々と使い、将来は仕切ることもできる設計です。
Entrance

【写真左】鉄枠の窓やガラス入りのリビングドアから光をとり入れ、玄関を明るく。シンプルな空間に引き出しチェストがアクセントになっています。
【写真右】靴やコート、外遊び道具などをたっぷり収納できるシューズクローゼット。家族はこちらから出入りするので、玄関はいつもすっきりしています。
外観

外壁は火山灰シラスが原料の「そとん壁」。シンプルな中に自然のぬくもりを感じます。バルコニーの壁を立ち上げて洗濯物を隠せる設計に。

デッキと同じレッドシダー張りの壁に、シンクや水栓を設置。植物の水やりやお子さんの水遊びに便利です。むき出しの配管もカッコいい。
DATA. Mさん宅(滋賀県)

Profile.
Mさん 一家
学生時代に趣味で家具をつくっていたというご主人と、雑誌で「TRUCK」を知った奥さま。家族でショップを訪れたのが「TRUCK」の家具にハマるきっかけだったそう。お子さんは4歳と2歳。
設計のPOINT
家具をじゃませず引き立てるシンプルで素材感のいい内装に
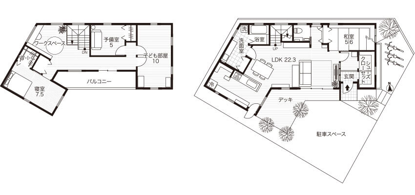
「TRUCK」の家具に似合いつつ、じゃましない空間づくりを考え、床は家具と同じオーク材、壁は白で統一し、ポイントに黒皮鉄を使いました。造作の建具やカウンター、棚などもオーク材を使い、工房で手作りしています。変形の敷地を有効に利用するため、建物は「く」の字形に。窓から一日じゅう光が入る快適な空間になりました。

アトリエイハウズ デザイナー 細野 鉄二さん
1979年生まれ。2003年よりアトリエイハウズの設計スタッフとして活動。11年からは併設のショップ「CAMP(カンプ)」のディレクターも兼ね、商品セレクトやオーダー家具製作にかかわる。
| 家族構成 |
夫婦+子ども2人 |
| 敷地面積 |
168.69㎡(51.03坪) |
| 建築面積 |
77.84㎡(23.55坪) |
| 延べ床面積 |
144.62㎡(43.75坪) 1F 77.10㎡ + 2F 67.52㎡ |
| 構造・工法 |
木造2階建て(軸組み工法) |
| 工期 |
2011年7月~11月 |
| 設計・施工 |
アトリエイハウズ TEL: 075-382-6990 |
★おしゃれな注文住宅を建てたい方はこちら
★注文住宅のカタログを取り寄せたい方はこちら
コメント
全て既読にする
コメントがあるとここに表示されます