【寺尾さん宅(大阪府)】
「吹き抜けって開放的で気持ちいいな。デッキがあると子どもたちが遊べていいな」。モデルハウスめぐりをしてそう実感した寺尾さん。吹き抜けとデッキを希望にあげて、数社にプランを依頼しました。すると「スペースラボ」から提案されたのが、リビングに2階までの大きな吹き抜けがあり、広いデッキに面して2面の掃き出し窓を設けたプラン。「他社とは違うダイナミックさに心が躍りました」。さらに「吹き抜けやデッキへの窓は、光と風をとり込む重要なポイントにもなる」と説明され、なるほどと納得したそう。
1F LD
フルオープンの窓から たっぷりの光と風を

デッキへの掃き出し窓は折り戸タイプ。全開にするとひと続きに。白塗装仕上げのパイン材の床にやさしい日ざしが届きます。
吹き抜けと2面の窓で 南に隣家の迫る 問題を克服

「エアコンに頼らず、 自然を感じながら 暮らせるのがうれしい」
広めのデッキを設けて隣家との間に距離をとり、2面の窓から光と風をたっぷりと。吹き抜けからも光がさんさんとさし込みます。
1F デッキ
高めの塀で目隠しし、 カーテンをあけて快適に

隣家との間に高めの木製フェンスを設置。視線を気にせずのびのびと暮らせます。デッキを設けることにより、風の通り道にも。
1F 玄関

【写真左】アーチ形のニッチの内部は珪藻土の塗り方に変化を。木製のリビングドアには懐かしい雰囲気のフローラガラスをはめ込みました。
【写真右】たたきにはミックスカラーのタイルを敷き、天井は板張りに。収納スペースを十分に設け、ルーバー扉で通気性も確保しています。
1F キッチン
「住み心地もデザインも 大満足の家だから 毎日幸せな気分です」

キッチン前には、市販のかごでかわいく収納できるカウンターを造りつけました。壁の小窓もオリジナルデザインで造作したもの。
窓からの風がアーチの開口からキッチンへ

手前横のサービスヤードに続く勝手口をあければ、風が通り抜けて家事も快適。ダイニングへのアーチの開口が空間にやさしさを添えて。
1F ダイニング

ダイニングには日用品や掃除用具をすっきり収納できる、ルーバー扉の収納を設置。テーブルは座卓にもできるタイプです。
1F PCコーナー

ダイニング内に造りつけたデスクは、ダイニングテーブルと同じ高さにしてチェアを共用。パソコン作業や書き物に
便利です。
1F リビング
家族のつながりも生まれる開放的な家。 高気密・高断熱で冬も暖かです
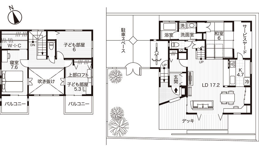
じつは南面に隣家が迫っている寺尾さん宅。吹き抜けやデッキはこの問題をクリアするのに効果的なプランなのです。デッキを設けて隣家と距離をおき、高めの塀で目隠し。大きな窓のカーテンをあけ放しても、外からの視線は気になりません。吹き抜けの高い位置の窓からも光が入り、LDは一日じゅう快適な明るさです。
風が窓から十分に入るだけでなく、風の通り道も綿密に考えられています。1階の窓から入った風は、アーチの開口を通ってキッチンを抜け、サービスヤードの勝手口へ。吹き抜けの窓をあければ風は2階にまでめぐります。また、寝室の吹き抜けに面する壁には小窓が。「夏はベッドに入る1時間前に小窓とドアをあけ、天井扇を回せば、1階の冷気が流れるので、寝室はエアコンいらずなんです」
寒さが苦手な奥さまは、吹き抜けや大きな窓があると寒いのでは……と心配したそうですが、高気密・高断熱の性能と蓄熱暖房のおかげで、冬でも家じゅう暖かいそう。「子どもがたくさん集まると暑いくらいです(笑)」
パイン材の床に珪藻土塗りの壁。カウンターや建具を手作りし、タイルや照明器具などをひとつひとつこだわって選んだ家は、ナチュラルな素材感やデザインの心地よさにも大満足。「ええ家やな〜って毎日つぶやいています(笑)」という奥さまの笑顔も素敵です。
大きな吹き抜けで 明るく風通しよく

リビングと2階がつながり、家族の気配が感じられるプラン。階段もリビング内に設け、子ども部屋への直行を防ぎます。
珪藻土の壁に 光がやわらかく広がって

1階の壁は珪藻土仕上げ。吹き抜けからさし込む光を受け、自然素材ならではのやわらかな明るさを部屋じゅうに広げます。
1F 和室
和室には地窓を設けて 趣を感じさせる 落ち着いた光を

地窓からの光が和室らしい落ち着きを感じさせます。扇形のニッチは内部に石を貼り、照明を組み込んでモダンな床の間風に。

小上がりの和室は腰かけることができ、引き出し収納も設けられて重宝。建具にはフランス製の壁紙を張りました。
2F 寝室
小窓をあければ吹き抜けから 1階のエアコンの冷気が

クラシカルな壁紙とシャンデリア、ダークな色の勾配天井でシックな寝室。紫に塗装したドアと壁の小窓は造作しました。
1F 洗面室
天窓からの光で 北側の洗面室も 穏やかな明るさ

造作の洗面台は、ボウルと一体型の人工大理石のカウンターでシンプルに。白を基調に明るく仕上げ、アクセントにブルーのモザイクタイルをあしらいました。
2F ホール

【写真左】階段の袖壁の厚みを利用して本棚を造りつけました。家族の本を並べて、寝る前に読書を。手すりは白のスチールですっきりと。
【写真右】長女はピンク、長男はブルー。それぞれの好きな色で塗装したドア。中の気配がわかるようにチェッカーガラスをはめ込みました。
2F 子ども部屋

古いチェストを奥さまが白くペイントし、ネットショップで買った取っ手をつけました。壁左下の絵はマスキングテープを貼ったもの。三角のオーナメントも奥さまの手作りです。
1F トイレ

【写真左】ブルーの腰板がさわやかな雰囲気。床も清潔感のあるタイル貼りにしました。
【写真右】陶器のボウルとレトロなデザインの水栓金具。モザイクタイルをあしらって、手洗いカウンターもおしゃれに。収納もできて便利です。
階段

踊り場はお気に入りの布をカーテンにし、プライバシーを守りながら光をとり入れて。カーテンポールと階段手すりはアイアンに。
1F 玄関
デッキからの風が届き、 目線が抜けるのも心地よい

【写真左】ポーチとたたきには同じタイルを敷き、広がり感を。ステンドグラスのランプはアンティーク、フックは雑貨ショップで。
【写真右】玄関前のポーチは、ゲストもほっとひと息つける場所。アーチのくりぬきからの風も快適です。ニッチのまわりにレンガタイルを。
外観

通りに面した窓は小さくし、プライバシーに配慮しました。雨の日も屋根つきの自転車置き場からぬれずに屋内に入れる設計です。

塗り壁の塀に素焼き瓦をのせ、アイアンの門扉を設置。アプローチにアンティークレンガを敷いた、ナチュラルな外構も素敵です。
DATA. 寺尾さん宅(大阪府)

profile.
寺尾さん
「雑貨が好きだけれど、以前の家は狭くて、飾っても映えなかったんです」と奥さま。自然素材のかわいい家ができて、雑貨を飾る楽しみがふえました。ご主人と7歳の長女、4歳の長男との4人暮らし。「家族全員、この家が大好きです」
設計のPOINT
スペースラボ 石澤 真知子さん
箱のようなシンプルな建物にすると、どうしても光の入らない部屋ができます。それぞれの敷地条件や環境を吟味し、光の入り具合や風の流れを考えて設計するので、私たちのつくる家は外観から1軒ずつ違う形状です。寺尾さんのお宅は南側に隣家が迫るため、吹き抜けから光をとり入れていますが、吹き抜け部分を少しセットバックし、隣家の2階と接近するのを避けました。下屋の部分に設けた梁が生きて、デザイン的にも心地よいスペースになったと思います。
【Profile】
建築家である夫の石澤孝之氏の影響で建築に興味をもつ。子育て卒業後、「住まい手の色が出た、個性的な住宅をつくりたい」と同社を設立。
| 家族構成 |
夫婦+子ども2人 |
| 敷地面積 |
188.16㎡(56.92㎡) |
| 建築面積 |
82.81㎡(25.05坪) |
| 延べ床面積 |
117.58㎡(35.57坪) 1F 69.56㎡ + 2F 48.02㎡ |
| 構造・工法 |
木造2階建て(軸組み工法) |
| 工期 |
2010年10月〜2011年3月 |
| 本体工事費 |
2186万円 |
| 3.3㎡単価 |
約61万円 |
| 設計・施工 |
スペースラボ TEL: 06-6903-5555 |
★おしゃれな注文住宅を建てたい方はこちら
★注文住宅のカタログを取り寄せたい方はこちら
コメント
全て既読にする
コメントがあるとここに表示されます