【島田さん宅(東京都)】
ご主人のご両親との二世帯住宅を 建てることになった島田さん。 ご両親と島田さん夫妻の希望をしっかりかなえたのは 自然素材と趣あるパーツをとり入れた 見た目&機能性ともに大満足の家でした。
しっくいの壁と無垢材の床にアンティークのドアや板壁が映える、まるでヨーロッパのカントリーハウスのような島田さんのお宅。 昔からナチュラルインテリアが大好きだった佳奈子さんはもちろん、二人のお嬢さんたちも「すごくかわいい!」「みんなでお料理ができるおしゃれなキッチンも大好きだし、子ども部屋のロフトも楽しい!」と大喜び。この家が大好きな様子が伝わってきます。 ご主人と優希くんが気に入っているのは、見た目がおしゃれなだけでなく、住宅としての性能がハイレベルなところ。本しっくいや無垢材の床ならではの調湿性に加え、高気密で高断熱。「24時間空調も完備しているので、いつでも快適で気持ちよく暮らせます」 完成して4年になる島田さんのお宅。年月を重ねるごとに味わい深くなる家のたたずまいに、ますます愛着がわいているそうです。
リビング & ダイニング
古材の梁に木製ドア、 板張りカウンターなど おしゃれな要素が満載!
大きな窓から気持ちのいい光が降り注ぐダイニングキッチン。リネンのカーテンは「コロニアルチェック」にオーダー。
本物の素材の魅力に 家族みんなが納得。 理想のナチュラルスタイル!
【POINT】
1.ぽってりと厚塗りして あたたかみを出した しっくいの壁
ヨーロッパの石積みの家のような雰囲気を出すために、本しっくいを厚く塗り重ねて。色粉をまぜて、クリーム色がかったあたたかみのある色にしました。
2.壁の一部を 板張りにして リズムのある空間に
3.リラックス感のある 幅広パインの フローリング
「年月を重ねるごとに味わい深くなり、家全体に落ち着きも出てきました。素足が気持ちいいのもよいですね」
とご主人。
ロフトに続くスキップフロアや板壁のアクセントで楽しい雰囲気に。板壁の奥はW・I・C。
階段下にも収納をつくりました。
吹き抜けや天窓で 明るくのびのびとした リビングに

2階リビングならではの吹き抜けで縦の広がりも。天窓からの日ざしがしっくいの壁にやわらかく反射して、気持ちのいい空間に。
愛犬むぎちゃんも お気に入りの サンルームコーナー

LDKの広さが十分に確保できたので、アンティークのテラコッタで床を切り返し、目を引くコーナーに。今は愛犬のスペースにしています。
キッチン
お子さんも一緒に立てる カウンターキッチン
【POINT】かわいくて 機能性も抜群の カウンター
白い板張りにアクセントの引き出しがかわいいカウンター。「ダイニング側にも引き出しと収納があるので、使い勝手がいいです」
「最初は対面式キッチンを希望していたのですが、みんなで料理ができるようにL型+カウンターに。IHなので子どもたちにも安心です」

トップライトから 光が降り注ぐ 明るく開放的な キッチン
【POINT】さりげなく空間になじむ食器棚
キッチンの一角に造りつけた食器棚。アンティーク風に仕上げた扉が空間になじみ、ほどよく味わいを添えています。
IHコンロや食洗機などの設備を充実させて、「見た目がかわいいだけでなく、機能性も高いキッチン」を実現しました。

子供部屋
【POINT】白い腰板でシンプルな中に素材感をプラス
すっきりシンプルに仕上げた優希くんの部屋。そっけなくなりすぎないよう板壁をあしらいました。「居心地がいいのか、いつもきょうだいがここに集まって遊んでいます」

将来は2つの部屋に分ける こともできる姉妹の部屋
【POINT】姉妹の部屋をつなぐガラス小窓
姉妹の部屋は、ゆるやかに仕切られたロフトつきワンルーム。将来的に2部屋にもできるように扉を2つつけてあります。「上棟式のときに間仕切り壁に圧迫感があるような気がしたので、お願いして壁に小窓をつけてもらいました」

間仕切り壁に「急遽とりつけてもらった」小窓。ほどよく目隠しになるように、気泡が入った板ガラスを使いました。

おそろいの勉強机を並べて。仲良し姉妹ならではの子ども部屋となりました。
寝室 & 書斎
プライベート空間に ロフトを活用して 変化のある暮らしを満喫!

10年ほど前から二世帯住宅の話が持ち上がっていた島田家。お子さんたちが成長して、子ども部屋が必要になってきたのを機に話が具体化しました。「昔からナチュラルインテリアが大好きで憧れていたのですが、二世帯だとそういう感じは難しいかな」と、なかばあきらめムードだった佳奈子さん。
そんなときに雑誌で出会ったのが「サラズ」の家。「あたたかくてぬくもりがあって、絶対ここにお願いしたい!と思いました」
当初はあまり乗り気でなかったご両親も、プロデュースを担当した伊賀千恵さんがお母さまのこだわりに耳を傾け、家族の気持ちに寄り添ったプランニングを提案してくれたことで納得。
「本物の素材で建てる家のよさをわかっていただけたのも、ご両親に納得いただけた理由だと思います」と伊賀さん。かくして、三世代が気持ちよく暮らせる、おしゃれで快適な完全分離型二世帯住宅が完成しました。
ロフトを生かした 寝室&ワークコーナー
ご夫妻の寝室。ロフトならではの傾斜天井の“こもり感”で、ゆっくりとくつろげるスペースに。

寝室の手前にはスキップフロアの書斎が。パソコンなど事務的なものをここにまとめたことで、LDKはすっきり。ナチュラルなインテリアが引き立ちます。
かわいいのに機能的! ストレスフリーで快適な毎日
トイレ&洗面所
【POINT】余った古材を化粧梁にして趣をプラス
2つあるトイレのうちのひとつはゲスト用も兼ねてデザインに凝って。古材の梁や手洗いカウンターで、おしゃれでくつろぎ感のある雰囲気に。

ナチュラル インテリアを 引き立てる 造りつけ収納
【POINT】 朝の混雑時も大丈夫! 幅広の洗面台
白を基調にした明るく清潔感のある洗面室。石のような質感の床で味わいをプラス。掃除がしやすい磁器タイルです。
洗剤や日用品を置く棚は、出し入れしやすいオープン棚に置き、カェカーテンで目隠し。歯ブラシなどごちゃつきやすいものは、扉つきの壁づけ収納に。
玄関
通り抜けできる大型のシューズクローゼットが便利!

【写真左】玄関ドアは木製。「準防火地域なのですが、2階玄関ということもあり、構造を工夫して木製ドアを使ってもらいました」
【写真右】白い扉の中は大容量のシューズクローゼット。そのまま廊下に通じているので、靴が出しっぱなしにならず、いつもすっきり。
外壁もすべて 本しっくい仕上げ。 年月を重ねるごとに趣が加わる家に

完全分離型の二世帯住宅。1階がご両親の住まい。右側の階段を上ると、島田さん世帯の玄関に。三角屋根とアンティークレンガのアプローチが印象的な外観です。
こだわりポイント
自分たちらしい住まいのために島田さんが選んだ、こだわりのパーツや設備。「やっぱり正解だった!」というお気に入りをピックアップして紹介します。
カントリースタイルに欠かせない味わいのある梁

LDKの天井につけた古材の化粧梁。白い梁は構造材を塗装。古材に合わせて、削ったり傷をつけたり。このひと手間がサラズならでは。
大人っぽい雰囲気のカラーレスの ステンドグラス

LDKと優希くんの部屋の間の壁にとりつけた、アンティークのステンドグラス。色ガラスを使っていないシンプルなものをセレクト。
ラフな風合いがいいアンティークの テラコッタ

リビングの一角に敷いたアンティークテラコッタ。ほどよくラフであたたかみのある表情が、空間にくつろぎ感を与えています。
ヨーロッパの田舎家のような三角形のレンジフード

佳奈子さんが「絶対これにしたかった」というカントリースタイルのレンジフード。「アルコローレ」のフローラルホワイトカラー。
ずっと憧れていたモザイクタイルのキッチンカウンター

「目地が汚れないか少し不安だったのですが、汚れがしみ込まない目地材を使っていただけたので、きれいな状態を保てます」
存在感のあるアンティークの室内ドア

ドアもペイントされていないカラーレスのものを選んで、落ち着きのある雰囲気に。アンティークショップ「パイングレイン」で購入。
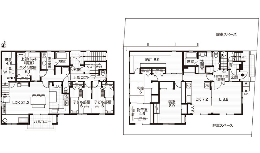
DATA. 島田さん宅(東京都)

設計のPOINT
小屋裏を生かして空間を有効利用。 広々&楽しいLDKに
ご家族が多いので、寝室をロフトに上げるなど居室のとり方を工夫することで、広々としたLDKを確保しました。みなさん仲がいいので、お互いの気配が感じられるスキップフロアの書斎など、楽しいスペースをたくさん設けました。
Sala’s(サラズ)
高性能で耐震性にもすぐれた自然素材の家が人気のビルダー。インテリアから外構までトータルにコーディネートしてくれます。

企画・設計
伊賀 千恵さん
ヨーロッパ各地のカントリースタイルをモチーフに、質感とディテールにこだわった家づくりを提案。施主の思いを最大限に取り入れたプランニングに定評あり。
Profile.

和裕さん、佳奈子さん夫妻、バスケ部エースの優希くん(14歳)、この春から中学生の莉央ちゃん(12歳)、小学3年生の希愛ちゃん(8歳)、1年前から飼い始めた愛犬むぎちゃんの、5人&1匹の家族。
| 家族構成 |
夫婦+子ども3人 |
| 敷地面積 |
231.33㎡(69.98坪) |
| 建築面積 |
115.62㎡(34.98坪) |
| 延べ床面積 |
276.92㎡(83.77坪) 1F 115.15㎡ + 2F 112.22㎡(ロフト除く)+B1F 49.55㎡ |
| 構造・工法 |
木造2階建て(枠組み壁工法、地下RC造) |
| 工期 |
2010年5月〜2011年4月 |
| 設計・施工 |
㈱Sala’s TEL: 086-250-3800 |
★おしゃれな注文住宅を建てたい方はこちら
★注文住宅のカタログを取り寄せたい方はこちら
コメント
全て既読にする
コメントがあるとここに表示されます