夏は熱帯夜が続き、季節を問わず異常気象の多い昨今、「夏涼しくて、冬暖かい」家がますます求められています。
快適とは、家本体にも住む人にも心地よいということ。「一年中快適」な家で健康的に暮らす家の実例をケース1に続いてケース2をご紹介します。
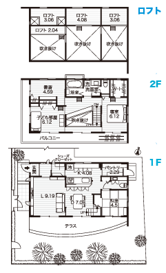
風をとり込める吹き抜けで、家じゅうを快適空間に
神奈川県・Tさん
夏の強い日ざしが室内に入らないよう、1階も2階も軒をやや深めに設定。太陽高度の低い冬には、暖かな日ざしをとり込めます。屋内では吹き抜けが風の通り道として活躍。

南側から取り入れた風を北側に抜くほか、1階は玄関〜シューズクローゼット〜キッチン〜パントリーの勝手口、2階は子ども部屋と書斎〜ファミリーコーナー〜寝室という東西の通風経路も確保しました。
「プランを考える際にいちばん重視したのは、風が通り抜けること。それまで住んでいたマンションの風通しがよくなかったので、その不満点を生かしたかったんです」
そう話してくれたTさんの新居には、快適な住まいづくりの工夫がぎっしりと詰め込まれています。
そのひとつが吹き抜けのつくり方。ハイサイドライトをはめごろしにせず引き違い戸にしたことで、家全体に風をとり込めるようになりました。その風の出口は、対角線上に設けた小窓。玄関ホール、キッチン、ロフトにも風抜きのための窓を設け、入ってきた風が通り抜けられるようにしました。
「冷房を使うのは真夏の猛暑日くらい。それと真冬を除けば、ほとんどすべての窓を開けて暮らしています。玄関とトイレ以外のすべての扉を、ドアではなく引き戸にしたのも正解。開けておけば空気のこもる部屋がひとつもなくなるので、どこにいても快適です」
暖かい空気が2階にたまってしまわないよう、吹き抜けにはシーリングファンを設置。夏も冬も、家全体を空気がぐるぐる循環する流れをつくりました。
「意外な効果があったのは、洗濯物の室内干し。吹き抜けにロープを張って洗濯物を並べ、シーリングファンを回しておくと、夜洗ったものが朝には乾いています! 小さなことですが、こんな経験からも家の中を風が流れているのを実感します」
外観

北側の隣家は、奥さまのおばあさまの家。敷地の半分を譲り受けて新居を計画し、庭に植わっていた木々も生かしました。南に向けて傾斜させた屋根面には太陽光発電パネルを設置。
LD

快適さを重視して、内装材には予算をしっかり確保。1階は壁を珪藻土、床を無垢のナラ材と天然オイルで仕上げ、自然素材の調湿機能を生かしました。LDKには温水式床暖房も採用。

重心を低く抑えたリビングから一転、ダイニングはおおらかな吹き抜けの空間。構造上必要だったすじかいは、壁で覆わずあらわしに。視線が抜けるため圧迫感がなく、風通しにも貢献しています。
快適ポイント 家じゅうの出入り口は開け放しにできる引き戸

リビングと玄関ホールの間には「神谷コーポレーション」の引き戸を。エアコンをつけるとき以外はほとんど開けたままだそう。手頃な既製品ですが、天井まで届くサイズが魅力です。
快適ポイント 屋外と屋内、2つのひさしが日除けに効果的

窓の外では、2階のバルコニーを兼ねた深いひさしが、夏場の日ざしをカット。さらに吹き抜けに設けたキャットウォークが、ハイサイドライトからの直射日光をやんわりと遮ってくれます。
和室
快適ポイント 和室には涼しい風を満喫できる地窓を

小さくてもいいから客間を用意したいと和室をプラン。「大人も子どもも、夏にここでお昼寝するのが大好き。土の地面に近いせいか、地窓から気持ちのいい風が入ってきます」
キッチン
快適ポイント 明かり取り&風抜きの小窓をキッチンに

「家事をしている間も子どもに目が届くように、対面式キッチンを選びました」。奥に見える小窓は、庭側の掃き出し窓の真正面。一直線に風が抜け、キッチンの採光にも役立っています。
吹き抜け
快適ポイント 開閉できるハイサイドライトでたっぷり通風

明るさや眺めを優先して、はめごろしにするケースが多いハイサイドライト。Tさん宅では引き違い窓にキャットウォークを組み合わせたため、自由に開け閉めできます。
快適ポイント 設備機器を効果的に組み合わせる

吹き抜けの上にはシーリングファンとエアコンが。夏はここで冷房をつけ、ファンで涼しい空気を階下に送る仕組み。冬は上昇してきた暖かい空気を、同様に下ろして循環させます。
浴室

色使いがモダンな印象のシステムバス。風をとり入れやすい大きめの窓をつけましたが、目隠しのフェンスを立てたため、隣家からの視線は気になりません。
子供部屋

天井高を生かして、収納にもベッドにもなるロフトをプラン。ファミリーコーナー~寝室~キャットウォークをぐるぐる回れる回遊動線が、遊び場にぴったり。
ファミリーコーナー

吹き抜けの開放感を味わえる2階ホール。家族みんなでパソコンなどを使えるようカウンターを造りつけました。奥に続く個室も出入り口はすべて引き戸に。
寝室
快適ポイント ロフトにもクローゼット内にも通風用の小窓を

寝室にも納戸がわりのロフトが。その下のクローゼットも収納力たっぷりです。どちらにもしっかり窓をとり、夏の熱気や湿気を逃せるように配慮しました。
洗面室

「プランや素材にコストをかけたかったので、水回り設備はごく一般的なグレードから選びました。安価でデザインが好みで、手入れもラク。私にとっては一石三鳥です」
玄関

家の中でも温度差の激しい玄関ホール。居室との間を引き戸で仕切り、必要に応じて閉めきれるようにしました。シューズクローゼットを設けたため、靴箱を置かずにすっきりと。
快適ポイント 通り抜けできる収納は通気性も優秀

玄関ホールにつなげたシューズクローゼットは、キッチン側にも出入り口が。どちらからも生活用品をしまえて便利なうえ、内部に空気がこもるのを防げます。
快適ポイント 防犯性と通気性を兼ね備えたスリット窓

「この家には開けられない窓はほとんどないんですよ」。その言葉通り、玄関ホールのスリット窓も押し出しタイプ。光と風を通しつつ、防犯性にも配慮を。
設計のポイント
アトリエグローカル一級建築士事務所
宇野健一さん
1964年神奈川県生まれ。早稲田大学理工学部建築学科卒業、神戸大学大学院工学研究科環境計画学科修了。現代計画研究所勤務を経て、2000年に現事務所を設立。
「なるべく電化製品に頼らず快適に暮らしたい」というリクエストを受け、家じゅうの気温差が少ない“温熱バリアフリー”の環境をめざしました。特に、暖かい空気は上昇し、冷たい空気は下にたまる性質があるため、ともすると吹き抜けは“夏暑くて冬寒い”空間になりがち。開口部のプランや設備機器の使い方で、吹き抜けにつきもののデメリットをなくし、開放感や明るさといったメリットを生かしました。
| 家族構成 |
夫婦+子ども1人 |
| 敷地面積 |
165.10㎡(49.94坪) |
| 建築面積 |
57.75㎡(17.47坪) |
| 延べ床面積 |
106.00㎡(32.07坪) 1F54.65㎡+2F51.35㎡ |
| 構造・工法 |
木造2階建て(軸組み工法) |
| 工期 |
2013年10月〜2014年4月 |
| 本体工事費 |
約2220万円(3.3㎡単価 約69万円) |
| 設計 |
アトリエグローカル一級建築士事務所 (宇野健一) ☎03-5912-5123 |
| 施工 |
日本住研 ㈱ ☎0466-27-1091 |
★おしゃれな注文住宅を建てたい方はこちら
★注文住宅のカタログを取り寄せたい方はこちら
おすすめ記事
2017.07.20夏は熱帯夜が続き、季節を問わず異常気象の多い昨今、「夏涼しくて、冬暖かい」家がますます求められています。快適とは、家本体にも住む人にも心地よいということ。「一年中快適」な家で健康的に暮らす事例を紹介します。パッシブデザイン...続きを見る
2016.04.20【阿知波さん宅 (三重県) 本体工事費 約1917万円 建築面積 約17坪】窓を開け放すと、庭とひと続きに。スイスの「トーンヴェルク・ラウゼン」の高蓄熱型薪ストーブは、マットな黒が空間の引き締め役に。「気に入っていた古い和...続きを見る
コメント
全て既読にする
コメントがあるとここに表示されます