【Sさん宅(東京都)】
ご夫妻と3才の長女の3人家族。「設計事務所プランボックスのアトリエを訪れて、ここなら小さくても好みの家ができる! と確信しました」と奥さま。
光と風、自然素材に包まれた リビングで過ごすひとときは、格別
おおらかな吹き抜けのあるリビングをはじめ、バルコニーから明るい光が入るダイニング、屋上ガーデンを眺められるバスルームなど、すみずみにまでこだわり抜いたSさんの新居。「共働きの私たちにとって、住まいはなによりリラックスできる休息の場であってほしいと思っていました。そこで、開放感のあるリビングや、日常を忘れてくつろげる水回りを建築家さんにリクエストしました」とお二人。
特に緑を眺めながら湯船につかれるバスルームは、トップライトからも光が降り注ぎ、まるでリゾートホテルのよう。一日の疲れをゆったりと癒せるそうです。設備の面でも快適さにこだわり、セントラル空調システムを採用。家じゅうどこにいても心地よさを感じられる、理想の住まいが完成しました。
階段を上がってパブリックスペースに入ると、まず目に飛び込んでくるのはアイランドキッチン。この“ウエルカムキッチン”でゲストをあたたかく迎えるプランは、奥さまがぜひ実現したかったものとか。「友達が遊びに来たとき、みんなでアイランドカウンターを囲んで料理をするのが楽しくて。食事の支度をしていても、リビングで遊んでいる子どもに目が届くので助かります。キッチンのレイアウトも機能的で、家事がすごくスピーディにこなせるようになったんですよ」
シックな大理石の床やモザイクタイルをあしらった壁、無垢のウォールナットのテーブルなど、ナチュラルな素材使いも素敵。大人っぽい中にもさりげないかわいらしさが感じられるインテリアになりました。
Sさん宅の工夫
予算内におさめる工夫
設備や照明などを施主支給にして、見えないところでコストダウン。アイテム探しにはインターネットを駆使。購入して貯まったポイントを使って、さらに買い物ができたとか。
好みのインテリアにする工夫
大人っぽい自然素材を使ったこと。奥さまは色合い、ご主人は肌ざわりを重視して、お二人が納得したものを採用。ショールームで実物をさわってみて質感を確かめたそう。
暮らしやすさのための工夫
24時間、1つの機械で家全体の冷暖房をコントロールするセントラル空調システムを採用したので、どこにいても快適。キッチンは、間取りの工夫で調理中の動線を短縮。
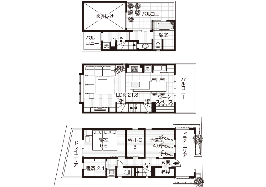
1F ダイニング
【Point】質感にこだわって取り寄せた無垢材のテーブル
ウォールナットのテーブルは、福島・南会津の「きこりの店」にオーダーしたもの。チェアは東京・都立大学の家具店「ノルスク」で。

アイランドカウンターにつなげるようにダイニングテーブルをレイアウト。奥には高めの壁で囲んだバルコニーがあり、周囲からの視線を気にせず外でくつろぐこともできます。
1F DK

【写真左】階段を上がって正面にあらわれるのがキッチン。ゲストをすぐにおもてなしできます。床の大理石や壁のモザイクタイルは、シックでやさしい色合いを選びました。
【写真右】カウンタートップは「サンワカンパニー」の大判タイル。扉にはカラマツ材を使いました。ペンダントライトや水栓金具、食洗機などの設備は施主支給にしてコストダウン。
1F キッチン
【Point】調理の設備をコンパクトに配置して家事動線を短縮!
IHクッキングヒーターとシンクを向かい合わせにレイアウト。振り向くだけで使えるので、調理中の動きに無駄がありません。

フライパンなどのキッチンツールはすぐ手にとれるよう、オープンスタイルの収納に。アイアンのオープン棚は、暖炉などをつくっているアメリカのメーカー、エンクルーム社のもの。旅先のハワイで購入したそう。
1F ワークスペース
【Point】家族みんなで使いやすい場所にパソコンを設置
ダイニングは家族がいちばん集まりやすい場所。ここにパソコンがあることで、孤立感なく家事や趣味の時間を過ごせます。

ダイニングの一角にカウンターとオープン棚を造りつけ、ワークスペースとして活用。ご夫妻でパソコンを使うほか、お子さんが大きくなったら宿題もここでする予定とか。
1F リビング
【Point】自然素材や空調システムで空気環境も心地よく
強い希望でとり入れた、珪藻土やパイン材などの自然素材とセントラル空調システム。住まいの快適さが格段に上がったそう。

【写真左】吹き抜け天井でリラックス感たっぷり。隣家の庭の緑を借景できるよう、窓のレイアウトを工夫しました。ゆったりしたソファは「ノイエス」でセレクト。
【写真右】テレビの左右に引き戸をつけて、リビングまわりのこまごましたものを収納。引き戸はキッチンと同じカラマツ材でつくりました。子どものおもちゃはかごに収納。
2F バスルーム
【Point】水回り設備もインターネット購入でコストを抑えて
キッチンのほかに水回りの設備も施主支給に。便器やペーパーホルダー、水洗金具などはインターネットで購入しました。

【写真左】北側斜線に沿って天井に勾配をつけ、トップライトを設置。夜空も眺められる、のびのびとした空間になりました。窓の外は鉢植えを置いたバルコニー。浴槽に入ると、ちょうど目線の高さにグリーンが眺められます。
【写真右】シャワーブースのある浴室、トイレ、洗面コーナーがひとつながりになった、ホテルライクなプラン。
2F サニタリー

【写真左】バルコニーに面した光あふれるサニタリー。モダンなデザインのボウルと水栓は「サンワカンパニー」。壁一面に張った鏡もホテルをイメージさせます。
【写真右】カウンターのモザイクタイル。繊細な表情がラグジュアリーな空間づくりに貢献しています。
B1F サニタリー

寝室のある地下フロアにも小さなサニタリーコーナーを設けました。朝や寝る前の歯みがきはここで。右手の引き戸は趣のある日本のユーズド。奥はご主人の書斎になっています。
2F ユーティリティ
【Point】毎日の家事をラク&スムーズにするスペースを実現
「2階に水回りをつくって正解。明るく開放的な空間で洗濯やアイロンがけができるので、家事が苦にならなくなりました」

【写真左】サニタリーから続くユーティリティ。洗濯やアイロンがけはここで行います。正面は物干し用のバルコニー。サニタリーにつけた室内干し用のポールも活用しています。
【写真右】ヨーロピアンオークをスプーンカットで仕上げた床は、裸足で歩くと気持ちいいのがお気に入り。
B1F 寝室

「落ち着きのある地下は、ゆっくり休めて寝室に向いています」とお二人。地下といっても、掘り下げられたドライエリアがあるため採光や風通しは十分です。
玄関

【写真左】玄関ホールの床には「丸鹿窯業」のファンブルストーンを敷き詰めて。大人っぽい質感が魅力的です。左手の個室との間にはアンティークの室内窓が。
【写真右】玄関ドアはさび止め加工のみを施した鉄扉。このそっけない表情が、外観にピリッとしたアクセントを加えています。アイアンの外灯は、アメリカの照明ブランド「キチラー」のもの。
外観

敷地が1段上がっていたため、そこを掘り下げて道路との高さをそろえました。そのため、図面上では玄関が地下にあたります。外壁は地下と1階のバルコニーまわりがしっくい、それ以外は「ジョリコート」で仕上げました。
わが家のお気に入り

使うときだけオープンにできるDKの収納棚
3枚の引き戸をつけたキッチン横の壁面収納。家電から食器、食材まですべておさまるようにしました。来客時は閉めて目隠し。(写真左)
水回りに隣接するゆとりの屋上ガーデン
バス&サニタリーの心地よさを高めているのが、このバルコニー。階下のリビングのハイサイドライトからも外のグリーンが見えます。(写真右)
DATA. Sさん宅(東京都)

設計のPOINT
プランボックス一級建築士事務所
玄関のある地下フロアを日常の生活空間、LDKのある1階と水回りのある2階をリラックス空間として提案しました。3層の住まいでは、アクセスしにくい最上階に個室をつくると、どうしても使われなくなってしまいがち。日当たりにも眺望にも恵まれているのに、それではもったいない!ということで、毎日必ず使うバス&サニタリーを配置しました。開放感のある贅沢な空間に仕上がったので、旅行気分で入浴でき、洗濯などの家事も楽しくなるのでは。
小山 和子さん
1955年広島県生まれ。女子美術大学芸術学部卒業。87年に小山一級建築士設計事務所、95年に湧井さんと共同で現事務所を設立。
湧井 辰夫さん
1951年東京都生まれ。工学院大学専修学校建築科卒業。80年に㈲湧井建築設計事務所、95年に小山さんと現事務所を設立。
| 家族構成 |
夫婦+子ども1人 |
| 敷地面積 |
80.00㎡(24.20坪) |
| 建築面積 |
39.13㎡(11.84坪) |
| 延べ床面積 |
92.39㎡(27.95坪) B1F 38.98㎡ + 1F 39.13㎡ + 2F 14.28㎡ |
| 構造・工法 |
地下1階+地上2階建て木造(軸組み工法) |
| 工期 |
2010年4月~10月 |
| 本体工事費 |
約2461万円 |
| 3.3㎡単価 |
約88万円 |
| 設計 |
プランボックス一級建築士事務所 (小山和子、湧井辰夫) TEL: 03-5452-1099 |
| 施工 |
㈱桧山建工 TEL: 03-5767-0181 |
★おしゃれな注文住宅を建てたい方はこちら
★注文住宅のカタログを取り寄せたい方はこちら
こちらの記事もおすすめ!
2017.06.05家づくりのコストを少しでも抑えるためのテクニックをまとめました。依頼先ごとのコストダウンのコツをはじめ、見積もり比較サイトを利用するときの注意点、補助金の賢い活用法など、家を安く建てたい人に役立つ知識が満載です。 ハウスメ...続きを見る
コメント
全て既読にする
コメントがあるとここに表示されます