近頃、人気の地元ハウスビルダーとの家づくり。
ハウスビルダーとはデザイン力のある設計事務所と実際に家を建てる昔ながらの工務店の、いいとこどりのような家づくりのパートナーです。
設計から施工までを一貫して行います。一般的に設計料が安く、使用材料などの相談もダイレクトにできるので、コスト調整の際に頼りになります。また、設計者と職人さんの連携がスムーズなので、ちょっとしたプランの変更にも柔軟に対応してくれるというメリットも。
叶えたい間取りがあったり、使いたい材料があるなど、家づくりに積極的に関わりたい人にも向きます。
家づくりの過程、家のプラン、住み心地、コストコントロール力など、全てにおいて大満足で
「パートナーに選んで大正解だった!」という好事例を紹介しましょう。
Oさん宅(神奈川県)
結婚して2年、ともに30代のご夫妻。奥さまは妊娠5カ月で、もうすぐ新しい家族を迎えます。下の写真は奥さまのお母さまが描いた間取り図の原本。ディテールまで実現することができたそう。

パートナーに選んだのはピーズ・サプライ

ピーズ・サプライ 井上 徹さん
1996年設立のハウスビルダー。「シンプル&ナチュラル」をコンセプトに、新築、増改築、リフォーム、キッチン設計などを手がける。
パートナー選びの決め手はココ!
メーカーの住宅展示場や分譲マンションも見学したけれど、私たちにはピンときませんでした。素材使いやデザインが好みに合うこと、自分たちで家づくりにかかわれることを優先しました。イメージどおりに仕上がったのは、ピーズ・サプライさんがこまかなオーダーに対応してくれたおかげです。

好みのデザインと何でも相談できる雰囲気が魅力でした
——内装もインテリアもさわやかな雰囲気ですね!
奥さま 二人とも海が好きなので、海に近いこのエリアで土地を探して、ビーチハウスのイメージで家づくりをしたんです。
ピーズ・サプライ 私たちはレトロ系の作風も手がけているのですが、OさんはそちらはNGで(笑)、最初からこういうすっきりしたデザインを求めてこられました。
——ピーズ・サプライに依頼したきっかけは?
ご主人 雑誌の広告を見て、カッコいいデザインだなと気に入って。自分たち自身も家づくりになるべくかかわりたいと思っていたので、そういうことができる依頼先ということも重要でした。
——実際にはどれくらいかかわられたのですか?
奥さま 間取りはほぼ自分たちで……というか、私の母が考えたんです。母は昔から住まいに興味があって、今回、私たちが家を建てると決まってから、20パターンくらい考えてくれました。
ピーズ・サプライ お母さま作のプランはすべて大切に保管していますが、本当にすごいんですよ! 最終プランも、ほぼお母さまのご提案どおりになっています。
ご主人 こんなふうに自由度が高いのがよかったですね。内装の仕上げなどもこまかくリクエストしたのですが、すべてそのとおりにしていただけました。
ピーズ・サプライ 完成後のイメージは写真などで明確に伝えていただきました。具体的なイメージがあるのなら、このようにビジュアルで示していただくとプランニングがスムーズに進むと思います。
大がかりDIYでコストダウン。家への愛着もひとしおに
——ほかにお二人でかかわられたことは?
ご主人 壁をほとんど自分たちで塗ったことですかね。
——ほとんど!?
ピーズ・サプライ 1階の玄関から階段、2階のLDKまで、DIYで珪藻土を塗られたんですよね。年末年始、ずっと作業されて……。
ご主人 予算的に厳しかったので、コストダウンの方法としてピーズ・サプライさんから提案されたんです。自分たちもなんとなく「やるんだろうな~」とは思っていて(笑)、いい機会だからやってみたいという気持ちもありました。
ピーズ・サプライ コストを落とすとき、職人さんの工賃だけは下げられないので、DIYをおすすめしたんです。自分たちで左官工事ができれば、左官屋さんの工賃そのものが発生しないので。面積が大きかったので、かなりのコストカットになりました。
ご主人 難しかったですし、うまく塗れていないところもありますが、自分たちは満足。なにより、こういう素材で仕上げた家に住めるのがうれしいですよね。塗り壁や板張りの壁などは、やってもらえる依頼先が限られているので、やっぱり最初のパートナー選びは大切だと思いました。
奥さま ピーズ・サプライさんがお持ちだった建材を、安く支給していただけたのもうれしかった。これもハウスビルダーに依頼したメリットだと思います。
——具体的には?
ピーズ・サプライ ポイント使いしている木製サッシですね。設計・施工が一貫の会社だと、たいてい社内に在庫をストックしているので、それを提供できることがあるんです。どのお客さまにも必ず、というわけにはいかないのですが(笑)、タイミングが合って、「ここにこれを使ったら効果的だな」と思ったらおすすめしています。
ご主人 玄関やリビングにデザインのいいサッシを使えて、ラッキーだったよね。ほかにも、個室にBグレードの床材を使ってもらったり、手頃な建具を教えてもらったり、コストダウンのアイディアはたくさんいただきました。
——お二人とお母さま、ピーズ・サプライさんのコラボレーションでできた家なのですね。完成度の高さに納得です!
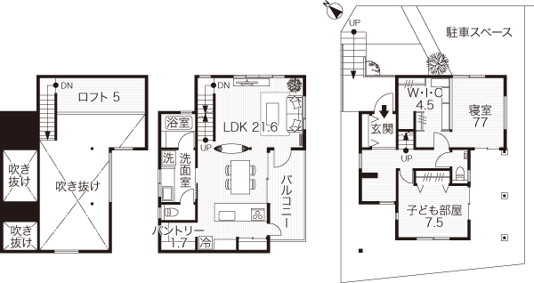
2F LDK

2階はのびのびとしたワンルームのLDKと水回りのみ。梁を出した高い天井、光あふれるバルコニー、オープンキッチンなど、開放感を高める工夫があちこちに。
キッチンはペニンシュラスタイル。幅も奥行きもゆったりのカウンターと、扉つきの背面収納を組み合わせました。湿気対策として収納の扉はルーバータイプを選択。

ペイントをとり入れたやさしいデザインは造作キッチンならでは。コンロ横の壁は白いタイル×濃いグレーの目地で仕上げて、印象を引き締めました。

キッチンの壁面で目を引くディスプレイ。古材をペイントして製作したオープンシェルフに、海をモチーフにしたお気に入りの雑貨を並べて。

「かわいいパーツがそろっているのもピーズ・サプライさんの魅力です」。真鍮のハンドルもそのひとつ。甘すぎずハードすぎない、絶妙な質感とデザインです。

南向きのバルコニーに加え、2つの窓からたっぷりと光が入るリビング。隣家のグリーンも借景できます。背の高い収納家具を置かないことで、空間がより広々と感じられます。

バルコニーに面した掃き出し窓+ハイサイドライトの効果で、ダイニングのおおらかさは抜群。これもお母さまの考えたプランがもとになっているそう。天気のいい日はバルコニーでごはんやお茶を楽しむことも。
LOFT

リビング上に設けたロフト。奥行きがあるのでゆったり使えます。「今は主に本を置いていますが、将来は子どものプレイスペースになるかもしれません」

ロフトに続く階段のまわりは、縦板張りの壁をペイント仕上げに。ビーチハウス風のラフな雰囲気が伝わります。「手すりのデザインも、ピーズ・サプライさんと一緒にいろいろ悩んで決めました」

「じつはこの壁、目地の幅までミリ単位で指定したんですよ」。お気に入りのショップ「ロンハーマン」の内装などを参考に、イメージどおりの仕上がりになるようにこだわったそう。

主な室内建具はMDF(木質繊維を固めたボード状の建材)製。見た目は木製と変わりませんが、価格はずっと手頃。ピーズ・サプライからの提案で採用しました。
2F 浴室

浴室は「TOTO」のシステムバス。お手入れしやすく、階下への水もれの心配もありません。「LDと同じフロアに浴室があると、生活動線がスムーズ。これから赤ちゃんのお世話もラクだと思います」
2F 洗面室

LDに直結させた洗面室。木製カウンターにボウルをはめたシンプルなつくりで、収納にはかごが活躍しています。プライバシーに配慮してハイサイドライトに。
1F 寝室

ゲストの目にふれることのない個室では、床にBグレードのボルドーパインを採用。グレードの違いはほとんど気づかないほどですが、コストダウンには大きく貢献しているそう。
1F 玄関ホール

玄関ドアを開けると、正面にグリーンの見えるピクチャーウインドーが。家全体の開放感や明るさを予感させる演出です。靴箱の扉は風通しにすぐれたルーバータイプに。

玄関ホールの一角。スーツケースなどを置いて納戸のように使っていますが、ここにも扉や引き戸をつけず、無駄なコストを賢く省いています。
1F W・I・C

ベッドヘッド側の壁の裏側はウォークインクローゼット。ここにもBグレードの床材が使われています。出入り口をオープンにして、さらにコストをカット。
1F トイレ

「家全体の内装はほぼ白とナチュラルな木の色でまとめましたが、トイレにだけ色を使いました」。奥の壁のみ淡いブルーで仕上げて、さわやかなアクセントに。
外観

軒やひさしのほとんどない、ふらっとなファザードが印象的。「道路側からはわかりにくいのですが、実は1階より2階の方が大きいプランなのです。これがコストダウンに効果大でした。

夫婦ともにサーフィンが趣味。カーポートの一角に、海から帰ってきた時に使う外シャワーを用意しました。海辺の街らしい工夫です。
予算管理はこうして成功!
Oさんのように家づくりに明確なイメージをもつことが、じつはコストコントロールにとても有効。こだわりがあるほうが、「これは必要、これは不要」とスムーズに決断でき、プランや素材選びにはっきりとメリハリをつけられるからです。また、私たちのようなハウスビルダーの強みのひとつが、建材やパーツを自社でストックしていて、余剰在庫があれば安価で支給できること。Oさん宅では下記の2つのサッシですが、質のいい輸入木製サッシを特価で支給することができました。こうしたメリットにもぜひ注目してみては。
設計のポイント
DIYをとり入れたり、質をちょっと落としてBグレードの建材を使うなどの小さな積み重ねももちろん有効ですが、コストダウンに最も大きく貢献したのは、1階の床面積をしぼったこと。基礎や土台の工事には多額の費用がかかるので、面積が大きければ大幅な予算アップに直結します。Oさん宅ではしっかりと構造計算をしたうえで、1階より2階のほうが大きいプランを採用。さらに下屋(母屋から張り出させた小屋根)のないシンプルな外観にしたこと、面積の大きい屋根材を手頃なタイプにしたことも、コストダウンに役立ちました。
成功のコツ まとめ
●1階が小さく2階が大きいプランで、基礎工事にかかるコストをカット。
●デザインがよくて安価な建具や、Bグレードの床材などを積極的に採用。
●インテリアのイメージをしっかり伝えて、ディテールまで理想どおりに。

DATA
家族構成:夫婦
敷地面積:125.52㎡(37.97坪)
建築面積:51.34㎡(15.53坪)
延べ床面積:96.06㎡(29.06坪) 1F 44.72㎡+2F 51.34㎡
構造・工法:木造2階建て(在来金物工法)
工期:2015年8月~2016年2月
本体工事費:約2200万円
3.3㎡単価:約76万円
設計・施工:ピーズ・サプライ ☎ 045-715-7791
www.ps-supply.com
主な仕様
床/[1階、2階]パイン無垢フローリング [洗面室、トイレ]クッションフロア [玄関ポーチ]土間コンクリート
壁/[1階玄関・ホール、2階LDK]珪藻土 [1階個室、2階洗面室]ビニールクロス
給湯/「ノーリツ」ガス給湯器
キッチン/本体:オーダー(Ⅰ型 幅265×奥行き90㎝) 天板:ステンレスヘアーライン仕上げ レンジフード:「アリアフィーナ」 食洗機:「パナソニック」 水栓金具:「グローエ」 ガスコンロ:「ノーリツ」
浴室/「TOTO」システムバス
洗面/オーダー 天板:木製アルダー材 ボウル:「KAKUDAI」 水栓金具:「グローエ」
トイレ/[1階、2階]「LIXIL」
サッシ/「LIXIL」アルミサッシ(一部は輸入木製サッシ)
玄関ドア/輸入木製玄関ドア
屋根/コロニアル
外壁/左官材 レーヴLM
断熱方法・材質/充塡断熱、グラスファイバー・硬質ウレタンフォーム
他の記事も読む
https://kurashinista.jp/house_building/detail/4322
https://kurashinista.jp/house_building/detail/4380
https://kurashinista.jp/house_building/detail/4324
コメント
全て既読にする
コメントがあるとここに表示されます