【Oさん宅(東京都)】
この家に暮らし始めてからKちゃん(0歳)が生まれ、「部屋が足りない!」とうれしい悲鳴を上げるDさん&Eさん夫妻。お兄ちゃんのLくん(4歳)は、広々としたLDKが大好き!
Oさん夫妻の家づくりは、建築家の田中ナオミさんの事務所を訪れたときに本格スタート。おおらかであたたかみのある事務所の雰囲気にひと目惚れして、「この空間をそのままわが家にしたい!」と、予算調整はもちろん、照明などのセレクトも含めたトータルでの家づくりを依頼しました。
ご夫婦ともに食べることが大好きで、「心地よく飲んだり食べたりする場」をプランの核に。ダイニングは、キッチンやリビングとひと続きですが、さりげなくゾーニングすることで、空間にメリハリをつけています。床暖房にも対応するカバザクラの床材や壁の珪藻土など素材にもこだわりましたが、無駄な建具はできるだけ削り、収納部分はシンプルにして大工作業を減らすなど、予算上でもメリハリをつけました。
おもちゃやスニーカーのコレクション、大型バイクなど、趣味のものも多かったため、あらかじめ田中さんが当時の住まいを訪れ、十分にリサーチ。「あるべき場所に、しまう場所をつくった」ことで、モノがすっきりおさまりました。「おふたりの生活スタイルが明確なので、予算調整はスムーズでした」と田中さん。「予算上、特にがまんをしたところはありませんでした」と、Oさん夫妻も自然光がふんだんに入るこの空間に心から満足しています。
理想の住まいが「1000万円台で」実現したポイント
不要な仕切り壁や建具を省き、できるだけシンプルな空間に。
扉のないオープン収納を中心にして、人件費がかかる大工工事を削減。
洗面室、トイレ、浴室を1カ所にまとめたことでコストダウンに。
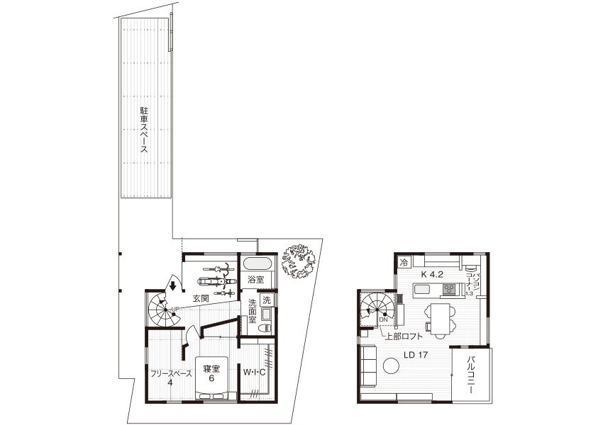
2F LDK
【こだわりPoint】スピーカーからの音がよく響く針葉樹合板の天井

大きな掃き出し窓とハイサイドライトからの光で、常に明るい雰囲気のLDK。隣接して設けた広いバルコニーが、戸外の心地よさをもたらしてくれます。
2F リビング
【こだわりPoint】やさしい色み無垢のカバザクラ材を床に採用

ワンルームのLDKにすることで、無駄な建具を省きました。「くつろぐところ」「ごはんを食べるところ」「料理をするところ」と、空間をさりげなくゾーニングしています。

【写真左】仕事の関係でトレーニングが欠かせないご主人。ロフト収納の下に懸垂用のバーをつけてもらい、筋力づくりに活用しています。ロフトは大型のものや季節ものの収納に重宝。
【写真右】広いバルコニーにテーブルを出して、お鍋や焼き肉を楽しむことも。隣接して住宅が立ち並ぶ地域ですが、開口部から視線が抜けて、室内にいても開放感が感じられます。
2F ダイニング

「お店のようなスペース」をイメージしたというダイニング。造りつけのオープン棚には、CDや家族の写真、雑貨などがにぎやかに並んでいます。
2F キッチン
【こだわりPoint】キャビネットの取っ手は自分たちでセレクト
【写真右】キッチンキャビネットの取っ手は、おふたりが探して買ってきたもの。コストダウンにも、新居への愛着アップにもつながります。

【写真左】料理をしながらダイニングやリビングを見渡すことができるキッチン。収納スペースは十分に確保しつつ不要な設備は省き、無駄なコストを抑えました。
2F パソコンコーナー

キッチン横に設けた、おもちゃのコレクションコーナーを兼ねたスペース。扉はつけず、DKとオープンにつながっているので、レシピ検索なども気軽にできます。
1F 玄関ホール
モノの“あるべき場所”を用意することで空間がシンプルに
【こだわりPoint】2方向から入る光でいつも明るい玄関に

土間玄関は広い面積を確保したので、自転車やご主人の大型バイク、趣味のアウトドア用品も余裕でおさまります。大型バイクの出し入れは、玄関ドアとは別に設けた大きな引き戸から。

大好きなスニーカーのコレクションが並んだオープン棚。上部に窓を設けて風通しも確保
1F 寝室

奥には扉のないウォークインクローゼットも設置。手前の空間は現在フリースペースとしていますが、将来的には仕切り壁を設け、独立した子ども部屋にする予定です。
1F 浴室
【こだわりPoint】ヒノキの香りを堪能できるバスルームが実現
壁にヒノキ材を使用していますが、2カ所に窓を設けて十分な通風を確保したので、カビなどの心配もなく、お手入れも簡単。バス設備はシンプルな機能のものを選びました。

1F サニタリー

隣は浴室なので、脱衣所も兼ねたスペース。実験用シンクと白のタイルですっきりとした印象にまとめました。ミラーの裏は収納スペースになっています。
外観

白×グレーでシンプルにまとめた外観。2階の大きな窓から、来客を確認することができます。
【こだわりPoint】旗ざお状敷地の通路部分を枕木でアプローチに

通常はデメリットとなる旗ざお状敷地の“さお”部分ですが、O家の大型ジープの駐車にはぴったり。枕木を敷くことで、わが家へ向かうワクワク感を演出しています。
DATA. Oさん宅(東京都)

設計のPOINT
田中ナオミアトリエ一級建築士事務所
田中 ナオミさん
Oさん夫妻はもともと生活スタイルがシンプルだったため、新たに必要なものが少なく、「いるもの」「いらないもの」がはっきりしていて予算調整もスムーズでした。収納スペースをたくさん用意しても、使い勝手が悪いと使わなくなってしまうので、あらかじめ持っているものの量を調査して、「あるべき場所」をつくることを日頃から心がけています。O邸ではオープン棚を活用して、それぞれのものの定位置を設けたことで、片づけもスムーズになったと思います。
Profile.
女子美術大学造形学科卒業後、エヌ建築デザイン事務所、藍設計室を経て、99年に現事務所を設立。家事と仕事と赤ワインが大好き。NPO法人家づくりの会理事。
| 家族構成 |
夫婦+子ども2人 |
| 敷地面積 |
112.78㎡(34.11坪) |
| 建築面積 |
42.97㎡(12.99坪) |
| 延べ床面積 |
85.94㎡(25.99坪) 1F 42.97㎡ + 2F 42.97㎡ |
| 構造・工法 |
木造2階建て(軸組み工法) |
| 工期 |
2009年7月〜12月 |
| 本体工事費 |
約1935万円 |
| 3.3㎡単価 |
約74万円 |
| 設計 |
田中ナオミアトリエ 一級建築士事務所 TEL: 0426-70-2728 |
| 施工 |
㈱斎藤工務店 TEL: 042-401-9318 |
★おしゃれな注文住宅を建てたい方はこちら
★注文住宅のカタログを取り寄せたい方はこちら
コメント
全て既読にする
コメントがあるとここに表示されます