【川辺さん宅 (千葉県)】
テントに泊まって山を歩くトレイルやシーカヤック、庭での野菜づくりにパンづくりと多趣味な央士(ひさし)さんと里佳さん。8歳のひよりちゃんと、3カ月のみのりちゃんの4人家族。家づくりをつづったブログ「コリウスの杜」や「育児と冒険の履歴」が人気。
Living, Dining & Kitchen
大きな吹き抜けのある開放的なLDK
「ログハウスに住んで 趣味が一気にふえました」

キッチンカウンターは央士さんのDIY。ログの端材を使い、床壁と同じ塗料で仕上げて一体感を。
Garden & Deck
住宅街とは思えないのどかな景観
家族で数々のアウトドアスポーツを楽しみ、庭で野菜づくりをしている川辺さん。それでも「アウトドアが好きだからログハウスを建てたのではなく、マイホームを検討したときに、たまたま選んだのがログハウスだったんです」とのこと。話をくわしく聞いてみると—。
住宅展示場をめぐり、さまざまな機能をもった最新の住宅に魅力を感じ始めていた頃、BESSのログハウスに出会って何かが変わったそう。「ざっくりとした室内空間や断熱材の入っていないログ壁。そんな、時代の流れとは逆行するような家でしたが、シンプルな分、長くつきあえるような気がして、本質的な家の魅力に気づかされました」
それでもログハウスは敷居が高い印象があった川辺さん。今一歩が踏み出せなかったとき、BESSのカタログにあった「家は道具であり城ではない、家自慢をするより暮らし自慢をしたくなる」というメッセージに共感。背中を押されたといいます。
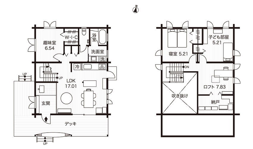
BESSのログハウスは、シリーズごとに床面積が違うモデルがあり、基本プランが決まっているスタイル。「吹き抜けのある大きなLDKがあって、居室がざっくり配置されていて。シンプルで暮らしやすそうだったので、ほぼ基本プランのままで、1階のクローゼットを広げてウォークインタイプにしました」
廊下がなく玄関からLDKにつながるプランも新鮮でよかったそう。

北側道路で南側が崖地という敷地条件も手伝って、周囲からの視線を気にせずにのびのびとした暮らしが楽しめます。「野菜を育てて収穫し、ないものはすぐにつくれる場所もある、自慢の暮らしです(笑)」
大きなひさしのあるデッキは雨の日だって遊べちゃう
【写真左】大きなひさしは夏の直射を遮り、室内を快適に。冬の低く入る日ざしはたっぷりとり込んであたたか。
【写真右】「パパがつくってくれたマラソン大会のメダル。15位でメダルがもらえなかったから(笑)」と、ひよりちゃん。
デッキはみんなの遊びの中心
アウトドア道具の手入れをしたり、家庭菜園の収穫を選別したり。「雨の日のバーベキューも格別なんですよ」
Entrance
玄関ドアをあけるとすぐに家族のぬくもりが

廊下がなく玄関とLDKの一体型。無駄なスペース(廊下)をなくした分、LDKがいっそう広々と。
Loft
洗濯を干したりたたんだりのママの家事室
2階に上がるとさらに広がる大空間

広々とした天窓から光が入るので、室内干しが主流の川辺家。「洗濯物がよく乾くんです」。ママのそばで宿題も。
Kid’s room
ほどよい “こもり感” が、居心地よさの秘密
「ログの“木”に囲まれた暮らしは、傷がついても気にならないので、のびのびと過ごせます。壁にビスやクギも自由に打てるし、DIYの家具も壁と同じ塗料で塗るとしっくりなじむのでいいですね」
外に面して開口をつくりすぎず、吹き抜けで室内空間に開放感を出すプランも、都市部の住宅密集地に意外に向いているのではとのこと。厚い木の壁に守られているという安心感もあるといいます。
「でもなによりも、このログハウスで暮らし始めて、趣味が一気にふえました!」
アウトドアだけでなく、パンづくりにも凝り出したというご夫妻。「子どもが大きくなって手がかからなくなったら、土地の一角でパン屋さんやカフェを開いてみたいですね」
窓から見える風景にこだわって
電線が見えない高さに窓を設置しました。屋根裏部屋のような傾斜天井が、ひよりちゃんもお気に入り。窓から
もほどよい光をとり込んでいます。

クローゼットは央士さんのDIY。ジャストサイズは手作りならでは。
Bedroom
木々の緑を感じながら毎日が山小屋気分

向かいが神社の森で、心地よい景観が楽しめます。ベッドフレームは総ヒノキ。もちろん央士さんのDIY。
Hobby room
武骨なワーク系の家具もなじむログ空間

ヴィンテージ調のスチールキャビネットは、ずっと前から使っているもの。ちょっとした趣味のコーナーに

【写真左】ロフトから小さな入り口をくぐって入る納戸。
【写真右】納戸の一角は登山道具の置き場。小さな机と椅子を置いて読み書きの空間に。壁にはアルプスの地図も貼ってあり、山小屋気分が満喫できます。
Sanitary
暮らしながら使いやすくカスタマイズ

【写真左】「洗面室は洗濯機の上に棚をつけたりして、少しずつ手を加えて、暮らしやすくしています」
【写真右】トイレや洗面室の照明やパーツは施主支給で好みのものを。照明は「サンヨウ」や「後藤照明」のもの。
Pickup
家じゅうのほとんどの家具は パパの手作り! だから愛着もひとしお
キッチンカウンターもテーブルも

キャンプの思い出のフレームも

キッチンカウンターはまるでBESSのオリジナルのよう。「ログの端材が出るので、DIY意欲がわきます」。古材のフレームもいい感じ。
DATA. 川辺さん宅(千葉県)

家づくりのPOINT
吹き抜けやウッドデッキで毎日をのびのびとおおらかに過ごせて、廊下やデッドスペースを極力減らして部屋を大きくするプランなど、根底にあるの〈「住む」より「楽しむ」〉ということ。ログですが内側は平坦な板壁なので、家具も置きやすくなっています。(BESS 広報担当 西田 翼さん)
| 家族構成 |
夫婦+子ども2人 |
| 敷地面積 |
330m²(99.83坪) |
| 建築面積 |
84m²(25.41坪) |
| 延べ床面積 |
120.85m²(36.56坪) 1F 67.50m² + 2F 53.35m² |
| 構造・工法 |
丸太組み構法 |
| 工期 |
2010年10月〜2011年1月 |
| 本体工事費 |
2260万円 |
| 設計・輸入 |
㈱アールシーコアBESS本部 |
| 施工 |
BESSつくば㈱BESS-L TEL: 03-3462-7000 |
★おしゃれな注文住宅を建てたい方はこちら
★注文住宅のカタログを取り寄せたい方はこちら
コメント
全て既読にする
コメントがあるとここに表示されます