【岸和田さん宅(滋賀県) 本体工事費 約1765万円 建築面積22坪】
ゴルフなどスポーツ好きのご主人と、県外の雑貨ショップまで出かけるという奥さま。新築後は家で過ごすこともふえたそう。3歳と2歳の男の子に、3人目のお子さんが誕生予定!
白い空間に黒いインテリアが映えるLD。無垢ナラ材の床がシャープさを緩和し、居心地のいいモダンテイストになっています。
吹き抜けからの明るい光が白い室内にあふれる岸和田さん宅。コンパクトでありながら開放感いっぱい、またモダンでありながらナチュラルなあたたかみを感じさせる空間です。
奥さまの実家に同居しながら、「いつかは自分たちの新居を」と考えていたお二人。そうした漠然とした思いを実行に移すきっかけになったのは、消費税のアップでした。「できれば、このあたりの風土を熟知しているかたにお願いしたかったので、地元の設計・施工会社などを調べて、実際に何軒か見学に行きました」
そして、出会ったのが建築家の武田邦康さん。「どの施工事例もおしゃれで、間取りもユニーク。こちらの希望もすぐに理解してくれて、最初に“ローコストで”とお願いしたら、単に安価にするだけではない、さまざまな工夫を提案してくれました」
岸和田さん宅のHappy Point!
ダイニング
【コストダウンIDEA】無垢ナラ材の床は自分たちの手でホワイトワックス塗装

2階の廊下から眺めたダイニング。吹き抜けの2面に設けた大きな窓のおかげで、雨の日も明るく過ごせます。
「トム・ディクソン」の「ビートライト」はこの家のシンボル的存在。「NAUT」の「アトリエテーブル」と「イームズ」の「サイドシェルチェア」を。
モダンでクールな空間に
~居心地のいいあたたかみを添えるナラやチークの無垢材~
1F リビング

壁固定で床から浮かせたAVボードは、オリジナルの造作。ソファは「エピスファニチャー」、ラグ、テーブル、スツールは「イケア」で。
「私たちの希望は、生活感のないモダンな白い空間と、家の中に一体感をつくってくれる吹き抜け。そして、子どもたちの遊ぶ姿を見ながら作業できるキッチン!」。そうした夢をかなえつつ、コストの圧縮を目標に、岸和田家の家づくりは始まりました。
まず外観は、お二人の好みでもあるシンプルな箱形。屋根の勾配も、外壁や屋根の面積が最小限になる角度にしました。面積の多い天井や壁面はクロス仕上げにし、ゲストの目につかない2階や水回りの床も手頃な素材にすることに。造りつけの家具やキッチンは、既製品と造作を比較し、お二人の描くイメージをより安価に実現できるほうを選択。造作となった場合も、家具屋さんではなく現場の大工さんに依頼しました。
ですが、節約ばかりではなく、キッチンや造りつけカウンターは、無垢のチーク材を使ってメリハリを。ダイニングには、どうしても採用したかったという照明を2灯設置。「LDや玄関の無垢材の床も、絶対にゆずれませんでした。扉つきにしたかったキッチン背面の収納棚は、一部オープンにしたのですが、ディスプレイが楽しめて、逆によかったです(笑)」
小さなコストダウンの工夫を積み重ねながら、理想の空間を手に入れた岸和田さん夫妻。吹き抜けを通し、お子さんの楽しい声が家じゅうに響いています。
【コストダウンIDEA】鉄骨階段はミニマムなデザインで構成。受け材+天板のみの造りつけカウンターは脚を省いて費用削減。

「子どもが小さいので、自分たちで階段に防護ネットを張りました」。階段下の空間にはチーク材でカウンターを設置し、PCコーナーに。
1F テラス

「気軽にバーベキューやお茶のできるテラスが欲しかったんです」。タイル貼りなのでメンテナンスもラク。
1F キッチン

LDとテラスが見渡せるので安心。階段も蹴上げがないので、死角がありません。

チーク材を使用したオリジナルキッチン。コンロ部分は奥の壁側に配置し、“見せる”と“隠す”のバランスをとっています。

【写真左】カウンターとしても使えるように、ダイニング側に25㎝の奥行きを加えました。無垢のチーク材が白い空間のアクセントに。
【写真右】ドイツ「ガゲナウ」の大容量食洗機は、奥さまの希望で導入。「鍋類も洗えるし、家族がふえても大丈夫(笑)」
【コストダウンIDEA】キッチンの背面は造作と既製品を上手に組み合わせて

壁面の造作棚はメラミン材を使い、扉を一部のみにすることでコストを調整。バックカウンターは引き出しつきが希望であり、既製品のほうが安価と判断。
【コストダウンIDEA】パントリーの棚やカウンターは大工工事で製作。キッチン、洗面など水回りはビニル床タイルに。

【写真左】パントリーは来客から見えない位置に配置。「個人的なスペースが欲しくて、カウンターも設けました」【写真右】水回りには、LDの無垢ナラ材と風合いの似た、ホモジニアス系ビニル床タイルを使用。かなりリアルな木目で、言われるまで気づきません。
2F 子供部屋
【コストダウンIDEA】2階の床はフローリングで統一。

L字形の子ども部屋は、将来的には3部屋に分割する予定。「今は間仕切りがなくて回遊できるので、2人で走り回っています(笑)」
2F 廊下

左手が階段、右手が吹き抜け。各個室を広くするため、最小限の広さにした廊下ですが、橋のような浮遊感で狭さを感じさせません。
2F 寝室 & WIC

空間のアクセントとして、また落ち着いて眠りにつけるよう、天井は黒いクロスに。
【コストダウンIDEA】回り込む動線にしてドアをカット。スタンダードな蛍光灯を使ってローコスト間接照明。

【写真左】寝室横のウォークインクローゼットは、間仕切り壁を少し張り出すようにして、ドアがなくても内部が見えないように工夫。
【写真右】天井の1辺を掘り込むようにへこませ、そこに一般的な直管型の蛍光灯を設置。シンプルな構造で、効果的な間接照明ができました。
1F 玄関ホール
【コストダウンIDEA】シューズラックはシンプルな既製品を利用。収納スペースの床はタイルをやめてモルタル仕上げに。

【写真左】靴箱の反対側には、引き戸のついた納戸が。アウトドア用品のほか、ベビーカーもゆったり収納できます。
【写真右】玄関も白でまとめて。天井までのハイドアと壁面の足元に設けた窓が、明かりとりになります。
1F・2F トイレ
【コストダウンIDEA】プライベート用トイレはリーズナブルに

【写真左】石を思わせるタイル壁、チーク材のカウンターに信楽焼の手洗いボウル。「ゲストも使うので、1階はホテル風にしてもらいました」
【写真右】1階はタンクレスにしましたが、家族だけが使う2階にはスタンダードなトイレをチョイス。窓からは吹き抜け越しに光が入ります。
1F 洗面台 & 浴室
【コストダウンIDEA】かごのサイズに合わせて大工工事で設置。洗面化粧台はおしゃれで手頃な既製品に。シンプルな1坪サイズのユニットバス。

【写真左】棚板が可動するオープン収納を大工工事で設置し、「LIXIL」の洗面化粧台を使いながらもオリジナリティある洗面室に。【写真右】浴室は、掃除がしやすく、汚れを防ぐ工夫がされた「LIXIL」の「キレイユ」を採用。大きな窓で開放感いっぱい。
黒いドアとタイルがアクセントの外観
【コストダウンIDEA】ガルバリウムで仕上げてひさしや軒をカット。

【写真左】耐久性の高いガルバリウム鋼板で外壁や屋根を仕上げているため、ひさしや軒がなくても大丈夫。凹凸の少ない箱形のデザインもコストダウンに貢献。
【写真右】袖壁の下部をオープンにした個性的なポーチ。黒いドアとタイルがアクセントに。
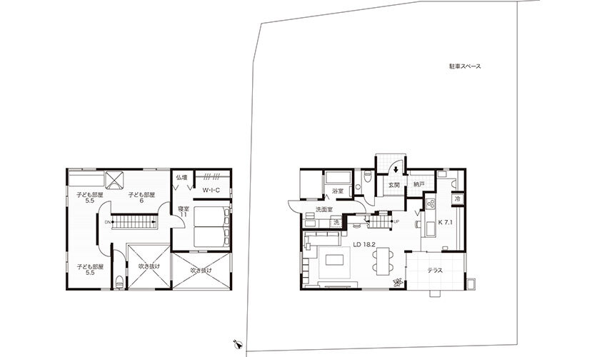
DATA. 岸和田さん宅(滋賀県)

設計のPOINT

クニヤス建築設計 武田 邦康さん
周囲が駐車場であるため、開けている半面、プライバシーへの配慮が必要という環境。「シンプルモダンな白い空間」というご要望をキーワードに、外部からは閉じた箱に見えながら、内部は明るく開放的な空間をイメージしました。また、2階のホール空間を吹き抜けに面して配置し、子ども部屋や寝室を1階LDKとつながる構成にしました。北欧テイストのチーク材のキッチンや造作家具を合わせることで、白い空間の中でもやわらかさやあたたかみを感じるデザインになっています。
【Profile】
1982年滋賀県生まれ。2004年滋賀県立大学環境科学部卒業。2006年に現事務所を設立。「グッドデザイン賞2014」受賞。住まい手の理想を形にし、個性あふれる家づくりがモットー。
| 家族構成 |
夫婦+子ども2人 |
| 敷地面積 |
334.53㎡(101.20坪) |
| 建築面積 |
72.87㎡(22.04坪) |
| 延べ床面積 |
119.69㎡(36.21坪) 1F 62.56㎡+2F 57.13㎡ |
| 構造・工法 |
木造2階建て(軸組み工法) |
| 工期 |
2013年12月〜2014年5月 |
| 本体工事費 |
約1765万円 |
| 3.3㎡単価 |
約49万円 |
| 設計 |
クニヤス建築設計 TEL: 0749-27-2633 |
| 施工 |
TOPOS・㈱近江産業 TEL:0749-62-6299 |
★おしゃれな注文住宅を建てたい方はこちら
★注文住宅のカタログを取り寄せたい方はこちら
おすすめ記事
2017.03.11和室のある住宅に住んでいる人は結構多いのでは? ほっと和める雰囲気が和室の魅力ですが、そのままだとちょっと野暮ったくもなりがち。今回は、和室を上手にアレンジしたおしゃれなインテリアをご紹介! 和の良さを活かしたり、異なるテ...続きを見る
2017.01.30存在感抜群なタペストリーは、壁に飾るだけで、部屋をぐっとおしゃれに演出してくれます。模様替えにもぴったりな便利なアイテムですね。今回は、そんなタペストリーを、手軽に作れるアイデアをご紹介します♪ お気に入りの素材を使ってオ...続きを見る
2016.12.13女性に大人気のカフェ風インテリア。自宅にいながら可愛らしい内装や小物に囲まれてのティータイムは、カフェ気分に浸れますよね。うちカフェ演出を実現するためのインテリアアイデアをご紹介します。続きを見る
コメント
全て既読にする
コメントがあるとここに表示されます