プレスリリース
地場工務店の匠が手掛けた断熱リノベの実例集『断熱リノベの匠』を展開 第7弾は、世代を超えて住み継がれた事例を公開
株式会社LIXIL
2025.03.27
株式会社LIXIL(以下 LIXIL)は、地場工務店の匠が手掛けた断熱リノベの実例集『断熱リノベの匠』を展開しています。そしてこの度、第7弾としてSW(スーパーウォール)工法リフォーム加盟店の株式会社 舘建築(三重県、代表取締役 舘 巧)が手掛けた、世代を超えて孫に住み継がれた事例を公開したので、お知らせします。

鈴鹿山脈の東に位置する三重県菰野町(こものちょう)で、昭和29年から家づくりのエキスパートとして匠の技と熱いこだわりを受け継いできた舘建築。今回ご紹介する断熱リノベの匠(たくみ)、舘巧氏はその3代目として、地域に貢献できる建築会社であり続けるために新たな技術を磨いている。
そんな匠がリノベのご依頼主M様と出会ったのは5年ほど前のこと。M様のお宅の給湯器が壊れた際に対応した業者から、水まわりのリフォーム相談にのってあげて欲しいと紹介され、それがきっかけとなり、これまで何度かリフォームの依頼を受けてきた。
今回のリノベの相談も最初は結婚される娘さんが住むための部分的なリフォームということで話が始まった。その住む家というのがM様のご両親のお住まい、ご実家だった。両親の家を息子や娘が住み継ぐのはよくある話だが、孫が住み継ぐというケースは極めて少ない。M様のご両親が亡くなり空き家になろうとしていた家に娘さんご夫婦が住むための提案。匠は若いふたりの新しい暮らしの場に思いを巡らせた。

株式会社 舘建築
取締役 舘 巧 氏
新築ではHEAT20・G2グレードを標準仕様に、高性能スーパーウォール住宅、ZEH住宅、さらには健康ストレスのない免疫の家を提案している舘建築。これまで窓まわりの断熱リフォームは行なってきたものの、まるごと一棟を高性能リノべするのは初めての経験。空き家問題が深刻化する中で、築年数の古い住宅を再生する切り札として可能性を探っている。

写真左からご依頼主のM様、娘さんご夫婦、舘氏。
舘氏がまず考えたのは、部屋のリフォームだけで本当に快適に暮らせるのか?という心配だった。築40年の土壁の日本家屋は、断熱性がないに等しい。しかも60坪もある大きな家にふたりで住むとなると、冬の寒さは半端なく暖房費用も馬鹿にならないはず。そこで、初めは2階を新居にというだけの計画だったが、補助金を活用した家全体の断熱改修も加えて提案。ちょうどタイミングよく「次世代省エネ建材の実証支援事業」に間に合う時期でもあったそうだ。また、家の断熱についての重要性を実感してもらうためにLIXILの「住まいスタジオ」へも案内。M様や娘さんご夫婦もその時のことを振り返り、昔の家と断熱リフォームの家を体感ルームで比較してみて、断熱性の違いでこんなに暖かくなるのかと驚きがあったという。そんな納得の体験も後押して、断熱改修も行なうこととなり、2階だけではなく1階も広々としたLDKとして生活スペースとする計画に。唯一、ご先祖の仏壇のある二間続きの和室は、法事など親族が集まる際に使いたいというM様の想いから、そのまま残すことにしたとのこと。
娘さんご夫婦が入居してもうすぐ2年になるそうで、住み心地について尋ねてみると「冬は寝る時も羽毛布団一枚で寒くなく、夏は外から帰ってきて家に入った瞬間に涼しさを感じる」とのこと。その影響を受けて、M様自身のお住まいも一部を断熱リフォームされたそうだ。
そして、このリノベにはもうひとつの物語があった。実はこの家を建てたのは舘氏のおじい様だったということ。M様も匠も最初はご存知なかったようで、家が引き合わせてくれたご縁だと感慨深げ。また、建物を解体した際に先代の仕事ぶりがひしひしと伝わってきて、身が引き締まる想いがしたそうだ。建てた工務店の孫が再生し、主の孫が住み継ぐ。ご両家の先代もきっと喜んでおられるに違いない。

建物を解体した時の写真を見せていただくと、立派な梁には上棟した昭和57年当時のご家族の名前、年齢まで、丁寧に記されていた。また、残された二間続きの和室は、今もさまざまな思い出をそのままに、住み継いだ若いご家族をご先祖様が見守っているかのよう。

Before

After
リノベの前も後も、外観のイメージはそのままだが、中身は新築の高性能住宅並み。寒い冬も暑い夏も暮らし心地は快適そのもの。

M様から見せていただいたアルバムの1ページ。 ご両親との思い出とともに、40年前の工事中の
写真が大切に収められていた。

間仕切られていた3つの居室を広々としたワンルームのLDKに一新。耐震対策の筋交は、空間のアクセントに。

娘さんのご主人の趣味である爬虫類の飼育部屋。冬でも30℃の室温を保つ必要があり、高い断熱性が活かされている。
今回のような家一棟の断熱改修は初めてと語る匠が驚いたというのが「まるごと断熱リフォーム」による断熱性能の高さ。HEAT20 G1グレードで十分と考えていたところ、G2グレードに近いUA値を実現。そんなことならもう少し仕様を上げてG2グレードをクリアすればよかったという感想もあったほど。こうしてM様邸の断熱リノベは、娘さんご夫婦にもご満足いただくことができ快適な住まいに。
M様邸の場合は、お爺ちゃんお婆ちゃんとの思い出が多い家ということもあり、住み継ぐことに積極的だったとのことだが、もしかすると今のZ世代の傾向として、古い建物をリノベしたカフェやお店が増えたことも手伝って、古いものを再生して今風に使うことへの興味が強いのではないかという推測もできる。そんなところにも、日本の空き家問題を解説する糸口があるのかもしれない。


築40年を超える土壁に外断熱を施し、断熱リフォーム工法で気密性もアップ。
※土壁の場合は外張りの断熱材を固定するための間柱の追加が必要になります。


天井の吹き込み断熱に加えて屋根部など、隅々まで断熱パネルで性能強化。

1F

2F
Before
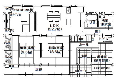
昔ながらの日本家屋らしい、間仕切りの多い田の字の間取り。2階も十分な広さがある。

1F

2F
After
仏壇のある二間続きの和室を除き、今の暮らしに合わせてリニューアル。階段の位置も変更した。
Reform Data
延床面積:62.44坪/木造2階建/築年数:1982年に竣工・築42年/エリア:三重県三重郡菰野町 断熱リフォームによる性能改善:省エネ区分 6地域 改修後UA値:0.49W/m²・K

まるごと断熱リフォームは、今ある住まいを、一棟まるごと断熱改修することで高性能住宅化できる先進の工法。すぐれた性能の断熱材により、壁・天井・床をしっかり覆い、高断熱の窓や玄関ドアに交換。外気温の影響が少なく、快適・健康・省エネを実感できる暮らしを実現する。
About LIXIL
LIXILは、世界中の誰もが願う豊かで快適な住まいを実現するために、日々の暮らしの課題を解決する先進的なトイレ、お風呂、キッチンなどの水まわり製品と窓、ドア、インテリア、エクステリアなどの建材製品を開発、提供しています。ものづくりの伝統を礎に、INAX、GROHE、American Standard、TOSTEMをはじめとする数々の製品ブランドを通して、世界をリードする技術やイノベーションで、人びとのより良い暮らしに貢献しています。現在約53,000人の従業員を擁し、世界150カ国以上で事業を展開するLIXILは、生活者の視点に立った製品を提供することで、毎日世界で10億人以上の人びとの暮らしを支えています。
株式会社LIXIL(証券コード: 5938)は、2024年3月期に1兆4,832億円の連結売上高を計上しています。
LIXILグローバルサイト:https://www.lixil.com/jp/
企業プレスリリース詳細へ
PRTIMESトップへ

鈴鹿山脈の東に位置する三重県菰野町(こものちょう)で、昭和29年から家づくりのエキスパートとして匠の技と熱いこだわりを受け継いできた舘建築。今回ご紹介する断熱リノベの匠(たくみ)、舘巧氏はその3代目として、地域に貢献できる建築会社であり続けるために新たな技術を磨いている。
そんな匠がリノベのご依頼主M様と出会ったのは5年ほど前のこと。M様のお宅の給湯器が壊れた際に対応した業者から、水まわりのリフォーム相談にのってあげて欲しいと紹介され、それがきっかけとなり、これまで何度かリフォームの依頼を受けてきた。
今回のリノベの相談も最初は結婚される娘さんが住むための部分的なリフォームということで話が始まった。その住む家というのがM様のご両親のお住まい、ご実家だった。両親の家を息子や娘が住み継ぐのはよくある話だが、孫が住み継ぐというケースは極めて少ない。M様のご両親が亡くなり空き家になろうとしていた家に娘さんご夫婦が住むための提案。匠は若いふたりの新しい暮らしの場に思いを巡らせた。

株式会社 舘建築
取締役 舘 巧 氏
新築ではHEAT20・G2グレードを標準仕様に、高性能スーパーウォール住宅、ZEH住宅、さらには健康ストレスのない免疫の家を提案している舘建築。これまで窓まわりの断熱リフォームは行なってきたものの、まるごと一棟を高性能リノべするのは初めての経験。空き家問題が深刻化する中で、築年数の古い住宅を再生する切り札として可能性を探っている。

写真左からご依頼主のM様、娘さんご夫婦、舘氏。
舘氏がまず考えたのは、部屋のリフォームだけで本当に快適に暮らせるのか?という心配だった。築40年の土壁の日本家屋は、断熱性がないに等しい。しかも60坪もある大きな家にふたりで住むとなると、冬の寒さは半端なく暖房費用も馬鹿にならないはず。そこで、初めは2階を新居にというだけの計画だったが、補助金を活用した家全体の断熱改修も加えて提案。ちょうどタイミングよく「次世代省エネ建材の実証支援事業」に間に合う時期でもあったそうだ。また、家の断熱についての重要性を実感してもらうためにLIXILの「住まいスタジオ」へも案内。M様や娘さんご夫婦もその時のことを振り返り、昔の家と断熱リフォームの家を体感ルームで比較してみて、断熱性の違いでこんなに暖かくなるのかと驚きがあったという。そんな納得の体験も後押して、断熱改修も行なうこととなり、2階だけではなく1階も広々としたLDKとして生活スペースとする計画に。唯一、ご先祖の仏壇のある二間続きの和室は、法事など親族が集まる際に使いたいというM様の想いから、そのまま残すことにしたとのこと。
娘さんご夫婦が入居してもうすぐ2年になるそうで、住み心地について尋ねてみると「冬は寝る時も羽毛布団一枚で寒くなく、夏は外から帰ってきて家に入った瞬間に涼しさを感じる」とのこと。その影響を受けて、M様自身のお住まいも一部を断熱リフォームされたそうだ。
そして、このリノベにはもうひとつの物語があった。実はこの家を建てたのは舘氏のおじい様だったということ。M様も匠も最初はご存知なかったようで、家が引き合わせてくれたご縁だと感慨深げ。また、建物を解体した際に先代の仕事ぶりがひしひしと伝わってきて、身が引き締まる想いがしたそうだ。建てた工務店の孫が再生し、主の孫が住み継ぐ。ご両家の先代もきっと喜んでおられるに違いない。

建物を解体した時の写真を見せていただくと、立派な梁には上棟した昭和57年当時のご家族の名前、年齢まで、丁寧に記されていた。また、残された二間続きの和室は、今もさまざまな思い出をそのままに、住み継いだ若いご家族をご先祖様が見守っているかのよう。

Before

After
リノベの前も後も、外観のイメージはそのままだが、中身は新築の高性能住宅並み。寒い冬も暑い夏も暮らし心地は快適そのもの。

M様から見せていただいたアルバムの1ページ。 ご両親との思い出とともに、40年前の工事中の
写真が大切に収められていた。

間仕切られていた3つの居室を広々としたワンルームのLDKに一新。耐震対策の筋交は、空間のアクセントに。

娘さんのご主人の趣味である爬虫類の飼育部屋。冬でも30℃の室温を保つ必要があり、高い断熱性が活かされている。
今回のような家一棟の断熱改修は初めてと語る匠が驚いたというのが「まるごと断熱リフォーム」による断熱性能の高さ。HEAT20 G1グレードで十分と考えていたところ、G2グレードに近いUA値を実現。そんなことならもう少し仕様を上げてG2グレードをクリアすればよかったという感想もあったほど。こうしてM様邸の断熱リノベは、娘さんご夫婦にもご満足いただくことができ快適な住まいに。
M様邸の場合は、お爺ちゃんお婆ちゃんとの思い出が多い家ということもあり、住み継ぐことに積極的だったとのことだが、もしかすると今のZ世代の傾向として、古い建物をリノベしたカフェやお店が増えたことも手伝って、古いものを再生して今風に使うことへの興味が強いのではないかという推測もできる。そんなところにも、日本の空き家問題を解説する糸口があるのかもしれない。


築40年を超える土壁に外断熱を施し、断熱リフォーム工法で気密性もアップ。
※土壁の場合は外張りの断熱材を固定するための間柱の追加が必要になります。


天井の吹き込み断熱に加えて屋根部など、隅々まで断熱パネルで性能強化。

1F

2F
Before
昔ながらの日本家屋らしい、間仕切りの多い田の字の間取り。2階も十分な広さがある。

1F

2F
After
仏壇のある二間続きの和室を除き、今の暮らしに合わせてリニューアル。階段の位置も変更した。
Reform Data
延床面積:62.44坪/木造2階建/築年数:1982年に竣工・築42年/エリア:三重県三重郡菰野町 断熱リフォームによる性能改善:省エネ区分 6地域 改修後UA値:0.49W/m²・K

まるごと断熱リフォームは、今ある住まいを、一棟まるごと断熱改修することで高性能住宅化できる先進の工法。すぐれた性能の断熱材により、壁・天井・床をしっかり覆い、高断熱の窓や玄関ドアに交換。外気温の影響が少なく、快適・健康・省エネを実感できる暮らしを実現する。
About LIXIL
LIXILは、世界中の誰もが願う豊かで快適な住まいを実現するために、日々の暮らしの課題を解決する先進的なトイレ、お風呂、キッチンなどの水まわり製品と窓、ドア、インテリア、エクステリアなどの建材製品を開発、提供しています。ものづくりの伝統を礎に、INAX、GROHE、American Standard、TOSTEMをはじめとする数々の製品ブランドを通して、世界をリードする技術やイノベーションで、人びとのより良い暮らしに貢献しています。現在約53,000人の従業員を擁し、世界150カ国以上で事業を展開するLIXILは、生活者の視点に立った製品を提供することで、毎日世界で10億人以上の人びとの暮らしを支えています。
株式会社LIXIL(証券コード: 5938)は、2024年3月期に1兆4,832億円の連結売上高を計上しています。
LIXILグローバルサイト:https://www.lixil.com/jp/
企業プレスリリース詳細へ
PRTIMESトップへ
編集部ニュース
編集部コラム
新着試してみた感想
試してみたについて
会員限定
プレゼント&モニター募集
LINEで24時間いつでも悩みを相談できる!主婦の友社から「暮ら...
暮らしニスタで新しいことを始めよう。Amazonギフトや最大1万...
【みんなのリアルを大公開】バタバタな朝も、腹ペコな午後も。私たち...
「ウィズ京葉ガス」2026年4月に掲載されました
「ウィズ京葉ガス」2025年11月に掲載されました
「ウィズ京葉ガス」4月号にて掲載されました*








コメント
全て既読にする
コメントがあるとここに表示されます