プレスリリース
【株式会社ユニホー】木造3階建てアパート「APT LIBRE-ONE(アプト リブレ ワン)」誕生!狭小地の収益性を高める
株式会社ユニホー
2025.05.22
株式会社ユニホー(本社:名古屋市)は、都市部の賃貸市場に革新的な価値をもたらす 「APT LIBRE-ONE」 を発表しました。本商品は、木造3階建て共同住宅の新たな可能性を広げる「木3共」仕様を採用し、耐火建築物よりも低コストで建築できる準耐火建築物として設計されています。

「APT LIBRE-ONE」の特徴
「APT LIBRE-ONE」は、都市部の狭小地でも柔軟に対応できる ハイグレードな木造3階建てアパートです。名古屋都心の賃貸マンションと同等の設備を標準採用し、木造ならではの温かみのあるインテリアコーディネートを施しています。

入居者様に選ばれる賃貸住宅を目指し、細部までこだわった設備を採用。
ペニンシュラ型オープンキッチンはコミュニケーションが取りやすく、開放感があり、家族との会話を弾ませます。
トレンドの内装コーディネートやハイグレード仕様の浴室(1216サイズ)でデザイン性だけでなく、快適な使いやすさも喜ばれるポイントです。
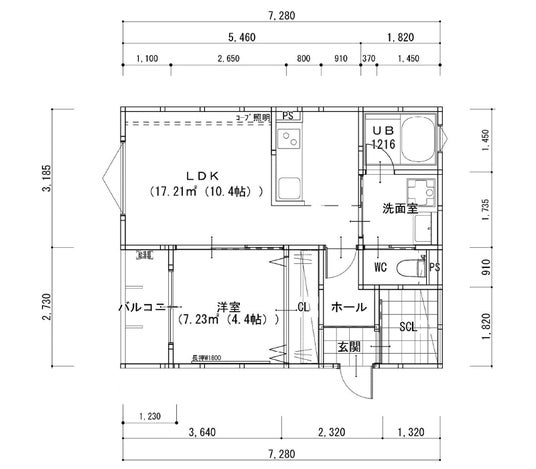
敷地に合わせた最適なプラン
「APT LIBRE-ONE」は、オーナー様の土地に合わせた柔軟なプランニングが可能です。例えば、約40平方メートル の1LDKという機能的な間取りは、ゆとりのある生活を求める入居者にとって理想的です。

▲参考プラン
オーナー様のメリット
狭小地や変形地にも対応し、土地の有効活用が可能です。さらに、相続税対策としても効果的で、鉄骨造・鉄筋コンクリート造と比較して建築費を抑えることができます。
入居者様のメリット
最新の設備仕様で快適な生活を実現し、充実したセキュリティで安心の居住環境を提供し、さらにトレンドのインテリアコーディネートでおしゃれな住空間を演出します。
木造3階建て共同住宅のメリット
建築費が鉄骨造・RC造よりも抑えられ、「木3共」仕様による緩和規制の適用でコストパフォーマンスが向上し、狭小地でも柔軟な設計が可能なうえ、2階建てよりも戸数を増やせるため収益性が向上し、さらに短期間で減価償却できるため、節税効果も期待できます。
ユニホーは、名古屋・愛知のアパート経営、土地活用に関するご相談、ご質問、資料請求を随時無料で承っております。
2万件以上の賃貸マンション/アパート・戸建て賃貸の管理を手掛ける土地活用のエキスパートユニホーが、お客様に合わせた土地活用方法を提案させて頂きます。
是非お気軽にお問合せ下さい!
【資料請求・お問い合わせ】
「APT LIBRE-ONE」に関する詳細な情報や資料請求は、以下の連絡先までお問い合わせください。
株式会社ユニホー 開発事業部
電話:0120-564-003
HP:https://kaihatsu.uniho.co.jp/
企業プレスリリース詳細へ
PRTIMESトップへ

「APT LIBRE-ONE」の特徴
「APT LIBRE-ONE」は、都市部の狭小地でも柔軟に対応できる ハイグレードな木造3階建てアパートです。名古屋都心の賃貸マンションと同等の設備を標準採用し、木造ならではの温かみのあるインテリアコーディネートを施しています。

入居者様に選ばれる賃貸住宅を目指し、細部までこだわった設備を採用。
ペニンシュラ型オープンキッチンはコミュニケーションが取りやすく、開放感があり、家族との会話を弾ませます。
トレンドの内装コーディネートやハイグレード仕様の浴室(1216サイズ)でデザイン性だけでなく、快適な使いやすさも喜ばれるポイントです。
敷地に合わせた最適なプラン
「APT LIBRE-ONE」は、オーナー様の土地に合わせた柔軟なプランニングが可能です。例えば、約40平方メートル の1LDKという機能的な間取りは、ゆとりのある生活を求める入居者にとって理想的です。

▲参考プラン
オーナー様のメリット
狭小地や変形地にも対応し、土地の有効活用が可能です。さらに、相続税対策としても効果的で、鉄骨造・鉄筋コンクリート造と比較して建築費を抑えることができます。
入居者様のメリット
最新の設備仕様で快適な生活を実現し、充実したセキュリティで安心の居住環境を提供し、さらにトレンドのインテリアコーディネートでおしゃれな住空間を演出します。
木造3階建て共同住宅のメリット
建築費が鉄骨造・RC造よりも抑えられ、「木3共」仕様による緩和規制の適用でコストパフォーマンスが向上し、狭小地でも柔軟な設計が可能なうえ、2階建てよりも戸数を増やせるため収益性が向上し、さらに短期間で減価償却できるため、節税効果も期待できます。
ユニホーは、名古屋・愛知のアパート経営、土地活用に関するご相談、ご質問、資料請求を随時無料で承っております。
2万件以上の賃貸マンション/アパート・戸建て賃貸の管理を手掛ける土地活用のエキスパートユニホーが、お客様に合わせた土地活用方法を提案させて頂きます。
是非お気軽にお問合せ下さい!
【資料請求・お問い合わせ】
「APT LIBRE-ONE」に関する詳細な情報や資料請求は、以下の連絡先までお問い合わせください。
株式会社ユニホー 開発事業部
電話:0120-564-003
HP:https://kaihatsu.uniho.co.jp/
企業プレスリリース詳細へ
PRTIMESトップへ
編集部ニュース
編集部コラム
暮らしニスタさんの活躍情報
新着試してみた感想
試してみたについて
会員限定
プレゼント&モニター募集
【みんなのリアルを大公開】バタバタな朝も、腹ペコな午後も。私たち...
息をのむような美しい風景の連続!郷土料理、ものづくり体験など魅力...
【カインズ】「こんなの欲しかった!」がきっと見つかる。暮らしニス...
Pasco「超熟」のタイアップ記事に参加させ...
大人のおしゃれ手帖webに「ファッション小物...
大人のおしゃれ手帖webに「紀ノ国屋のエコバ...








コメント
全て既読にする
コメントがあるとここに表示されます