プレスリリース
宿場JAPAN、泉岳寺に一棟貸しホテル「HOTEL Rin TOKYO」オープン!高輪ゲートウェイ駅の徒歩圏で“まちで暮らすような宿泊体験”
株式会社宿場JAPAN
2025.05.08
宿場JAPAN3棟目となる空き家を活用した一棟貸しホテル。これまでの実績とノウハウを活かし、より洗練されたサービスを提供

「HOTEL Rin TOKYO」外観
品川エリアを中心にゲストハウス運営、ツアー企画・運営等を行う株式会社宿場JAPAN(代表取締役:玉井(渡邊)崇志、以下宿場JAPAN)は2025年5月25日、地域を案内するコンシェルジュサービスがついた一棟貸しタイプの宿泊施設「HOTEL Rin TOKYO」(ホテル リン トウキョウ・東京都港区高輪2-16-1)を開業いたします。品川エリアを中心にゲストハウスや一棟貸しホテルを運営する当社にとって、3棟目の一棟貸しホテルとなります。

1階ベッドルーム
当ホテルが位置するのは、泉岳寺駅から徒歩3分の好立地。昭和時代に建てられた住宅をリノベーションし、一棟貸しホテルとして生まれ変わらせました。大規模再開発が続行中の高輪ゲートウェイ駅まで徒歩圏内にありながら、神社仏閣や住宅街で構成された落ち着いた街並みに位置する当ホテルでは、まさに“まちで暮らすような宿泊体験”が可能。お迎えからお見送りまで地域を知り尽くしたコンシェルジュがサポートし、初めての滞在でも安心してお過ごしいただけます。
羽田空港、ターミナル駅・品川駅に近く、都内でも屈指といえる交通アクセスの良い場所で、フットワークよく動ける利便性だけでなく日本に一歩踏み込んだ滞在をしたい。そうした欲張りなインバウンドニーズや、気兼ねなく家族や友人と特別な時間を過ごしたいといった国内宿泊ニーズに応え、より充実した宿泊体験と滞在時間を届けてまいります。
「HOTEL Rin TOKYO」WEBサイトはこちら:
https://47gawa.tokyo/room/rin/
◼️大変革が進む高輪ゲートウェイ駅まですぐ、日本の民家に“暮らす”ホテル
2階建ての戸建住宅をリノベーションした「HOTEL Rin TOKYO」は、1日1組限定・最大6名ほどで利用いただける一棟貸しタイプの宿です。
当ホテルは、泉岳寺駅より徒歩約3分、高輪ゲートウェイ駅までも徒歩約11分という好立地にあります。2025年3月27日にまちびらきとなった高輪ゲートウェイ駅直結「TAKANAWA GATEWAY CITY(高輪ゲートウェイシティ)」を中心に、今後も大規模な再開発が続く高輪ゲートウェイ駅周辺。その徒歩圏内にありながら、泉岳寺駅周辺は神社仏閣や集合住宅が集まり、どこか穏やかな空気が流れています。そんな環境の中で、寺院を背にして建つ住宅を改装した「HOTEL Rin TOKYO」は一棟貸し切りのため、ご家族や友人のみで気兼ねなく過ごしていただくことができ、日本の民家に“帰ってきた”ような気分を味わうことができます。

◼️庭つき戸建住宅をリノベーション。“日本に住む”感覚で、特別な滞在を
リノベーションにあたっては、昔ながらの日本民家の佇まいはそのままに、内部は心地よく過ごせるようモダンにリノベーション。インテリアは洋館をイメージし、ホワイトとブラウンのカラーリングを基調に真鍮をあしらい、高級感のある仕上がりに。ゆとりあるリビング、緑を楽しめるウッドデッキなど、大人数でものびのび過ごせる間取りです。
3室ある客室はそれぞれ印象を変えており、どの部屋に寝ようかと迷うのも一つの楽しみに。小さな庭エリアは、敷地面積が限られる中でも光や憩いを得ようとした東京都心部ならではの設計。改装時にはウッドデッキを設け、居心地の良さを高めました。マンションが立ち並ぶ現在ではなかなか見られなくなった贅沢な住宅空間が、都心にいることを忘れさせてくれます。

2階ベッドルーム
空き家になる前、この住宅には約50年ほどご夫婦がお住まいだったといいます。その頃は敷地内に綺麗なミモザが咲いていたとのエピソードを聞き、今回小さなミモザの木の鉢植えを庭に配置。リビングから眺められるようにしました。2階の窓は既存の設えを活かして昔のガラスの風合いを楽しめるようにするなど、元々の建物が経てきた歴史やストーリーを紐解き、新旧のよさを合わせ持たせた設計は、ホテルライクなのにどこか懐かしさも感じさせる味わい深い空間となっています。

1階ベッドルーム

リビング

リビング

ウッドデッキ
◼️「Rin」の名とロゴは、土地がもつ歴史から“輪”をストーリーの軸に
泉岳寺エリアにはかつて江戸への入場ゲートであった高輪大木戸(おおきど)があり、まさに江戸の入り口でした。江戸の頃には月見の名所であり、牛車業者が集まっていました。「忠臣蔵」で知られる赤穂浪士ゆかりの泉岳寺をはじめ神社仏閣が多く、穏やかな住宅街となった今も歴史を感じることができる場所です。
「HOTEL Rin TOKYO」の名は、この土地の歴史的背景を踏まえ、“輪”をアイデアソースとしています。
高輪の“輪”(=りん)、江戸の頃には当エリア(高輪海岸、現在の高輪2丁目東側付近)が月見の名所だったことから満月が形作る“輪”(=わ)、近隣に牛車業者が多く「車町」(通称牛町)と呼ばれるほどであったことから“車輪”、そして江戸の入口であり、出会いと別れの場として、旅人が行き交う場所として賑わっていたことから、人の“輪”(=わ)がここから広がるように……という願いを込めて命名しました。ロゴにも車輪を型取り、親しみやすさを持たせながら、この先も長く続いていくようにと普遍性を感じさせるようなシンプルな仕上がりとしています。

ロゴ

牛車業者が多数いたことを示すホテル周辺の解説看板

歌川広重(初代)による、「高輪牛町」を描いた「名所江戸百景」を客室に
◼️近隣施設と協力したルームサービスを提供。宿の中でも「ローカル体験」ができる宿に
「地域融合型宿泊施設」をコンセプトとしている当社では、宿での宿泊体験が地域を知ることにも繋がる仕掛けを大事にしています。
これまで展開してきた2つの一棟貸しホテル「Bamba Hotel Tokyo」(※2)と「Araiya Tokyo」と同様、ファミリーや友人グループでの利用を想定し、宿にいながらローカルな体験ができるサービスを提供。近隣店舗との共同開発で、近隣の飲食店や商店街からオーダーした商品がルームサービスのように宿に届けられるデリバリーサービス、まちに暮らしまちを熟知するコンシェルジュによるおもてなし、ちょっとそこまで出かける時に便利な外履きスリッパを用意するなど、ハードからソフトまできめ細やかな仕掛けを施しています。最近ではインバウンド観光客以外にも、大事な人と過ごす特別な宿泊体験を求める日本人客の方々にも、多くご利用いただいております。
「Araiya Tokyo」と至近距離にあるため、当社運営スタッフがホテル周辺を把握していることも強みです。どの宿泊施設でもゲストとの丁寧なコミュニケーションを心がけている当社では、スタッフが近隣のおすすめスポットや飲食店を紹介することもしばしば。お店が少ない住宅街に立地しているからこそ、ほんの短い滞在でも思い出となるような過ごし方をしていただけるよう、日々新店オープンや休業などの周辺情報には気を配り、和食など近隣飲食店を中心にご案内できるようにしております。
「HOTEL Rin TOKYO」WEBサイト
https://47gawa.tokyo/room/rin/
※2 「Bamba Hotel Tokyo」WEBサイト
https://47gawa.tokyo/room/bambahotel/
※3 「Araiya Tokyo」WEBサイト
https://47gawa.tokyo/room/araiya/
◼️「HOTEL Rin TOKYO」施設概要

◎住所
東京都港区高輪2-16-1
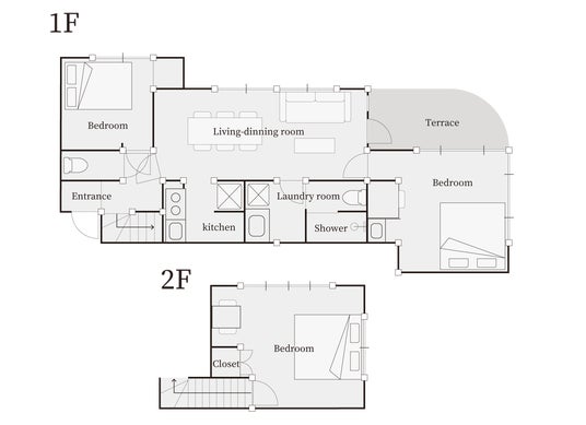
◎間取り

1F
- リビングルーム、キッチン
- シャワールーム(レインシャワー有)、パウダールーム、トイレ×2
- ベッドルーム1
- ベッドルーム2(洗面スペースあり)
- ウッドデッキ
2F
- ベッドルーム
最大宿泊人数:6名
構造:木造二階建て
延べ床面積:79.18平米
◎設備
キッチン/冷蔵庫/電子レンジ/電気ケトル/ウオーターサーバー/調理器具/食器類/インターネット接続/テレビ/洗濯機/ウォシュレット/ドライヤー/キングベッド2台/ダブルベッド1台
◎アメニティ:
お茶セット/コーヒーネスプレッソ/シャンプー/コンディショナー/ボディーソープ/ハミガキセット/カミソリ/くし/タオル/バスタオル/パジャマ/コットン・綿棒/ティッシュ
◼️代表・株式会社宿場JAPAN 代表取締役:玉井(渡邊)崇志のコメント
この度たくさんのご縁の元で、弊社にとって5つめとなる宿泊施設「HOTEL Rin TOKYO」を開業できる運びとなりました。まずは謹んで御礼申し上げます。
今回の「HOTEL Rin TOKYO」は、おかげ様で高い稼働率での運営が実現できている「Araiya Tokyo」の前例があったことから、近隣のオーナー様に空き家であった戸建て住宅を再生させることができないか、ご相談いただいたことから始まりました。そして、そのAraiya Tokyoは、昨年12月に10周年を迎えた宿泊施設「Bamba Hotel Tokyo」をきっかけとして誕生することとなりました(※1)。

HOTEL Rin TOKYOの改装中風景

最初の宿泊施設である「品川宿ゲストハウス&ツアーズ」(開業当初は「ゲストハウス品川宿」)から早15年、品川エリアを中心にゲストハウス運営、ツアー企画・運営等を行ってきた弊社の事業は、点が線に、そして面になるような地道な地域との連携活動を基盤としてここまで歩んでまいりました(※2)。これまでも社員、スタッフ含めた仲間とともにつくり上げてきた事業の一つひとつが起点となり、次々に次の事業が芽吹いていくようなプロセスを辿り、またその過程でスタッフ陣が力をつけてさらに事業が安定して拡大していく。……そんな良いサイクルが実現できています。今回のRin Tokyoも、ベテランスタッフ2人を中心に、事業計画からコンセプトづくり、ロゴ等のデザイン、店舗設計にDIYまで、ほぼすべて現場に一任しています。今後はグループ会社である旅行会社「宿場トラベル(東京都知事登録旅行業第2-8202号)」のプランを組み合わせて、ガイド付きのベイエリアツアーや品川の商店街や神社仏閣とタイアップしたプランをご提供していく予定です。
宿の面白さや価値は、様々な「外」と「内」が交わる場所であること自体にあります。すべては出会いから始まっていく。ここからどんな新たな未来が展開していくのか、私自身が大変楽しみでもあります。まちに対する価値を最大限発揮すべく、誠心誠意、より良い運営を心がけてまいります。今後とも変わらぬご支援のほど、何卒よろしくお願い申し上げます。
※1 「Bamba Hotel Tokyo」10周年 関連プレスリリース
https://prtimes.jp/main/html/rd/p/000000009.000097061.html
※2 「ゲストハウス品川宿」15周年、および「品川宿ゲストハウス&ツアーズ」に改名 関連プレスリリース
https://prtimes.jp/main/html/rd/p/000000008.000097061.html
■株式会社 宿場JAPAN 会社概要
社名:株式会社 宿場JAPAN
会社HP URL:https://shukuba.jp/
代表取締役:渡邊崇志
住所:〒140-0001 東京都品川区北品川1-22-16
設立:2011年3月
資本金:100万円
事業内容:
宿泊施設「品川宿ゲストハウス&ツアーズ」の運営
宿泊施設「Araiya Tokyo」の運営
宿泊施設「Bamba Hotel Tokyo」の運営
宿泊施設「Kago #34 Tokyo by Shukuba HOTEL」の運営
宿泊施設「HOTEL Rin TOKYO」の運営
スモールラグジュアリー宿泊施設の受託運営
宿泊施設の開業コンサルティング
自治体と連携したエリアプロデュース
おもてなし人材の育成と教育
ゲストハウス開業支援プログラム「Detti プログラム」の提供
企業プレスリリース詳細へ
PRTIMESトップへ

「HOTEL Rin TOKYO」外観
品川エリアを中心にゲストハウス運営、ツアー企画・運営等を行う株式会社宿場JAPAN(代表取締役:玉井(渡邊)崇志、以下宿場JAPAN)は2025年5月25日、地域を案内するコンシェルジュサービスがついた一棟貸しタイプの宿泊施設「HOTEL Rin TOKYO」(ホテル リン トウキョウ・東京都港区高輪2-16-1)を開業いたします。品川エリアを中心にゲストハウスや一棟貸しホテルを運営する当社にとって、3棟目の一棟貸しホテルとなります。

1階ベッドルーム
当ホテルが位置するのは、泉岳寺駅から徒歩3分の好立地。昭和時代に建てられた住宅をリノベーションし、一棟貸しホテルとして生まれ変わらせました。大規模再開発が続行中の高輪ゲートウェイ駅まで徒歩圏内にありながら、神社仏閣や住宅街で構成された落ち着いた街並みに位置する当ホテルでは、まさに“まちで暮らすような宿泊体験”が可能。お迎えからお見送りまで地域を知り尽くしたコンシェルジュがサポートし、初めての滞在でも安心してお過ごしいただけます。
羽田空港、ターミナル駅・品川駅に近く、都内でも屈指といえる交通アクセスの良い場所で、フットワークよく動ける利便性だけでなく日本に一歩踏み込んだ滞在をしたい。そうした欲張りなインバウンドニーズや、気兼ねなく家族や友人と特別な時間を過ごしたいといった国内宿泊ニーズに応え、より充実した宿泊体験と滞在時間を届けてまいります。
「HOTEL Rin TOKYO」WEBサイトはこちら:
https://47gawa.tokyo/room/rin/
◼️大変革が進む高輪ゲートウェイ駅まですぐ、日本の民家に“暮らす”ホテル
2階建ての戸建住宅をリノベーションした「HOTEL Rin TOKYO」は、1日1組限定・最大6名ほどで利用いただける一棟貸しタイプの宿です。
当ホテルは、泉岳寺駅より徒歩約3分、高輪ゲートウェイ駅までも徒歩約11分という好立地にあります。2025年3月27日にまちびらきとなった高輪ゲートウェイ駅直結「TAKANAWA GATEWAY CITY(高輪ゲートウェイシティ)」を中心に、今後も大規模な再開発が続く高輪ゲートウェイ駅周辺。その徒歩圏内にありながら、泉岳寺駅周辺は神社仏閣や集合住宅が集まり、どこか穏やかな空気が流れています。そんな環境の中で、寺院を背にして建つ住宅を改装した「HOTEL Rin TOKYO」は一棟貸し切りのため、ご家族や友人のみで気兼ねなく過ごしていただくことができ、日本の民家に“帰ってきた”ような気分を味わうことができます。

◼️庭つき戸建住宅をリノベーション。“日本に住む”感覚で、特別な滞在を
リノベーションにあたっては、昔ながらの日本民家の佇まいはそのままに、内部は心地よく過ごせるようモダンにリノベーション。インテリアは洋館をイメージし、ホワイトとブラウンのカラーリングを基調に真鍮をあしらい、高級感のある仕上がりに。ゆとりあるリビング、緑を楽しめるウッドデッキなど、大人数でものびのび過ごせる間取りです。
3室ある客室はそれぞれ印象を変えており、どの部屋に寝ようかと迷うのも一つの楽しみに。小さな庭エリアは、敷地面積が限られる中でも光や憩いを得ようとした東京都心部ならではの設計。改装時にはウッドデッキを設け、居心地の良さを高めました。マンションが立ち並ぶ現在ではなかなか見られなくなった贅沢な住宅空間が、都心にいることを忘れさせてくれます。

2階ベッドルーム
空き家になる前、この住宅には約50年ほどご夫婦がお住まいだったといいます。その頃は敷地内に綺麗なミモザが咲いていたとのエピソードを聞き、今回小さなミモザの木の鉢植えを庭に配置。リビングから眺められるようにしました。2階の窓は既存の設えを活かして昔のガラスの風合いを楽しめるようにするなど、元々の建物が経てきた歴史やストーリーを紐解き、新旧のよさを合わせ持たせた設計は、ホテルライクなのにどこか懐かしさも感じさせる味わい深い空間となっています。

1階ベッドルーム

リビング

リビング

ウッドデッキ
◼️「Rin」の名とロゴは、土地がもつ歴史から“輪”をストーリーの軸に
泉岳寺エリアにはかつて江戸への入場ゲートであった高輪大木戸(おおきど)があり、まさに江戸の入り口でした。江戸の頃には月見の名所であり、牛車業者が集まっていました。「忠臣蔵」で知られる赤穂浪士ゆかりの泉岳寺をはじめ神社仏閣が多く、穏やかな住宅街となった今も歴史を感じることができる場所です。
「HOTEL Rin TOKYO」の名は、この土地の歴史的背景を踏まえ、“輪”をアイデアソースとしています。
高輪の“輪”(=りん)、江戸の頃には当エリア(高輪海岸、現在の高輪2丁目東側付近)が月見の名所だったことから満月が形作る“輪”(=わ)、近隣に牛車業者が多く「車町」(通称牛町)と呼ばれるほどであったことから“車輪”、そして江戸の入口であり、出会いと別れの場として、旅人が行き交う場所として賑わっていたことから、人の“輪”(=わ)がここから広がるように……という願いを込めて命名しました。ロゴにも車輪を型取り、親しみやすさを持たせながら、この先も長く続いていくようにと普遍性を感じさせるようなシンプルな仕上がりとしています。

ロゴ

牛車業者が多数いたことを示すホテル周辺の解説看板

歌川広重(初代)による、「高輪牛町」を描いた「名所江戸百景」を客室に
◼️近隣施設と協力したルームサービスを提供。宿の中でも「ローカル体験」ができる宿に
「地域融合型宿泊施設」をコンセプトとしている当社では、宿での宿泊体験が地域を知ることにも繋がる仕掛けを大事にしています。
これまで展開してきた2つの一棟貸しホテル「Bamba Hotel Tokyo」(※2)と「Araiya Tokyo」と同様、ファミリーや友人グループでの利用を想定し、宿にいながらローカルな体験ができるサービスを提供。近隣店舗との共同開発で、近隣の飲食店や商店街からオーダーした商品がルームサービスのように宿に届けられるデリバリーサービス、まちに暮らしまちを熟知するコンシェルジュによるおもてなし、ちょっとそこまで出かける時に便利な外履きスリッパを用意するなど、ハードからソフトまできめ細やかな仕掛けを施しています。最近ではインバウンド観光客以外にも、大事な人と過ごす特別な宿泊体験を求める日本人客の方々にも、多くご利用いただいております。
「Araiya Tokyo」と至近距離にあるため、当社運営スタッフがホテル周辺を把握していることも強みです。どの宿泊施設でもゲストとの丁寧なコミュニケーションを心がけている当社では、スタッフが近隣のおすすめスポットや飲食店を紹介することもしばしば。お店が少ない住宅街に立地しているからこそ、ほんの短い滞在でも思い出となるような過ごし方をしていただけるよう、日々新店オープンや休業などの周辺情報には気を配り、和食など近隣飲食店を中心にご案内できるようにしております。
「HOTEL Rin TOKYO」WEBサイト
https://47gawa.tokyo/room/rin/
※2 「Bamba Hotel Tokyo」WEBサイト
https://47gawa.tokyo/room/bambahotel/
※3 「Araiya Tokyo」WEBサイト
https://47gawa.tokyo/room/araiya/
◼️「HOTEL Rin TOKYO」施設概要

◎住所
東京都港区高輪2-16-1
◎間取り

1F
- リビングルーム、キッチン
- シャワールーム(レインシャワー有)、パウダールーム、トイレ×2
- ベッドルーム1
- ベッドルーム2(洗面スペースあり)
- ウッドデッキ
2F
- ベッドルーム
最大宿泊人数:6名
構造:木造二階建て
延べ床面積:79.18平米
◎設備
キッチン/冷蔵庫/電子レンジ/電気ケトル/ウオーターサーバー/調理器具/食器類/インターネット接続/テレビ/洗濯機/ウォシュレット/ドライヤー/キングベッド2台/ダブルベッド1台
◎アメニティ:
お茶セット/コーヒーネスプレッソ/シャンプー/コンディショナー/ボディーソープ/ハミガキセット/カミソリ/くし/タオル/バスタオル/パジャマ/コットン・綿棒/ティッシュ
◼️代表・株式会社宿場JAPAN 代表取締役:玉井(渡邊)崇志のコメント
この度たくさんのご縁の元で、弊社にとって5つめとなる宿泊施設「HOTEL Rin TOKYO」を開業できる運びとなりました。まずは謹んで御礼申し上げます。
今回の「HOTEL Rin TOKYO」は、おかげ様で高い稼働率での運営が実現できている「Araiya Tokyo」の前例があったことから、近隣のオーナー様に空き家であった戸建て住宅を再生させることができないか、ご相談いただいたことから始まりました。そして、そのAraiya Tokyoは、昨年12月に10周年を迎えた宿泊施設「Bamba Hotel Tokyo」をきっかけとして誕生することとなりました(※1)。

HOTEL Rin TOKYOの改装中風景

最初の宿泊施設である「品川宿ゲストハウス&ツアーズ」(開業当初は「ゲストハウス品川宿」)から早15年、品川エリアを中心にゲストハウス運営、ツアー企画・運営等を行ってきた弊社の事業は、点が線に、そして面になるような地道な地域との連携活動を基盤としてここまで歩んでまいりました(※2)。これまでも社員、スタッフ含めた仲間とともにつくり上げてきた事業の一つひとつが起点となり、次々に次の事業が芽吹いていくようなプロセスを辿り、またその過程でスタッフ陣が力をつけてさらに事業が安定して拡大していく。……そんな良いサイクルが実現できています。今回のRin Tokyoも、ベテランスタッフ2人を中心に、事業計画からコンセプトづくり、ロゴ等のデザイン、店舗設計にDIYまで、ほぼすべて現場に一任しています。今後はグループ会社である旅行会社「宿場トラベル(東京都知事登録旅行業第2-8202号)」のプランを組み合わせて、ガイド付きのベイエリアツアーや品川の商店街や神社仏閣とタイアップしたプランをご提供していく予定です。
宿の面白さや価値は、様々な「外」と「内」が交わる場所であること自体にあります。すべては出会いから始まっていく。ここからどんな新たな未来が展開していくのか、私自身が大変楽しみでもあります。まちに対する価値を最大限発揮すべく、誠心誠意、より良い運営を心がけてまいります。今後とも変わらぬご支援のほど、何卒よろしくお願い申し上げます。
※1 「Bamba Hotel Tokyo」10周年 関連プレスリリース
https://prtimes.jp/main/html/rd/p/000000009.000097061.html
※2 「ゲストハウス品川宿」15周年、および「品川宿ゲストハウス&ツアーズ」に改名 関連プレスリリース
https://prtimes.jp/main/html/rd/p/000000008.000097061.html
■株式会社 宿場JAPAN 会社概要
社名:株式会社 宿場JAPAN
会社HP URL:https://shukuba.jp/
代表取締役:渡邊崇志
住所:〒140-0001 東京都品川区北品川1-22-16
設立:2011年3月
資本金:100万円
事業内容:
宿泊施設「品川宿ゲストハウス&ツアーズ」の運営
宿泊施設「Araiya Tokyo」の運営
宿泊施設「Bamba Hotel Tokyo」の運営
宿泊施設「Kago #34 Tokyo by Shukuba HOTEL」の運営
宿泊施設「HOTEL Rin TOKYO」の運営
スモールラグジュアリー宿泊施設の受託運営
宿泊施設の開業コンサルティング
自治体と連携したエリアプロデュース
おもてなし人材の育成と教育
ゲストハウス開業支援プログラム「Detti プログラム」の提供
企業プレスリリース詳細へ
PRTIMESトップへ
編集部ニュース
編集部コラム
暮らしニスタさんの活躍情報
新着試してみた感想
試してみたについて
会員限定
プレゼント&モニター募集
【みんなのリアルを大公開】バタバタな朝も、腹ペコな午後も。私たち...
息をのむような美しい風景の連続!郷土料理、ものづくり体験など魅力...
【カインズ】「こんなの欲しかった!」がきっと見つかる。暮らしニス...
Pasco「超熟」のタイアップ記事に参加させ...
大人のおしゃれ手帖webに「ファッション小物...
大人のおしゃれ手帖webに「紀ノ国屋のエコバ...








コメント
全て既読にする
コメントがあるとここに表示されます