プレスリリース

株式会社インバウンドホールディングス(本社:大阪市西区、代表取締役:坂本正樹)は、2025年3月19日(水)、兵庫県淡路島の一棟貸しコテージ「ワーホビ―(WORKHOBBY)淡路島」の販売促進活動も含めた運営を開始しました。
「ワーホビ―淡路島」は、株式会社創都設計(本社:大阪市中央区 代表取締役社長 大東俊也)が築100年の古民家をリノベーションし、2024年4月に開業しました。「仕事と遊びの両立」をコンセプトに、都会で働く人々が自然の中で仕事と趣味を楽しみに、リトリートや家族や友人との旅行、社内研修などさまざまな用途で利用されています。
「ワーホビ―淡路島」三世代旅行に最適な理由
(1) プライベートも重視した上質の空間


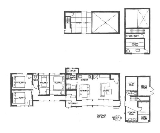
築100年の古民家を丹念にリフォームした「ワーホビ―淡路島」は、日本の伝統的な住空間を蘇らせ、細部にまでこだわった上質な空間を提供します。家族全員がゆったり過ごせるダイニング&リビングルームと、プライベートを確保できる寝室兼プライベートルームが4室あるので、家族の絆を深めながら、快適に過ごすことができます。
(2) フィンランド式薪サウナで非日常感を味わう

海を眺めながら水風呂や外気浴も楽しめるフィンランド式薪サウナは、本場フィンランドで学んだサウナビルダーが設計しました。最大10人まで入ることができるので、サウナを楽しみながら、家族団らんの時間を過ごせます。

また、出張シェフによる食事体験もオプションで用意しています。職人により丁寧に仕上げられたステーキや、地元の新鮮な海鮮を使った豪華な料理をその場で味わえます。また地元で水揚げされたばかりの海の幸を買い込んでBBQや鍋料理もでき、普段とは違うワンランク上の非日常感を楽しめます。
(3)海と山も近く、趣味や仕事にも専念できる環境

海が近く、車で5分ほどにある土生港からは沼島に渡れるので、ダイビングやサーフィンなどのマリンスポーツや釣りが気軽に楽しめます。また山も近く、初心者向けのトレッキングコースやゴルフ場なども近くにあり、家族それぞれの気分でさまざまアクティビティを楽しめます。寝室には昇降式デスクも完備されており、家族団らんの合間にリモートで仕事もできます。
施設をオープンさせた背景
プロジェクトのきっかけは、設計者でもある株式会社創都設計の大東社長が、「家を壊されるのでは」と心配していた売主様の想いに寄り添い、地域のご協力を得ながらリノベーションを実施。建築設計のプロフェッショナルとして、自然素材や構造補強にこだわり抜き、ただの古民家再生にとどまらない、「和」と「自然」が溶け込んだ癒しの空間が生まれました。
使い方や利用シーン
「ワーホビー淡路島」には大阪からは車で約2時間。定員10名、プライベートを重視した寝室と広いリビングルームを用意しているので、グループ旅行や多世代旅行、会社の研修などでご利用いただけます。
今後の展開
今後は、国内外にも積極的なPR活動をすすめ、ゴールデンウィークや夏休みの稼働率100%を目指します。
【施設概要】
名称:ワーホビー淡路島
所在地:兵庫県南あわじ市灘円実24
開業日:2024年4月
価格:100,000~180,000円(税込)
施設・収容人数:最大収容人数は10名
予約: Airbnb、Booking.com、楽天トラベル、一休(Yahoo!トラベル)、じゃらん、Rakuten Oyado
特長:◆築100年の古民家をリノベーション
◆10人までは入れるフィンランド式サウナ
◆海と山に囲まれた自然とプライベート重視の設計
公式Webサイト:https://workhobby.jp/
宿泊に関するお問い合わせ先: TEL.06-7167-6048
【会社概要】
<運営>
社名: 株式会社インバウンドホールディングス
代表: 代表取締役 坂本正樹
本社所在地:大阪市西区新町1丁目5-7 四ツ橋ビルディング2F
URL: https://inbound-hd.jp/
設立年:2024年9月
資本金:1,000,000円
従業員数:40人
事業内容: ・ホテル業・民泊運営業
・「SPOT JAPAN NOW」の運営
・「Japan Journeys Now」の運営
・「Japan Finds Now」の運営
<設計・管理>
社名: 株式会社創都設計
代表: 代表取締役社長 大東 俊也
本社所在地:大阪市中央区内本町1-4-9
URL: https://www.sout.co.jp/
設立年: 1969年9月 (1992年 社名変更)
資本金: 10,00,000円
従業員数:3人
事業内容: ・建築及び内装の設計・施工監理及びコンサルティング業務
・開発許可及び各種許認可申請業務
・建設業
・建築パース作成及び各種デザイン
・飲食店経営
企業プレスリリース詳細へ
PRTIMESトップへ
三世代旅行にも最適! 仕事も遊びも楽しめる一棟貸しコテージ「ワーホビ―(WORKHOBBY)淡路島」の運営を開始
株式会社インバウンドホールディングス
2025.03.19

株式会社インバウンドホールディングス(本社:大阪市西区、代表取締役:坂本正樹)は、2025年3月19日(水)、兵庫県淡路島の一棟貸しコテージ「ワーホビ―(WORKHOBBY)淡路島」の販売促進活動も含めた運営を開始しました。
「ワーホビ―淡路島」は、株式会社創都設計(本社:大阪市中央区 代表取締役社長 大東俊也)が築100年の古民家をリノベーションし、2024年4月に開業しました。「仕事と遊びの両立」をコンセプトに、都会で働く人々が自然の中で仕事と趣味を楽しみに、リトリートや家族や友人との旅行、社内研修などさまざまな用途で利用されています。
「ワーホビ―淡路島」三世代旅行に最適な理由
(1) プライベートも重視した上質の空間


築100年の古民家を丹念にリフォームした「ワーホビ―淡路島」は、日本の伝統的な住空間を蘇らせ、細部にまでこだわった上質な空間を提供します。家族全員がゆったり過ごせるダイニング&リビングルームと、プライベートを確保できる寝室兼プライベートルームが4室あるので、家族の絆を深めながら、快適に過ごすことができます。
(2) フィンランド式薪サウナで非日常感を味わう

海を眺めながら水風呂や外気浴も楽しめるフィンランド式薪サウナは、本場フィンランドで学んだサウナビルダーが設計しました。最大10人まで入ることができるので、サウナを楽しみながら、家族団らんの時間を過ごせます。

また、出張シェフによる食事体験もオプションで用意しています。職人により丁寧に仕上げられたステーキや、地元の新鮮な海鮮を使った豪華な料理をその場で味わえます。また地元で水揚げされたばかりの海の幸を買い込んでBBQや鍋料理もでき、普段とは違うワンランク上の非日常感を楽しめます。
(3)海と山も近く、趣味や仕事にも専念できる環境

海が近く、車で5分ほどにある土生港からは沼島に渡れるので、ダイビングやサーフィンなどのマリンスポーツや釣りが気軽に楽しめます。また山も近く、初心者向けのトレッキングコースやゴルフ場なども近くにあり、家族それぞれの気分でさまざまアクティビティを楽しめます。寝室には昇降式デスクも完備されており、家族団らんの合間にリモートで仕事もできます。
施設をオープンさせた背景
プロジェクトのきっかけは、設計者でもある株式会社創都設計の大東社長が、「家を壊されるのでは」と心配していた売主様の想いに寄り添い、地域のご協力を得ながらリノベーションを実施。建築設計のプロフェッショナルとして、自然素材や構造補強にこだわり抜き、ただの古民家再生にとどまらない、「和」と「自然」が溶け込んだ癒しの空間が生まれました。
使い方や利用シーン
「ワーホビー淡路島」には大阪からは車で約2時間。定員10名、プライベートを重視した寝室と広いリビングルームを用意しているので、グループ旅行や多世代旅行、会社の研修などでご利用いただけます。
今後の展開
今後は、国内外にも積極的なPR活動をすすめ、ゴールデンウィークや夏休みの稼働率100%を目指します。
【施設概要】
名称:ワーホビー淡路島
所在地:兵庫県南あわじ市灘円実24
開業日:2024年4月
価格:100,000~180,000円(税込)
施設・収容人数:最大収容人数は10名
予約: Airbnb、Booking.com、楽天トラベル、一休(Yahoo!トラベル)、じゃらん、Rakuten Oyado
特長:◆築100年の古民家をリノベーション
◆10人までは入れるフィンランド式サウナ
◆海と山に囲まれた自然とプライベート重視の設計
公式Webサイト:https://workhobby.jp/
宿泊に関するお問い合わせ先: TEL.06-7167-6048
【会社概要】
<運営>
社名: 株式会社インバウンドホールディングス
代表: 代表取締役 坂本正樹
本社所在地:大阪市西区新町1丁目5-7 四ツ橋ビルディング2F
URL: https://inbound-hd.jp/
設立年:2024年9月
資本金:1,000,000円
従業員数:40人
事業内容: ・ホテル業・民泊運営業
・「SPOT JAPAN NOW」の運営
・「Japan Journeys Now」の運営
・「Japan Finds Now」の運営
<設計・管理>
社名: 株式会社創都設計
代表: 代表取締役社長 大東 俊也
本社所在地:大阪市中央区内本町1-4-9
URL: https://www.sout.co.jp/
設立年: 1969年9月 (1992年 社名変更)
資本金: 10,00,000円
従業員数:3人
事業内容: ・建築及び内装の設計・施工監理及びコンサルティング業務
・開発許可及び各種許認可申請業務
・建設業
・建築パース作成及び各種デザイン
・飲食店経営
企業プレスリリース詳細へ
PRTIMESトップへ
編集部ニュース
編集部コラム
新着試してみた感想
試してみたについて
植物由来なのに満足度120%!?BEYOND FREE新作『雑穀...
「あのお家、不思議と家族全員、健康よね」その秘密とは?子どもにも...
10月21日「ゲニステインパワーの日」制定記念 特別対談 今話題...
「ウィズ京葉ガス」10月号に掲載されました!
10月ウィズ京葉ガスにレシピが掲載されました
【ウィズ京葉ガス 2025年9月号】にレシピ...






コメント
全て既読にする
コメントがあるとここに表示されます