プレスリリース
【再開催決定!】造作キッチン×回遊動線で叶えるホテルライクな暮らし|岡崎市マンションリノベ見学会
株式会社sumarch
2025.04.30
ご来場特典で最大20万円分の家具プレゼント!造作キッチンやエコ暖炉、回遊動線の工夫が光る、ホテルライクな暮らしを体感できる見学会です。

愛知県でリノベーション事業を展開する株式会社sumarch(本社:愛知県名古屋市中村区、代表取締役:鳥居儀彰、以下KULABO)は、マンションリノベーション見学会を2025年5月17日(土)・18日(日)、愛知県岡崎市にて開催いたします。
実際にKULABOでリノベーションしたオーナー様のお住まいを見学できる「リノベーション見学会」です。間取りや設計の工夫・デザインのアイデアなど、家づくりのヒント盛沢山!写真だけでは分からない素材の質感や雰囲気、リノベーションの魅力をREALにご体感ください!
見学会について、詳しくは特設ページをご確認ください。
https://kulabo.co.jp/events/103
見どころポイント

before写真

after写真

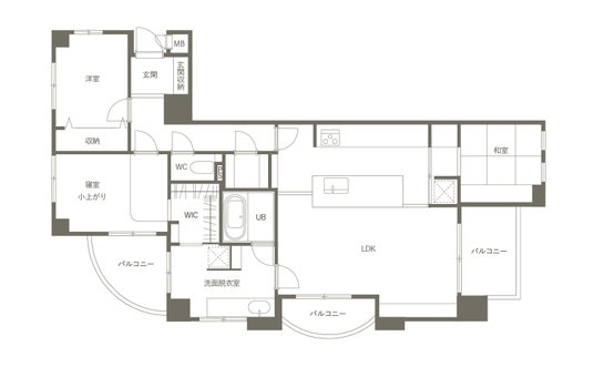
before間取り図

after間取り図
==DATA==
家族構成:2人
リノベーション費用:約2,000万円(2023年施工)
施工面積:87.64平方メートル
築年数:築25年
工事期間:約3ヵ月半
■素材感、使い勝手、デザイン性を兼ね備えたこだわりの造作キッチン

合計6mを超える大きなII型キッチンで、広々とした作業スペースを確保。海外製食洗機やディスポーザーなど機能性も充実しています。背面のランダムなボタニカル柄タイルがアクセントとなり、デザイン性と使いやすさを兼ね備えたキッチンです。
■煙突いらずで煙も出ない、マンションにも設置できるエコ暖炉

煙突工事が不要で煙や灰も出ない「バイオエタノール暖炉」を採用。マンションでも導入しやすく、暮らしに癒しをプラスします。
■キッチンから水回り、収納までぐるっと回遊できる、暮らしやすさ重視の動線設計

アイランドキッチンを中心に、水回りや収納までが行き止まりなくつながる設計。生活動線と来客動線を分けることで、家族もゲストも快適に過ごせる空間が実現しました。
開催概要
開催日:2025年5月17日(土)・18日(日)
時間:10時~17時
開催場所:愛知県岡崎市
※オーナー様のプライバシー配慮のため、詳しい住所はご予約いただいた方だけにお伝えしております。
参加費:無料
申込締切:2025年5月16日(金)まで ※事前予約制
見学会の詳細やご予約は、特設イベントページよりご確認ください。
特設イベントページを見る
少しでもリノベーションに興味のある方は、お気軽に見学予約くださいませ。
来場者限定!特典プレゼントあり!
当イベントに来場した後、当社でリノベーションをご成約いただいた方に、成約金額に応じて家具をプレゼント!
★500万~999万のご成約
→家具10万円分プレゼント!
★1,000万円以上のご成約
→家具20万円分プレゼント!
特典規約あり。詳しくは、特設イベントページよりご確認ください。
特設イベントページを見る
KULABOとは

リノベーションスタジオKULABOは愛知県・岐阜県・東京都(一部エリア除く)において、中古戸建、中古マンションのリノベーション・大規模リフォームの提案をしています。
リノベーションを前提とした中古物件のご紹介から、プラン・デザインの提案、施工、アフターメンテナンスまで一貫してサポートします。お客様のニーズやご予算、ライフスタイルに合わせて部分リフォームからフルリノベーション、耐震工事や断熱工事まで幅広くご対応。デザイン性と価格のバランスを取り、可能な限りお客様のご要望を叶えつつ、適正価格でプランを提案します。
会社概要
■会社名
株式会社sumarch
コーポレートサイト:https://sumarch.co.jp/
■代表者
代表取締役 鳥居 儀彰
■ブランド名
リノベーションスタジオKULABO
KULABO HP:https://kulabo.co.jp/
■所在地
本社 〒450-6419 愛知県名古屋市中村区名駅三丁目28番12号 大名古屋ビルヂング19F
TEL:052-526-1395 FAX:052-526-1396
店舗
中村スタジオ/千種スタジオ/昭和スタジオ/緑スタジオ/一宮スタジオ/春日井スタジオ/岡崎スタジオ/長久手スタジオ/豊田スタジオ/恵比寿スタジオ
■設立
2009年11月
■事業内容
不動産再生事業(リフォーム・リノベーション)
■従業員数
220名(2024年4月時点)
ーーーーーーーーーーーーーーーーーーーーーーーーーーーー
■一般の方からのお問合せ先
リノベーションスタジオお客様総合窓口
0120-85-7755
10:00~18:00 年中無休(年末年始除く)
企業プレスリリース詳細へ
PRTIMESトップへ

愛知県でリノベーション事業を展開する株式会社sumarch(本社:愛知県名古屋市中村区、代表取締役:鳥居儀彰、以下KULABO)は、マンションリノベーション見学会を2025年5月17日(土)・18日(日)、愛知県岡崎市にて開催いたします。
実際にKULABOでリノベーションしたオーナー様のお住まいを見学できる「リノベーション見学会」です。間取りや設計の工夫・デザインのアイデアなど、家づくりのヒント盛沢山!写真だけでは分からない素材の質感や雰囲気、リノベーションの魅力をREALにご体感ください!
見学会について、詳しくは特設ページをご確認ください。
https://kulabo.co.jp/events/103
見どころポイント

before写真

after写真

before間取り図

after間取り図
==DATA==
家族構成:2人
リノベーション費用:約2,000万円(2023年施工)
施工面積:87.64平方メートル
築年数:築25年
工事期間:約3ヵ月半
■素材感、使い勝手、デザイン性を兼ね備えたこだわりの造作キッチン

合計6mを超える大きなII型キッチンで、広々とした作業スペースを確保。海外製食洗機やディスポーザーなど機能性も充実しています。背面のランダムなボタニカル柄タイルがアクセントとなり、デザイン性と使いやすさを兼ね備えたキッチンです。
■煙突いらずで煙も出ない、マンションにも設置できるエコ暖炉

煙突工事が不要で煙や灰も出ない「バイオエタノール暖炉」を採用。マンションでも導入しやすく、暮らしに癒しをプラスします。
■キッチンから水回り、収納までぐるっと回遊できる、暮らしやすさ重視の動線設計

アイランドキッチンを中心に、水回りや収納までが行き止まりなくつながる設計。生活動線と来客動線を分けることで、家族もゲストも快適に過ごせる空間が実現しました。
開催概要
開催日:2025年5月17日(土)・18日(日)
時間:10時~17時
開催場所:愛知県岡崎市
※オーナー様のプライバシー配慮のため、詳しい住所はご予約いただいた方だけにお伝えしております。
参加費:無料
申込締切:2025年5月16日(金)まで ※事前予約制
見学会の詳細やご予約は、特設イベントページよりご確認ください。
特設イベントページを見る
少しでもリノベーションに興味のある方は、お気軽に見学予約くださいませ。
来場者限定!特典プレゼントあり!
当イベントに来場した後、当社でリノベーションをご成約いただいた方に、成約金額に応じて家具をプレゼント!
★500万~999万のご成約
→家具10万円分プレゼント!
★1,000万円以上のご成約
→家具20万円分プレゼント!
特典規約あり。詳しくは、特設イベントページよりご確認ください。
特設イベントページを見る
KULABOとは

リノベーションスタジオKULABOは愛知県・岐阜県・東京都(一部エリア除く)において、中古戸建、中古マンションのリノベーション・大規模リフォームの提案をしています。
リノベーションを前提とした中古物件のご紹介から、プラン・デザインの提案、施工、アフターメンテナンスまで一貫してサポートします。お客様のニーズやご予算、ライフスタイルに合わせて部分リフォームからフルリノベーション、耐震工事や断熱工事まで幅広くご対応。デザイン性と価格のバランスを取り、可能な限りお客様のご要望を叶えつつ、適正価格でプランを提案します。
会社概要
■会社名
株式会社sumarch
コーポレートサイト:https://sumarch.co.jp/
■代表者
代表取締役 鳥居 儀彰
■ブランド名
リノベーションスタジオKULABO
KULABO HP:https://kulabo.co.jp/
■所在地
本社 〒450-6419 愛知県名古屋市中村区名駅三丁目28番12号 大名古屋ビルヂング19F
TEL:052-526-1395 FAX:052-526-1396
店舗
中村スタジオ/千種スタジオ/昭和スタジオ/緑スタジオ/一宮スタジオ/春日井スタジオ/岡崎スタジオ/長久手スタジオ/豊田スタジオ/恵比寿スタジオ
■設立
2009年11月
■事業内容
不動産再生事業(リフォーム・リノベーション)
■従業員数
220名(2024年4月時点)
ーーーーーーーーーーーーーーーーーーーーーーーーーーーー
■一般の方からのお問合せ先
リノベーションスタジオお客様総合窓口
0120-85-7755
10:00~18:00 年中無休(年末年始除く)
企業プレスリリース詳細へ
PRTIMESトップへ
編集部ニュース
編集部コラム
暮らしニスタさんの活躍情報
新着試してみた感想
試してみたについて
LINEで24時間いつでも悩みを相談できる!主婦の友社から「暮ら...
暮らしニスタで新しいことを始めよう。Amazonギフトや最大1万...
【みんなのリアルを大公開】バタバタな朝も、腹ペコな午後も。私たち...
「ウィズ京葉ガス」2026年4月に掲載されました
「ウィズ京葉ガス」2026年4月に掲載されました
「ウィズ京葉ガス」2026年4月に掲載されました







コメント
全て既読にする
コメントがあるとここに表示されます