プレスリリース
「リビング・モダニティ 住まいの実験 1920s-1970s」2階観覧無料エリアの展示詳細が決定!
「リビング・モダニティ 住まいの実験 1920s-1970s」広報事務局
2025.02.14
建築家ミースの未完プロジェクト「ロー・ハウス」の世界初となる原寸大展示のほか、住まいの実空間を堪能するVR体験や、名作家具を体感できるコーナーも。
2025年3月19日(水)から6月30日(月)まで、国立新美術館にて「リビング・モダニティ 住まいの実験 1920s-1970s」を開催します。本展では、20世紀にはじまった住宅をめぐる革新的な試みを、衛生、素材、窓、キッチン、調度、メディア、ランドスケープという、モダン・ハウスを特徴づける7つの観点から再考します。そして、特に力を入れてご紹介する傑作14邸を中心に、20世紀の住まいの実験を、写真や図面、スケッチ、模型、家具、テキスタイル、食器、雑誌やグラフィックなどを通じて多角的に検証します。

本展は、2007年の国立新美術館開館記念展に次ぐ、1階と2階の企画展示室を同時に使った大規模な展覧会となります。
なかでも、見どころの一つとなる2階の会場では、近代建築の巨匠ルートヴィヒ・ミース・ファン・デル・ローエ(1886-1969年)の未完のプロジェクト「ロー・ハウス」を原寸大で実現するほか、同時代にデザインされて、現在も使われている名作家具を体感できるコーナーを設けます。また、特設会場では、名建築の窓を再現したVR体験ができるイベントや、本展に関連した対談、講演会などのさまざまなプログラムも開催します。

さらに、住まいの実空間を体験していただける本展覧会をより多くの方にお楽しみいただけるよう、2階の会場はどなたでも観覧無料でご覧いただけます。
2階観覧無料エリアの見どころ
■建築家ミースの未完プロジェクト「ロー・ハウス」の世界初となる原寸大展示
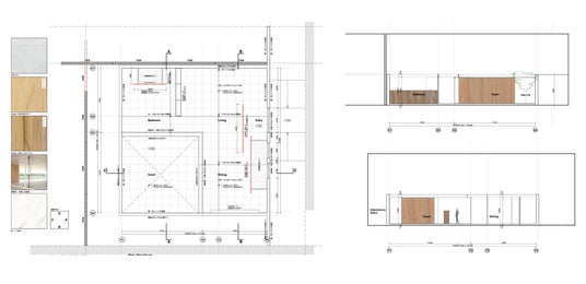
本展覧会の大きな見どころとなるのが、2階の天井高8メートルの会場に設置される、近代建築の巨匠ルートヴィヒ・ミース・ファン・デル・ローエ(1886-1969年)の未完のプロジェクト「ロー・ハウス」の原寸大展示です。そのスケールは幅16.4m×奥行16.4mに及び、原寸大での実現は世界で初めての挑戦となります。ミース・ファン・デル・ローエは、「ロー・ハウス」に関する多くの計画案を残していますが、建物として "実在する" ものは世界にひとつもありません。参考となる写真や映像のない中で、残された図面や資料をもとに模型を作り、原寸大で実現します。
また、本展示の制作にあたっては、国立新美術館では初となるクラウドファンディングで資金を募りました。488名の方々からご支援をいただき、ご支援総額は目標金額を超えて11,117,672円にのぼりました。頂いたご支援は、本展示の制作費用に充てられます。

ロー・ハウス原寸大展示プロジェクト 2D図面での検討

ロー・ハウス原寸大展示プロジェクト 模型での検討

当時の住空間を体感できるような家具の配置も検討しています

本展ゲスト・キュレーター:ケン・タダシ・オオシマ(ワシントン大学教授)氏からのコメント
1930年代にミース・ファン・デル・ローエが構想した一連のコートヤード・ハウス(中庭のある住宅)は、バルセロナ・パビリオン(1929年)とファンズワース邸(1951年)という伝説的な傑作を結びつけ、ドイツとアメリカにまたがる彼の先駆的なキャリアを統合した、ひとつのクライマックスです。ミースの精緻なデザインは、この重要な10年間に描かれた数多くのスケッチや図面に収められていますが、そのほとんどが実現されないままとなっています。本展では、本邦初公開となるニューヨーク近代美術館所蔵のミースの傑作である「コートハウス」のパース図と、ミースが1931年に設計した「ロー・ハウス」の原寸大での展示を通して、この一連のコートヤード・ハウスを紹介します。関連資料と原寸大模型を併せてご覧いただくことで、ミースのモダンなヴィジョンを類まれな実体験として理解することができるでしょう。
■名建築の「窓」を再現したVR体験イベント
電動で開閉する天井高いっぱいのガラス窓が特徴的なミース・ファン・デル・ローエの「トゥーゲントハット邸」と、水平連続窓で知られるル・コルビュジエの「ヴィラ・ル・ラック」の一部内観を再現したVR映像を公開します。
巨匠たちが理想の住空間を実現した20世紀近代建築の名作をご体験ください。
※VRゴーグルを装着していただきます。
【会場】国立新美術館 企画展示室2E VR特設コーナー
【開催日】2025年3月22日(土)・23日(日)・29日(土)・30日(日)
【体験時間】15~20分程度
【料金】無料
※予約不要です。VR特設コーナーに直接お越しください。
企画協力:公益財団法人 窓研究所
■名作家具の数々を体感する「リビング・モダニティ today」
本展で取り上げた実験は、現在も私たちの暮らしの中で生き続けています。そして、モダン・デザインの家具は、100年たった現在も生産されています。
今回、各企業の協力により、本展と関わりの深い20世紀を代表する名作家具を数多く体感していただけます。時代を超えて生き続けるモダニティに直接触れてください。
出展ブランド:
B&B Italia
Carl Hansen & Son
Cassina
Karimoku Case
Marcenaria Baraúna
Molteni&C
TECTA
Knoll
YAMAGIWA
【開催概要】
展覧会名|リビング・モダニティ 住まいの実験 1920s-1970s
会期|2025年3月19日(水)~6月30日(月)
休館日|毎週火曜日
※ただし4月29日(火・祝)と5月6日(火・祝)は開館、5月7日(水)は休館
開館時間|10:00-18:00
※毎週金・土曜日は20:00まで
※入場は閉館の30分前まで
会場|国立新美術館 企画展示室1E / 2E(東京・六本木)
主催|国立新美術館、東京新聞、独立行政法人日本芸術文化振興会、文化庁
後援|一般社団法人日本建築学会、公益社団法人日本建築家協会
協賛|鹿島建設株式会社、TOTO株式会社、 株式会社長谷工コーポレーション、YKK AP株式会社、
積水ハウス株式会社、大和ハウス工業株式会社、株式会社藤木工務店
協力|ミサワホーム株式会社、株式会社 竹中工務店、 株式会社新建築社、株式会社アルク、
ウシオライティング株式会社
観覧料(税込) 一般1,800円、大学生1,000円、高校生500円
※中学生以下は入場無料
※障害者手帳をご持参の方(付添の方1名を含む)は入場無料
※2階企画展示室2Eの展示はチケットをお持ちでないお客様も無料でご覧いただけます。
お問い合わせ 050-5541-8600(ハローダイヤル)
展覧会HP|https://living-modernity.jp/
美術館HP|https://www.nact.jp
SNS|X https://x.com/NACT_PR
IG https://www.instagram.com/thenationalartcentertokyo/
FB https://www.facebook.com/nact.jp/
巡回情報 |
会場:兵庫県立美術館
会期:2025年9月20日(土)-2026年1月4日(日)(予定)
企業プレスリリース詳細へ
PRTIMESトップへ
2025年3月19日(水)から6月30日(月)まで、国立新美術館にて「リビング・モダニティ 住まいの実験 1920s-1970s」を開催します。本展では、20世紀にはじまった住宅をめぐる革新的な試みを、衛生、素材、窓、キッチン、調度、メディア、ランドスケープという、モダン・ハウスを特徴づける7つの観点から再考します。そして、特に力を入れてご紹介する傑作14邸を中心に、20世紀の住まいの実験を、写真や図面、スケッチ、模型、家具、テキスタイル、食器、雑誌やグラフィックなどを通じて多角的に検証します。

本展は、2007年の国立新美術館開館記念展に次ぐ、1階と2階の企画展示室を同時に使った大規模な展覧会となります。
なかでも、見どころの一つとなる2階の会場では、近代建築の巨匠ルートヴィヒ・ミース・ファン・デル・ローエ(1886-1969年)の未完のプロジェクト「ロー・ハウス」を原寸大で実現するほか、同時代にデザインされて、現在も使われている名作家具を体感できるコーナーを設けます。また、特設会場では、名建築の窓を再現したVR体験ができるイベントや、本展に関連した対談、講演会などのさまざまなプログラムも開催します。

さらに、住まいの実空間を体験していただける本展覧会をより多くの方にお楽しみいただけるよう、2階の会場はどなたでも観覧無料でご覧いただけます。
2階観覧無料エリアの見どころ
■建築家ミースの未完プロジェクト「ロー・ハウス」の世界初となる原寸大展示
本展覧会の大きな見どころとなるのが、2階の天井高8メートルの会場に設置される、近代建築の巨匠ルートヴィヒ・ミース・ファン・デル・ローエ(1886-1969年)の未完のプロジェクト「ロー・ハウス」の原寸大展示です。そのスケールは幅16.4m×奥行16.4mに及び、原寸大での実現は世界で初めての挑戦となります。ミース・ファン・デル・ローエは、「ロー・ハウス」に関する多くの計画案を残していますが、建物として "実在する" ものは世界にひとつもありません。参考となる写真や映像のない中で、残された図面や資料をもとに模型を作り、原寸大で実現します。
また、本展示の制作にあたっては、国立新美術館では初となるクラウドファンディングで資金を募りました。488名の方々からご支援をいただき、ご支援総額は目標金額を超えて11,117,672円にのぼりました。頂いたご支援は、本展示の制作費用に充てられます。

ロー・ハウス原寸大展示プロジェクト 2D図面での検討

ロー・ハウス原寸大展示プロジェクト 模型での検討

当時の住空間を体感できるような家具の配置も検討しています

本展ゲスト・キュレーター:ケン・タダシ・オオシマ(ワシントン大学教授)氏からのコメント
1930年代にミース・ファン・デル・ローエが構想した一連のコートヤード・ハウス(中庭のある住宅)は、バルセロナ・パビリオン(1929年)とファンズワース邸(1951年)という伝説的な傑作を結びつけ、ドイツとアメリカにまたがる彼の先駆的なキャリアを統合した、ひとつのクライマックスです。ミースの精緻なデザインは、この重要な10年間に描かれた数多くのスケッチや図面に収められていますが、そのほとんどが実現されないままとなっています。本展では、本邦初公開となるニューヨーク近代美術館所蔵のミースの傑作である「コートハウス」のパース図と、ミースが1931年に設計した「ロー・ハウス」の原寸大での展示を通して、この一連のコートヤード・ハウスを紹介します。関連資料と原寸大模型を併せてご覧いただくことで、ミースのモダンなヴィジョンを類まれな実体験として理解することができるでしょう。
■名建築の「窓」を再現したVR体験イベント
電動で開閉する天井高いっぱいのガラス窓が特徴的なミース・ファン・デル・ローエの「トゥーゲントハット邸」と、水平連続窓で知られるル・コルビュジエの「ヴィラ・ル・ラック」の一部内観を再現したVR映像を公開します。
巨匠たちが理想の住空間を実現した20世紀近代建築の名作をご体験ください。
※VRゴーグルを装着していただきます。
【会場】国立新美術館 企画展示室2E VR特設コーナー
【開催日】2025年3月22日(土)・23日(日)・29日(土)・30日(日)
【体験時間】15~20分程度
【料金】無料
※予約不要です。VR特設コーナーに直接お越しください。
企画協力:公益財団法人 窓研究所
■名作家具の数々を体感する「リビング・モダニティ today」
本展で取り上げた実験は、現在も私たちの暮らしの中で生き続けています。そして、モダン・デザインの家具は、100年たった現在も生産されています。
今回、各企業の協力により、本展と関わりの深い20世紀を代表する名作家具を数多く体感していただけます。時代を超えて生き続けるモダニティに直接触れてください。
出展ブランド:
B&B Italia
Carl Hansen & Son
Cassina
Karimoku Case
Marcenaria Baraúna
Molteni&C
TECTA
Knoll
YAMAGIWA
【開催概要】
展覧会名|リビング・モダニティ 住まいの実験 1920s-1970s
会期|2025年3月19日(水)~6月30日(月)
休館日|毎週火曜日
※ただし4月29日(火・祝)と5月6日(火・祝)は開館、5月7日(水)は休館
開館時間|10:00-18:00
※毎週金・土曜日は20:00まで
※入場は閉館の30分前まで
会場|国立新美術館 企画展示室1E / 2E(東京・六本木)
主催|国立新美術館、東京新聞、独立行政法人日本芸術文化振興会、文化庁
後援|一般社団法人日本建築学会、公益社団法人日本建築家協会
協賛|鹿島建設株式会社、TOTO株式会社、 株式会社長谷工コーポレーション、YKK AP株式会社、
積水ハウス株式会社、大和ハウス工業株式会社、株式会社藤木工務店
協力|ミサワホーム株式会社、株式会社 竹中工務店、 株式会社新建築社、株式会社アルク、
ウシオライティング株式会社
観覧料(税込) 一般1,800円、大学生1,000円、高校生500円
※中学生以下は入場無料
※障害者手帳をご持参の方(付添の方1名を含む)は入場無料
※2階企画展示室2Eの展示はチケットをお持ちでないお客様も無料でご覧いただけます。
お問い合わせ 050-5541-8600(ハローダイヤル)
展覧会HP|https://living-modernity.jp/
美術館HP|https://www.nact.jp
SNS|X https://x.com/NACT_PR
IG https://www.instagram.com/thenationalartcentertokyo/
FB https://www.facebook.com/nact.jp/
巡回情報 |
会場:兵庫県立美術館
会期:2025年9月20日(土)-2026年1月4日(日)(予定)
企業プレスリリース詳細へ
PRTIMESトップへ
編集部ニュース
編集部コラム
暮らしニスタさんの活躍情報
新着試してみた感想
試してみたについて
会員限定
プレゼント&モニター募集
【みんなのリアルを大公開】バタバタな朝も、腹ペコな午後も。私たち...
息をのむような美しい風景の連続!郷土料理、ものづくり体験など魅力...
【カインズ】「こんなの欲しかった!」がきっと見つかる。暮らしニス...
Pasco「超熟」のタイアップ記事に参加させ...
大人のおしゃれ手帖webに「ファッション小物...
大人のおしゃれ手帖webに「紀ノ国屋のエコバ...








コメント
全て既読にする
コメントがあるとここに表示されます