プレスリリース
【2棟同時見学可能に】11/30(土)新築防音賃貸マンション「ミュージション中野南台/ミュージションテラス中野南台」完成披露内覧会を開催
株式会社リブラン
2024.11.27
音楽サロン併設マンションが登場、内覧会翌日12/1(日)から入居受付開始に

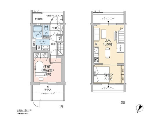
「ミュージション中野南台」モデルルーム(Bタイプ)
株式会社リブラン(代表取締役社長:渡邊 裕介、本社:東京都板橋区)が開発する、24時間楽器演奏を推奨する防音賃貸マンション「ミュージション」は、東京都中野区南台四丁目に完成、および完成予定の2棟の新築防音物件「ミュージション中野南台(マンション)」と「ミュージションテラス中野南台(テラスハウス)」の入居希望者に向けた、現地内覧会の参加受付を開始しました。
新築のマンションタイプとテラスハウスタイプが同時に入居募集開始

空撮物件周辺画像
京王線「笹塚」駅、京王新線「幡ヶ谷」駅から各徒歩14分、各駅から「新宿」駅まで直通5分の好立地に、同時に2棟のミュージションがお目見えします。
○ミュージション中野南台

ミュージション中野南台外観

モデルルーム(Bタイプ)

1Fには音楽サロンを併設
鉄筋コンクリート造3階建て 総戸数16戸
- 24時間楽器演奏可能
- C7サイズまでのグランドピアノがエレベーターで搬入可能
- 音楽サロン併設 ※入居者利用可能 (利用料未定)
- 10Gbpsのインターネット対応可能(有償)
- 全戸NTTフレッツ光1Gbps無料利用可能

Aタイプ間取り図

B'タイプ間取り図

Dタイプ間取り図

Eタイプ間取り図
○ミュージションテラス中野南台

ミュージションテラス中野南台外観

Bタイプ防音室

Aタイプリビングダイニングルーム
木造2階建て 2LDK 総戸数4戸(入居受付は3戸)
- 駐車場あり
- インターネット2回線対応
- 玄関ポーチ部分に駐輪スペース2台数分あり

ミュージションテラス中野南台B,Cタイプ間取り図
入居希望者向け内覧会参加者募集中
開催日時:11月30日(土)10:30~15:00の間
所在地:東京都中野区南台4丁目3-9
「ミュージション中野南台」の住戸および音楽サロン、「ミュージションテラス中野南台」の住戸をご覧いただけます。
防音性能体験も同時開催いたします。
内覧会ご予約はこちらから↓
https://docs.google.com/forms/d/e/1FAIpQLSdtwpP-0ZvXm-oMNFqqJRw_mq4vvOaLOrtUDwx77f1Q0F71yQ/viewform
※完全予約制となります。
※予約状況によってご希望される時間でのご案内が難しい場合がございます。
※ミュージション建設検討オーナー様向け内覧会はこちらから↓
https://www.livlan.com/asset-utilization/news/3224
ミュージション中野南台 物件概要
所在地 :東京都中野区南台四丁目3番9号
構造 :RC3階建て
住宅戸数 :16戸(1K・2K・2LDK・3K)
竣工 :2024年10月
賃料 :147,000円~240,000円 ※第1期募集住戸
https://www.musision.jp/props/13764
ミュージションテラス中野南台 物件概要
所在地 :東京都中野区南台四丁目3番9号
構造 :木造3階建て
住宅戸数 :4戸(2LDK)※募集は内3戸
竣工 :2024年11月予定
賃料 :238,000円~239,000円
https://www.musision.jp/props/13759
株式会社リブラン
会社名:株式会社リブラン
所在地:東京都板橋区大山町17-4
創業:1969年3月2日
リブラン公式ウェブサイト: https://www.livlan.com
マンション・住宅の企画、リノベーション(24時間楽器演奏可能賃貸マンション「ミュージション」、ワンストップリノベーション「てまひま不動産 西荻窪店」、エコミックスデザインを取り入れた分譲マンション「エコヴィレッジ」)を主に展開しています。
企業プレスリリース詳細へ
PRTIMESトップへ

「ミュージション中野南台」モデルルーム(Bタイプ)
株式会社リブラン(代表取締役社長:渡邊 裕介、本社:東京都板橋区)が開発する、24時間楽器演奏を推奨する防音賃貸マンション「ミュージション」は、東京都中野区南台四丁目に完成、および完成予定の2棟の新築防音物件「ミュージション中野南台(マンション)」と「ミュージションテラス中野南台(テラスハウス)」の入居希望者に向けた、現地内覧会の参加受付を開始しました。
新築のマンションタイプとテラスハウスタイプが同時に入居募集開始

空撮物件周辺画像
京王線「笹塚」駅、京王新線「幡ヶ谷」駅から各徒歩14分、各駅から「新宿」駅まで直通5分の好立地に、同時に2棟のミュージションがお目見えします。
○ミュージション中野南台

ミュージション中野南台外観

モデルルーム(Bタイプ)

1Fには音楽サロンを併設
鉄筋コンクリート造3階建て 総戸数16戸
- 24時間楽器演奏可能
- C7サイズまでのグランドピアノがエレベーターで搬入可能
- 音楽サロン併設 ※入居者利用可能 (利用料未定)
- 10Gbpsのインターネット対応可能(有償)
- 全戸NTTフレッツ光1Gbps無料利用可能

Aタイプ間取り図

B'タイプ間取り図

Dタイプ間取り図

Eタイプ間取り図
○ミュージションテラス中野南台

ミュージションテラス中野南台外観

Bタイプ防音室

Aタイプリビングダイニングルーム
木造2階建て 2LDK 総戸数4戸(入居受付は3戸)
- 駐車場あり
- インターネット2回線対応
- 玄関ポーチ部分に駐輪スペース2台数分あり

ミュージションテラス中野南台B,Cタイプ間取り図
入居希望者向け内覧会参加者募集中
開催日時:11月30日(土)10:30~15:00の間
所在地:東京都中野区南台4丁目3-9
「ミュージション中野南台」の住戸および音楽サロン、「ミュージションテラス中野南台」の住戸をご覧いただけます。
防音性能体験も同時開催いたします。
内覧会ご予約はこちらから↓
https://docs.google.com/forms/d/e/1FAIpQLSdtwpP-0ZvXm-oMNFqqJRw_mq4vvOaLOrtUDwx77f1Q0F71yQ/viewform
※完全予約制となります。
※予約状況によってご希望される時間でのご案内が難しい場合がございます。
※ミュージション建設検討オーナー様向け内覧会はこちらから↓
https://www.livlan.com/asset-utilization/news/3224
ミュージション中野南台 物件概要
所在地 :東京都中野区南台四丁目3番9号
構造 :RC3階建て
住宅戸数 :16戸(1K・2K・2LDK・3K)
竣工 :2024年10月
賃料 :147,000円~240,000円 ※第1期募集住戸
https://www.musision.jp/props/13764
ミュージションテラス中野南台 物件概要
所在地 :東京都中野区南台四丁目3番9号
構造 :木造3階建て
住宅戸数 :4戸(2LDK)※募集は内3戸
竣工 :2024年11月予定
賃料 :238,000円~239,000円
https://www.musision.jp/props/13759

会社名:株式会社リブラン
所在地:東京都板橋区大山町17-4
創業:1969年3月2日
リブラン公式ウェブサイト: https://www.livlan.com
マンション・住宅の企画、リノベーション(24時間楽器演奏可能賃貸マンション「ミュージション」、ワンストップリノベーション「てまひま不動産 西荻窪店」、エコミックスデザインを取り入れた分譲マンション「エコヴィレッジ」)を主に展開しています。
企業プレスリリース詳細へ
PRTIMESトップへ
編集部ニュース
編集部コラム
暮らしニスタさんの活躍情報
新着試してみた感想
試してみたについて
会員限定
プレゼント&モニター募集
【みんなのリアルを大公開】バタバタな朝も、腹ペコな午後も。私たち...
息をのむような美しい風景の連続!郷土料理、ものづくり体験など魅力...
【カインズ】「こんなの欲しかった!」がきっと見つかる。暮らしニス...
Pasco「超熟」のタイアップ記事に参加させ...
大人のおしゃれ手帖webに「ファッション小物...
大人のおしゃれ手帖webに「紀ノ国屋のエコバ...








コメント
全て既読にする
コメントがあるとここに表示されます